← Manchester City Council

Status

Awaiting decision Commercial
Received
Not recorded
New homes
0

Full proposal

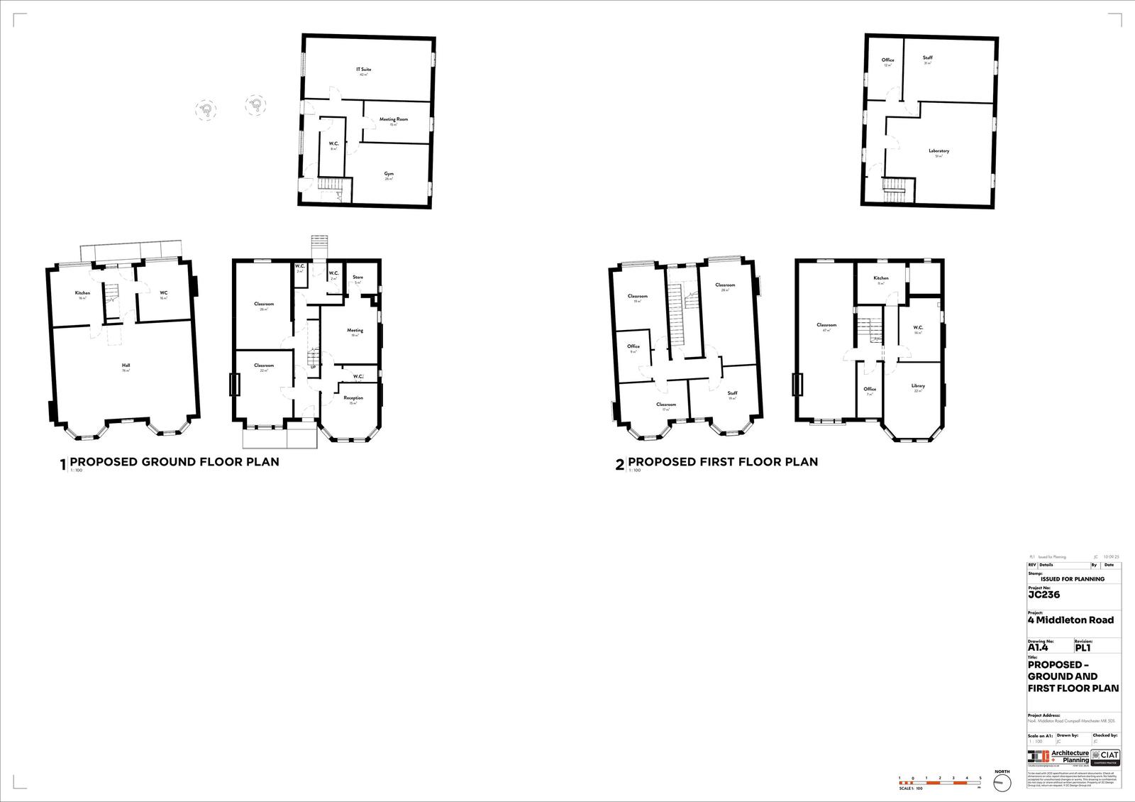
Outline Application (access, layout and scale) for the erection of 2no. two-storey detached buildings following demolition of existing bungalow, removal of modular classrooms, and two-storey rear extension to main building for education use (Class F1(a)), along with parking, bin storage and cycle storage.

Documents

Design & Access Statement
Archived · Original link
Drawing - Existing
Archived · Original link
Drawing - Proposed
Archived · Original link
Drawing - Site Plan
Archived · Original link
Drawing - Existing
Archived · Original link
Drawing - Proposed
Archived · Original link
Drawing - Site Plan
Archived · Original link
Drawing - Proposed
Archived · Original link
Drawing - Existing
Archived · Original link
Drawing - Location Plan
Archived · Original link

Have your say

Your comment matters. Councils must consider every representation that raises material planning considerations.

Write a comment