144909/FH/2026
Manchester City Council
Status
Awaiting decision
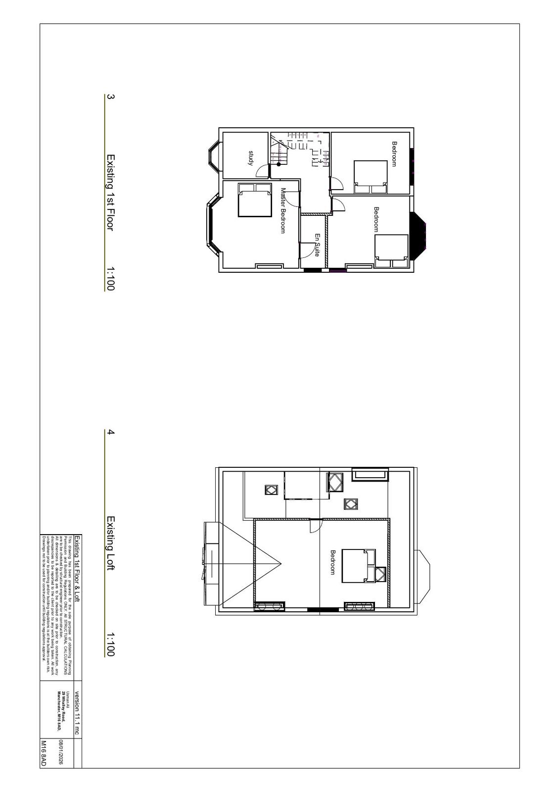
House extension
Received
Not recorded
New homes
0
Full proposal
Erection of a ground floor rear extension and creation of basement courtyard with associated steps.
Documents
Have your say
Your comment matters. Councils must consider every representation that raises material planning considerations.