← Manchester City Council

Status

Awaiting decision Change of use
Received
Not recorded
New homes
4

Full proposal

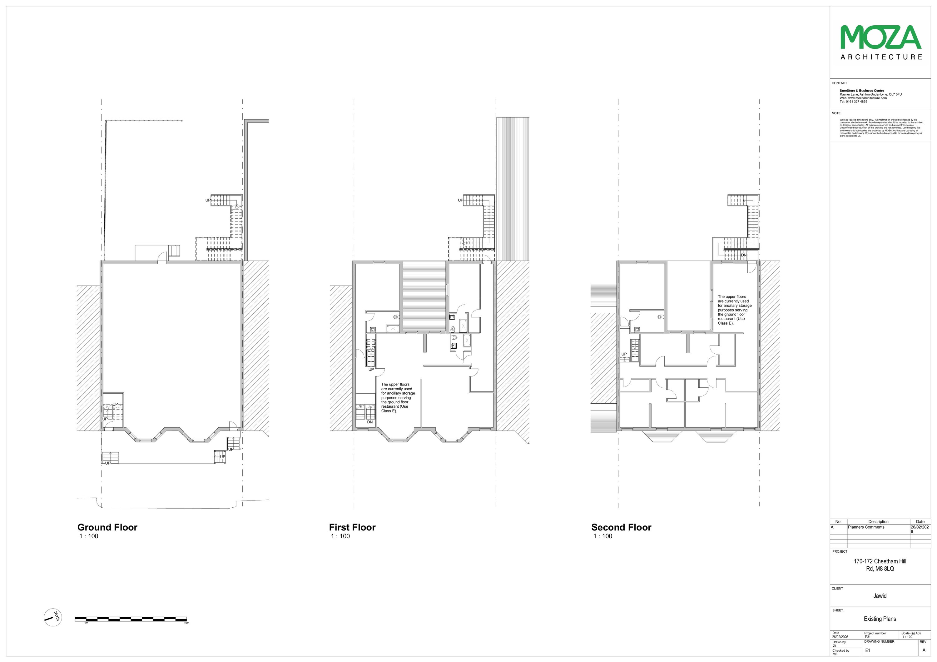
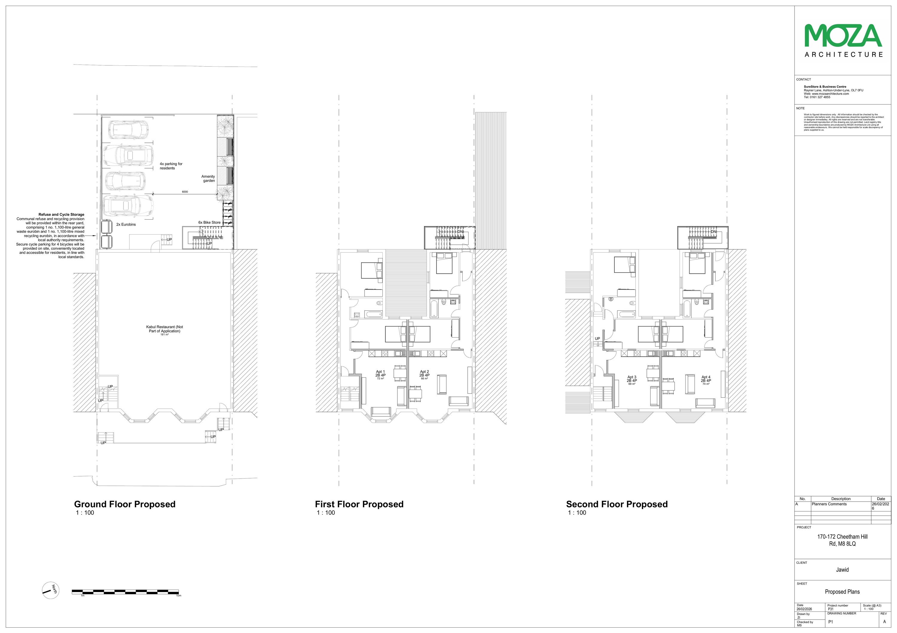
Change of Use of upper floors from commercial use (use class E) to residential (use Class C3) to form 4no. 2-bedroom self-contained apartments, creation of 4no. car parking spaces, associated landscaping works, and provision of a replacement external steel staircase.

Documents

Design & Access Statement
Archived · Original link
Drawing - Existing
Archived · Original link
Drawing - Proposed
Archived · Original link
Drawing - Proposed
Archived · Original link
Drawing - Existing
Archived · Original link
Drawing - Location Plan
Archived · Original link
Drawing - Existing
Archived · Original link
Drawing - Proposed
Archived · Original link
Drawing - Proposed
Archived · Original link
Drawing - Existing
Archived · Original link
Drawing - Site Plan
Archived · Original link
Drawing - Location Plan
Archived · Original link

Have your say

Your comment matters. Councils must consider every representation that raises material planning considerations.

Write a comment