← Manchester City Council

Status

Awaiting decision Change of use
Received
Not recorded
New homes
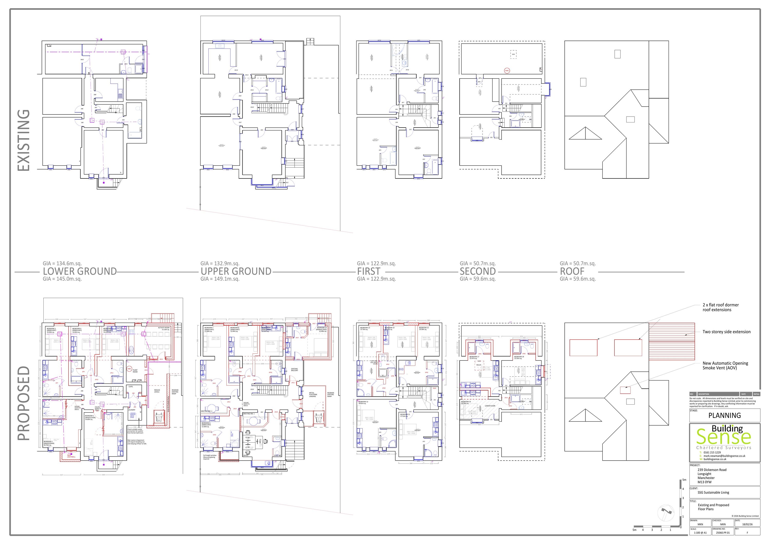
18

Full proposal

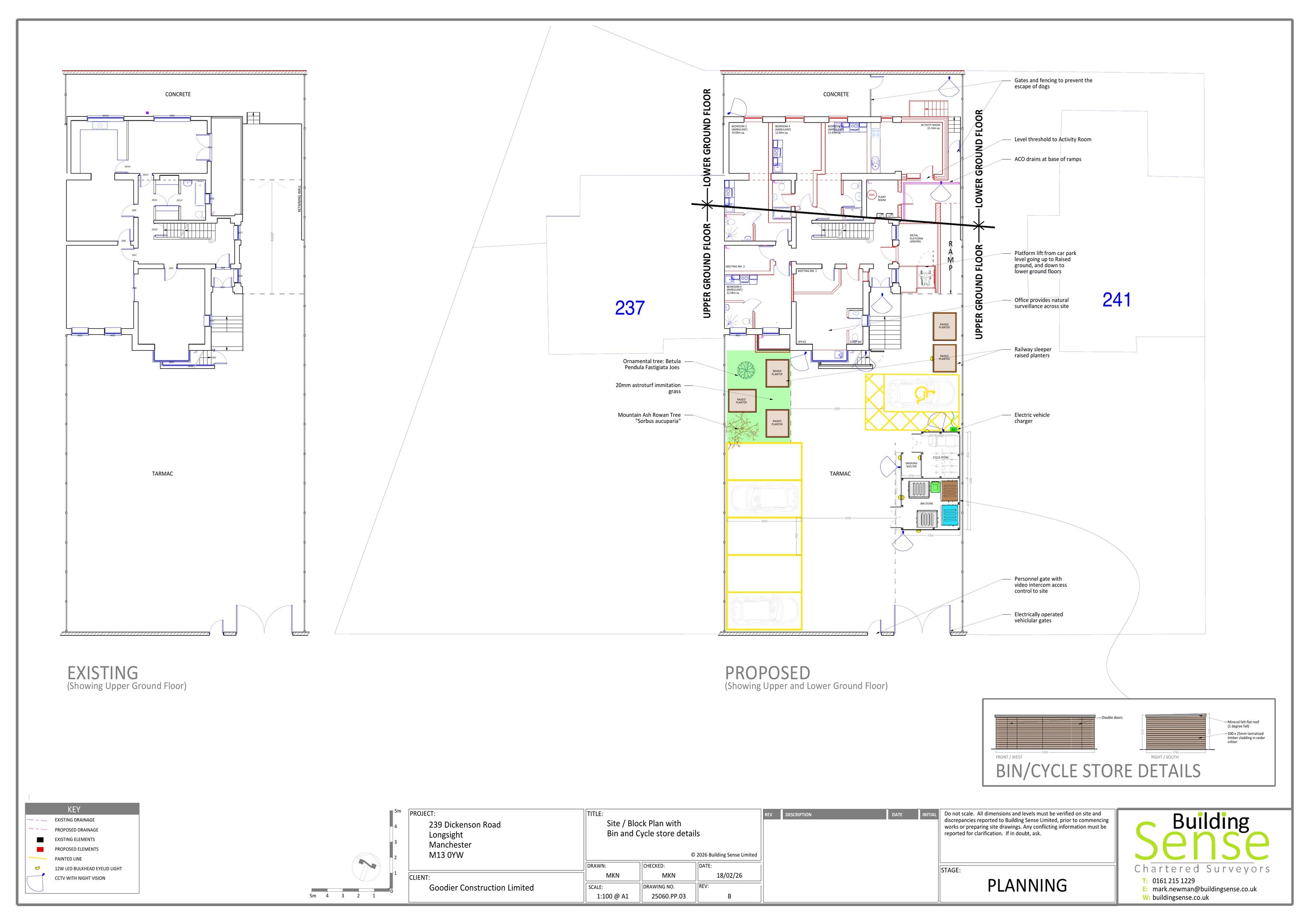
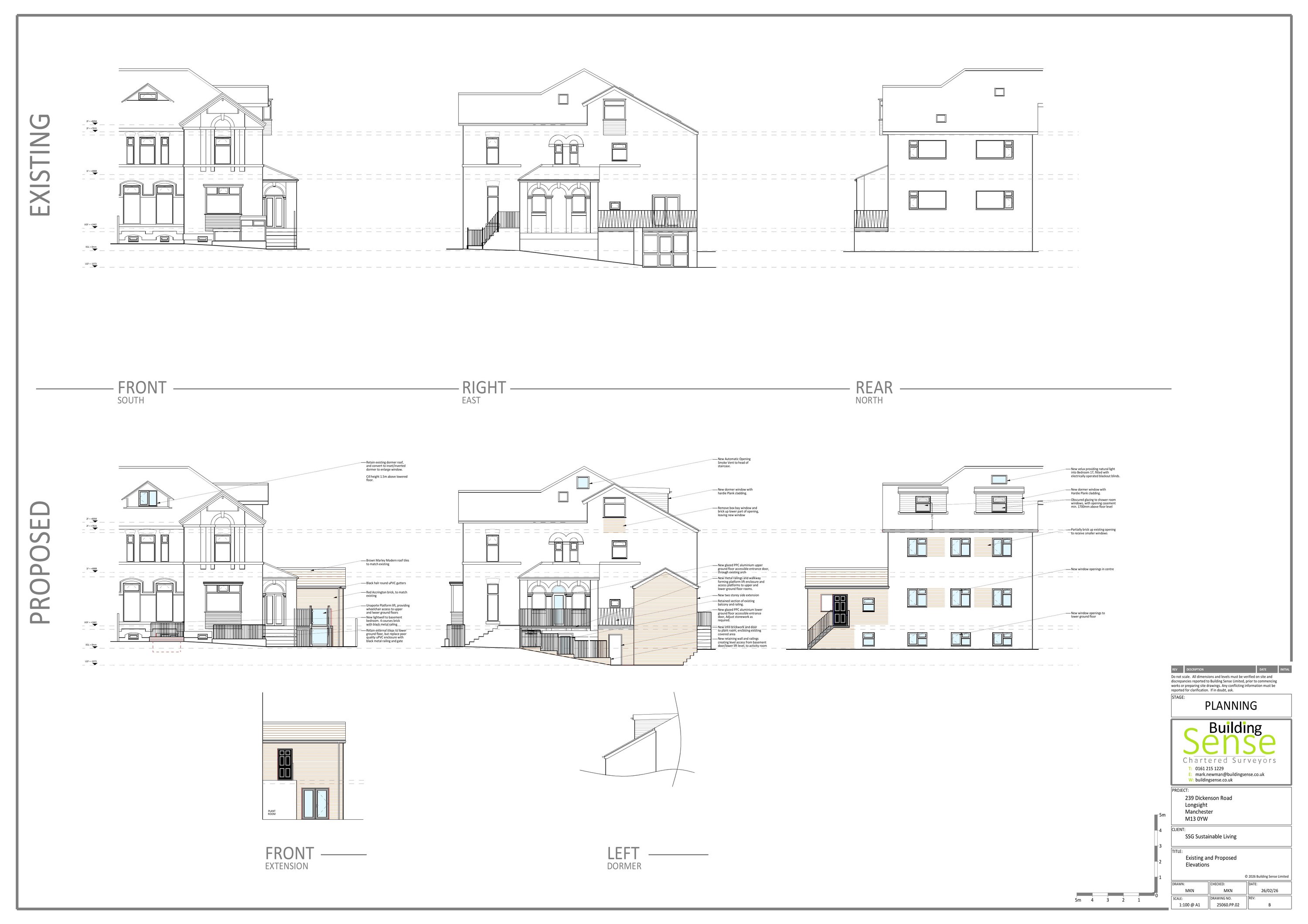
Change of Use to create 18no. self-contained residential units for short stay homelessness accommodation (sui generis), with associated activity room and office; the erection of a two-storey side extension, two dormer roof extensions to the rear, the provision of external steps and wheelchair platform lift; elevational alterations to windows, doors and front dormer. The construction of cycle and bin stores and associated car parking markings and soft landscaping.

Documents

Drawing - Existing & Proposed
Archived · Original link
Design & Access Statement
Archived · Original link
Drawing - Existing & Proposed
Archived · Original link
Drawing - Existing & Proposed
Archived · Original link
Supporting Information
Archived · Original link
Waste Management
Archived · Original link
Drawing - Location Plan
Archived · Original link

Have your say

Your comment matters. Councils must consider every representation that raises material planning considerations.

Write a comment