← Manchester City Council

Status

Awaiting decision House extension
Received
Not recorded
New homes
0

Full proposal

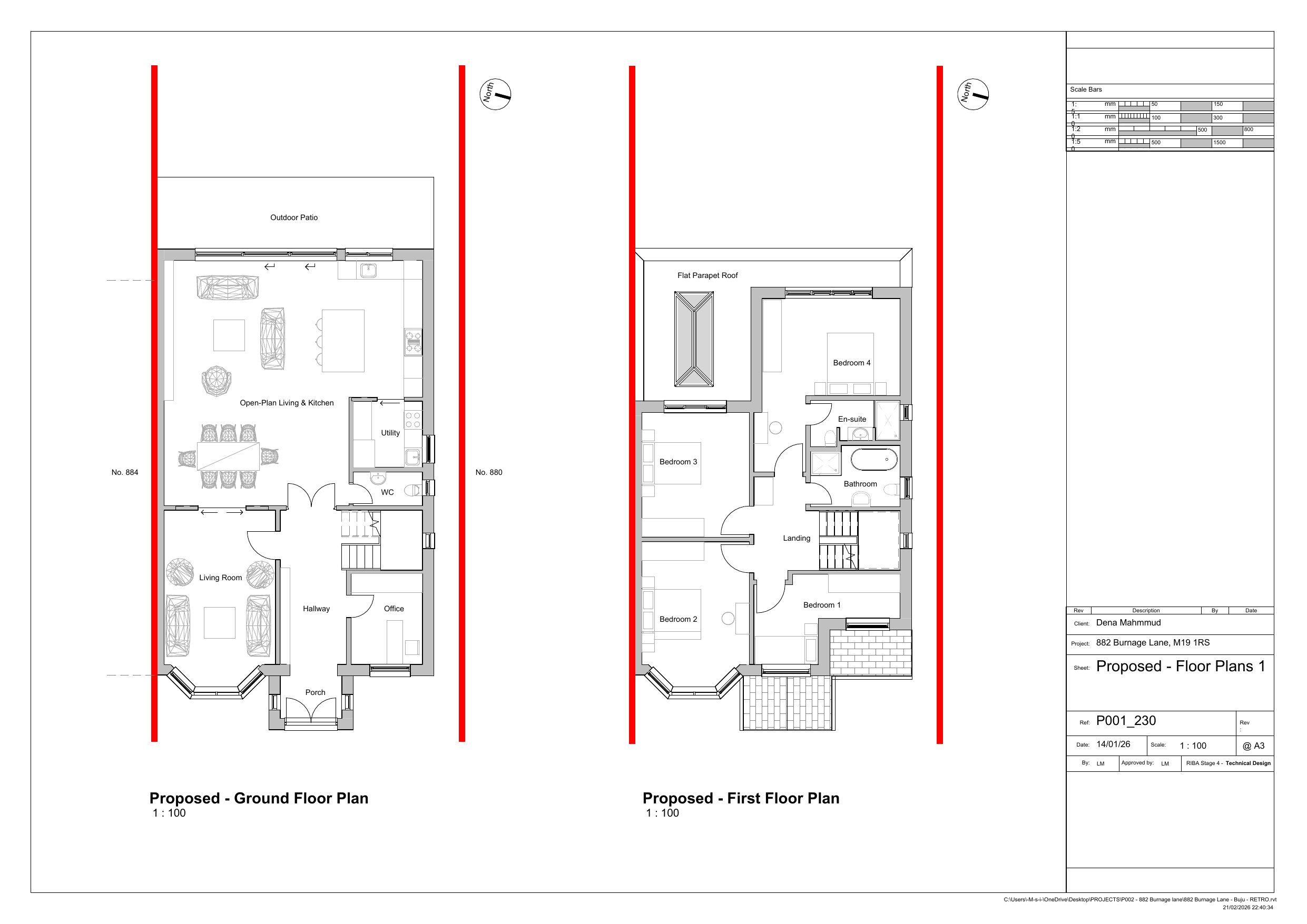
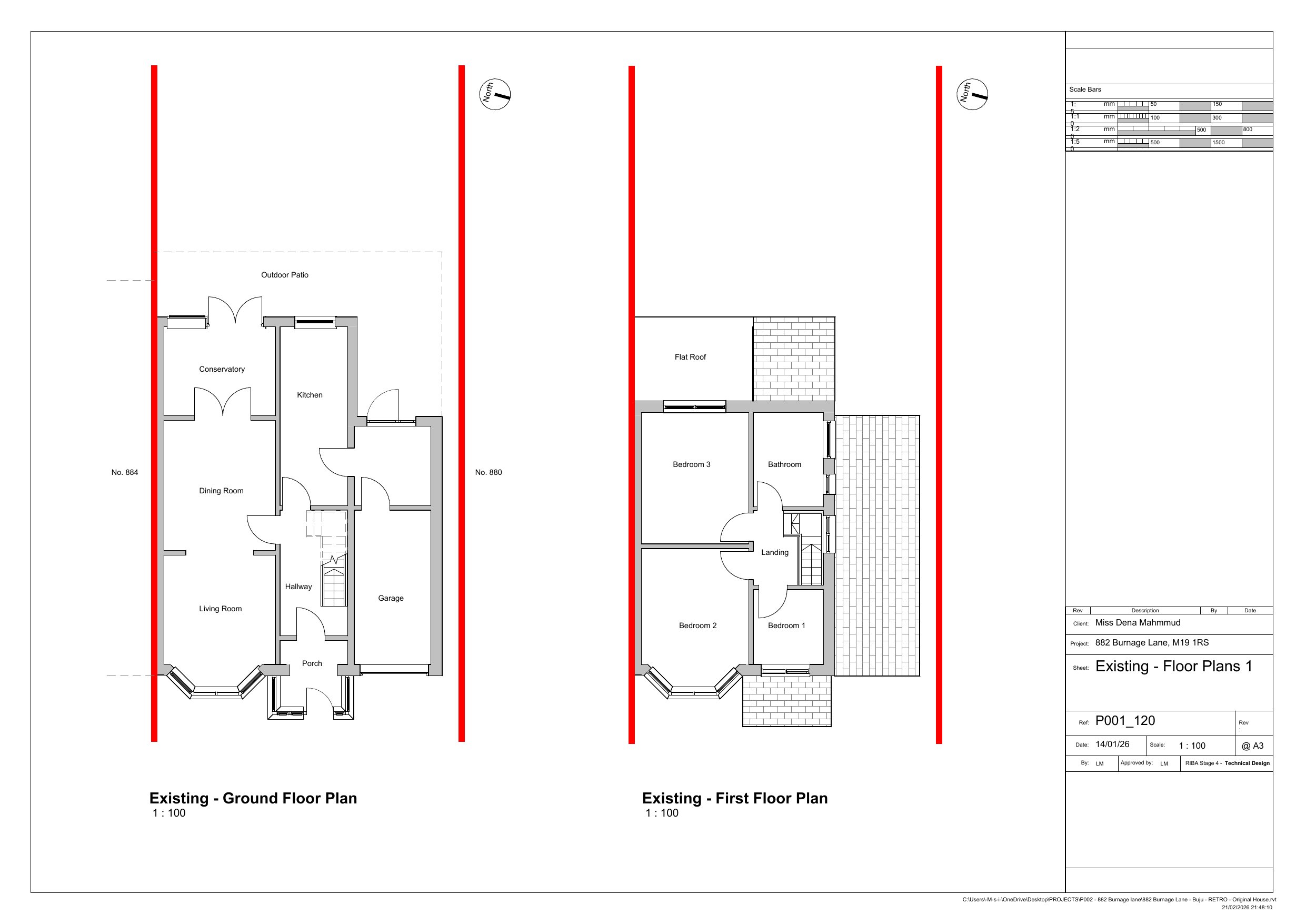
Retrospective application for the erection of a part single-storey/part two-storey side and rear extension, together with the installation of a rear dormer and installation of front porch and hip to gable conversion including elevational alterations.

Documents

Drawing - Proposed
Archived · Original link
Drawing - Existing
Archived · Original link
Drawing - Proposed
Archived · Original link
Drawing - Existing
Archived · Original link
Drawing - Proposed
Archived · Original link
Drawing - Existing
Archived · Original link
Drawing - Proposed
Archived · Original link
Drawing - Existing
Archived · Original link
Drawing - Proposed
Archived · Original link
Supporting Information
Archived · Original link
Drawing - Proposed
Archived · Original link
Drawing - Location Plan
Archived · Original link

Have your say

Your comment matters. Councils must consider every representation that raises material planning considerations.

Write a comment