← Melton Borough Council

Status

Unknown New housing
Received
25 Nov 2025
New homes
3

Full proposal

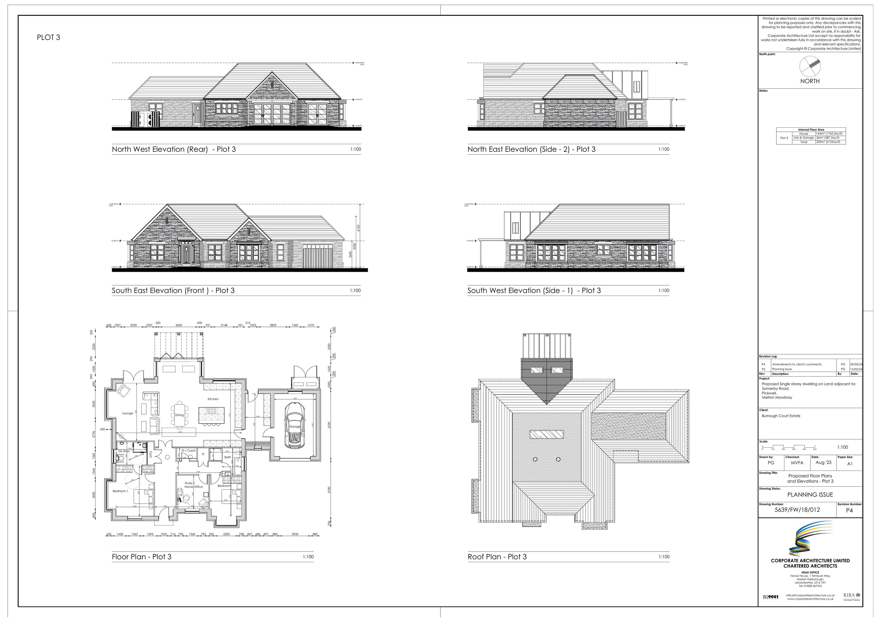
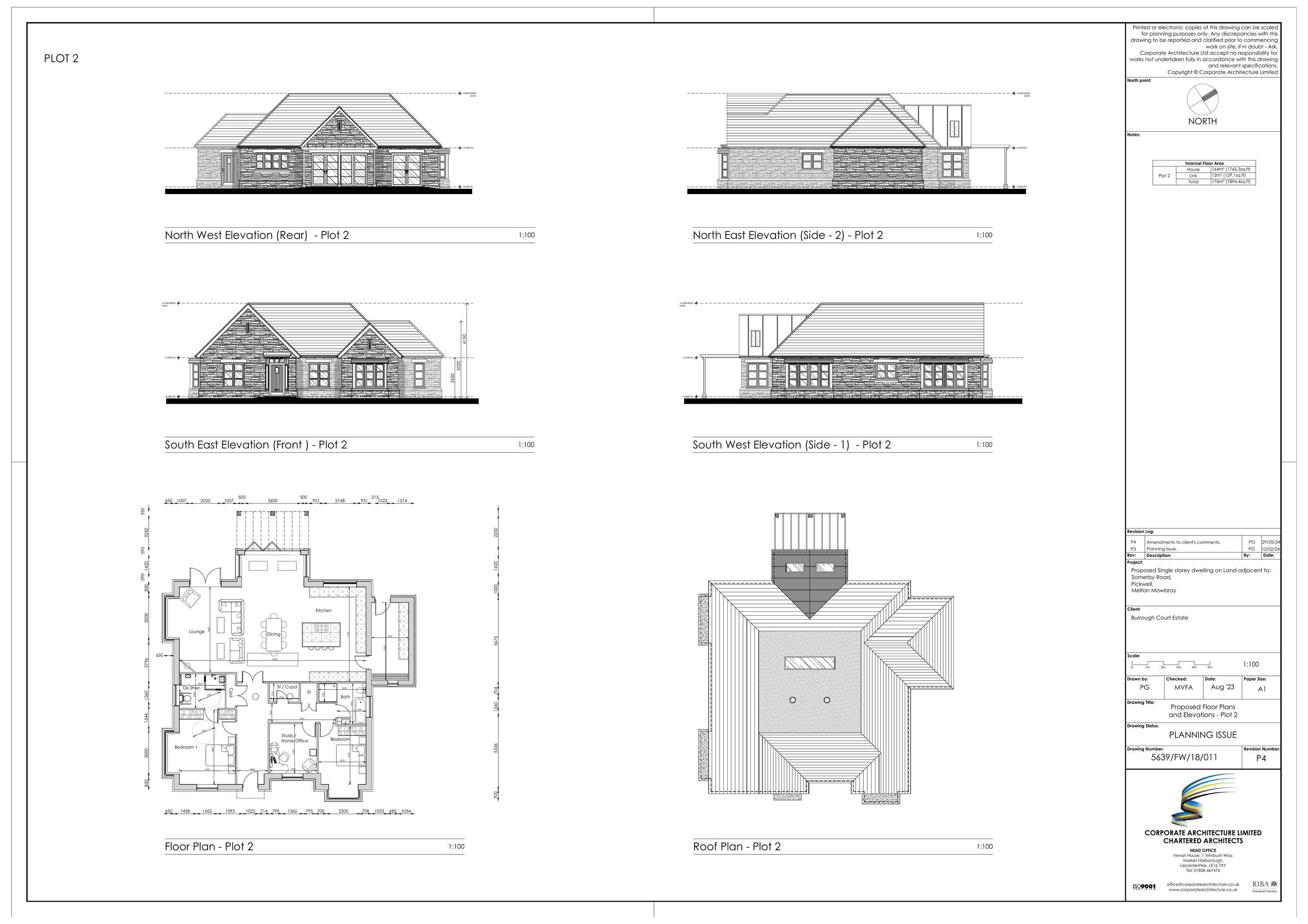
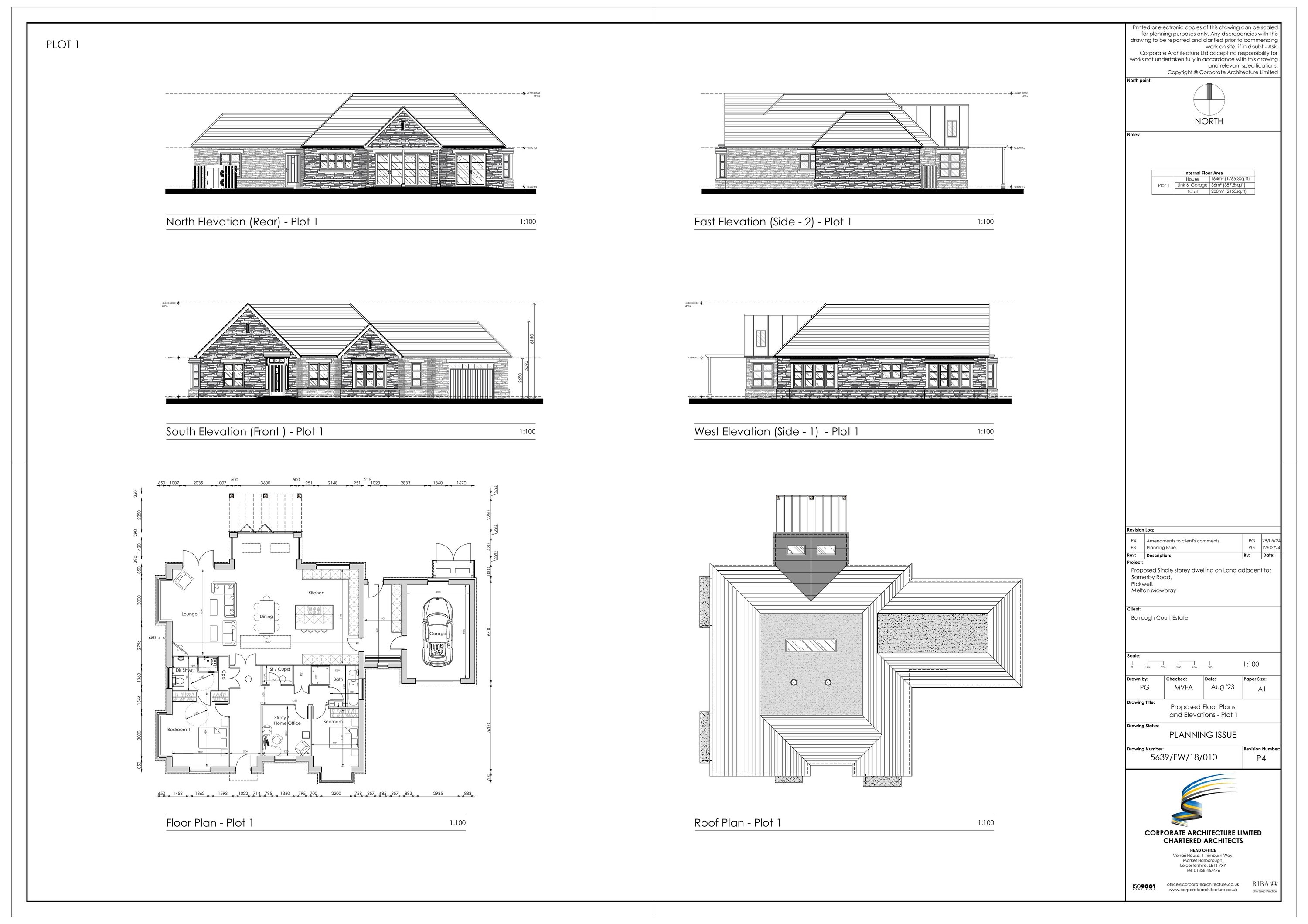
Erection of 3no bungalows, car parking for the village hall and associated infrastructure and Biodiversity Net Gain.

Have your say

Your comment matters. Councils must consider every representation that raises material planning considerations.

Write a comment