← Melton Borough Council

Status

Unknown Change of use
Received
05 Jan 2026
New homes
0

Full proposal

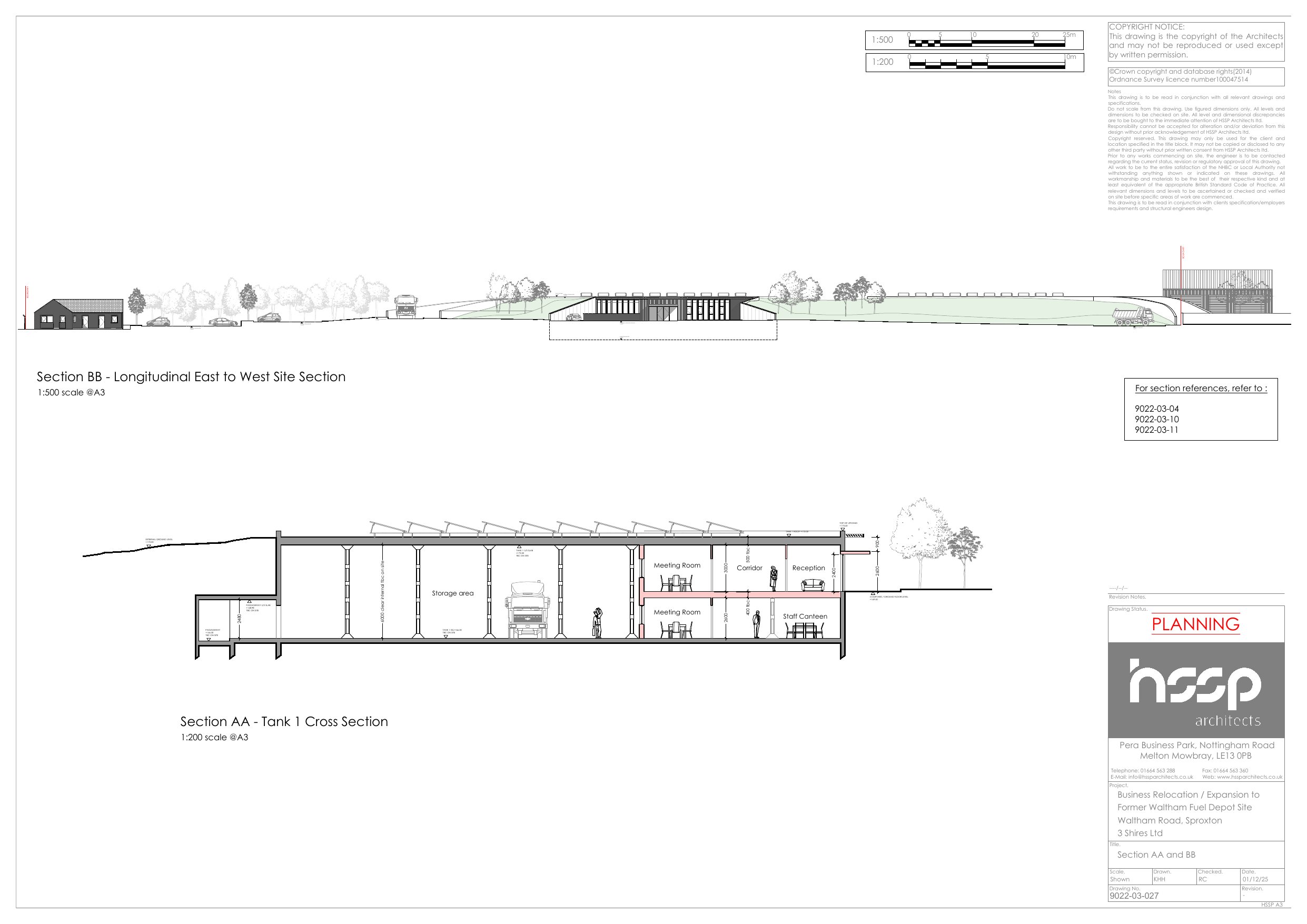
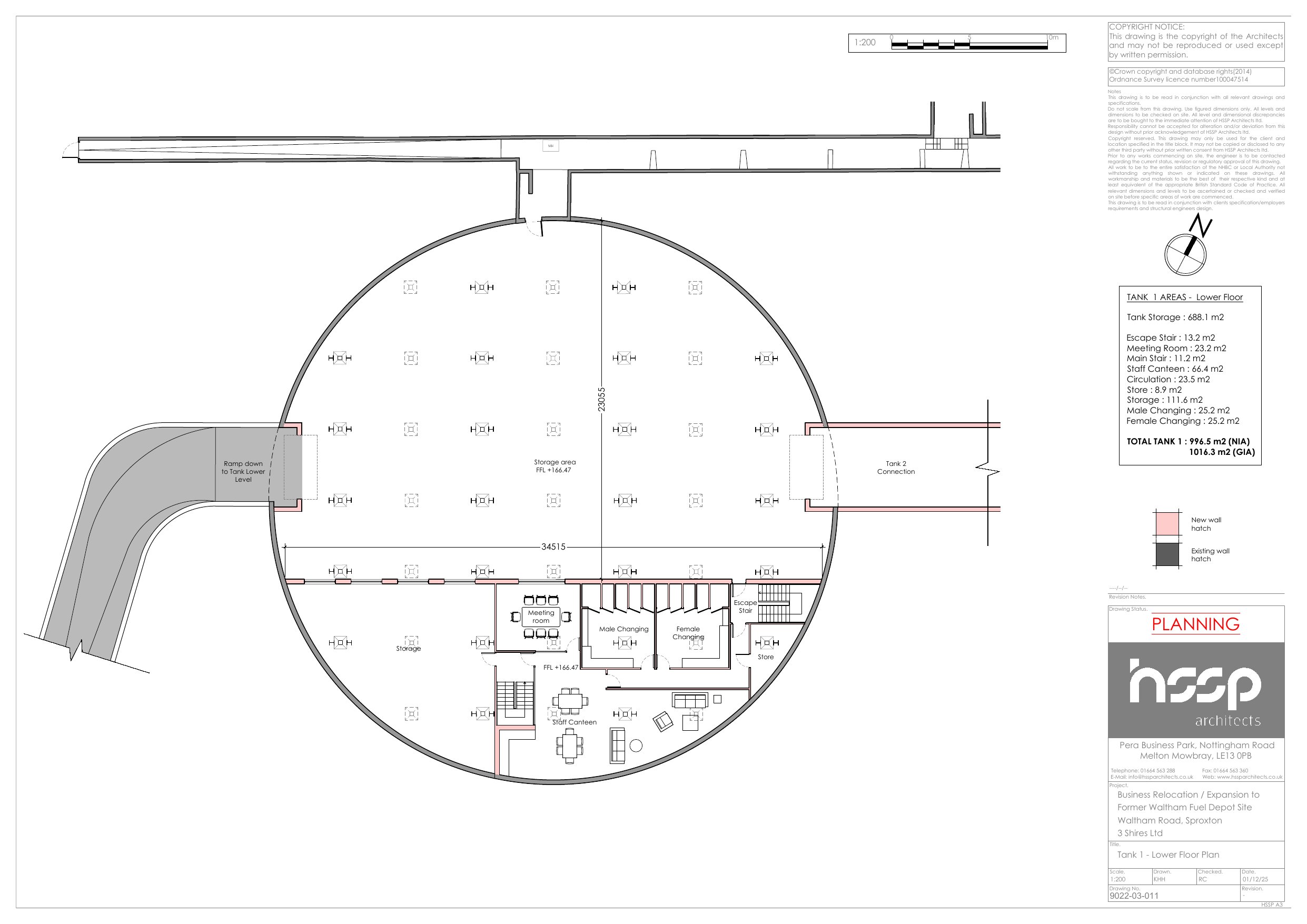
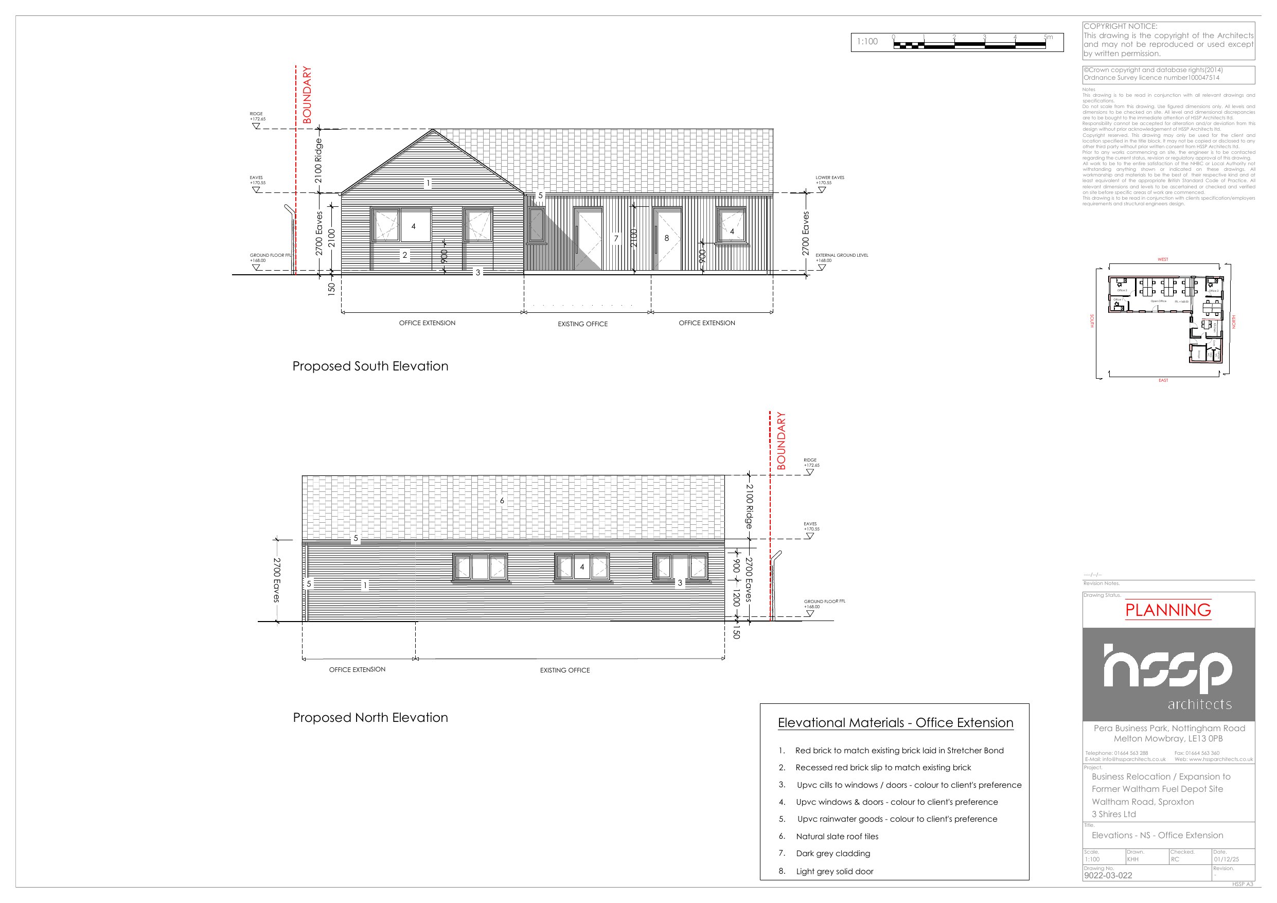
Change of use from fuel storage depot to ecology contracting and consulting. Demolition works of existing structures. Conversion of storage tanks, minor extension to buildings and construction of a new build workshop. Access and parking improvements.

Documents

Application Documents
Archived · Original link
Forms and plans
Archived · Original link
Forms and plans
Archived · Original link
Forms and plans
Archived · Original link
Forms and plans
Archived · Original link
Forms and plans
Archived · Original link
Forms and plans
Archived · Original link
Forms and plans
Archived · Original link

Have your say

Your comment matters. Councils must consider every representation that raises material planning considerations.

Write a comment