← Melton Borough Council

Status

Unknown New housing
Received
Last month
New homes
1

Full proposal

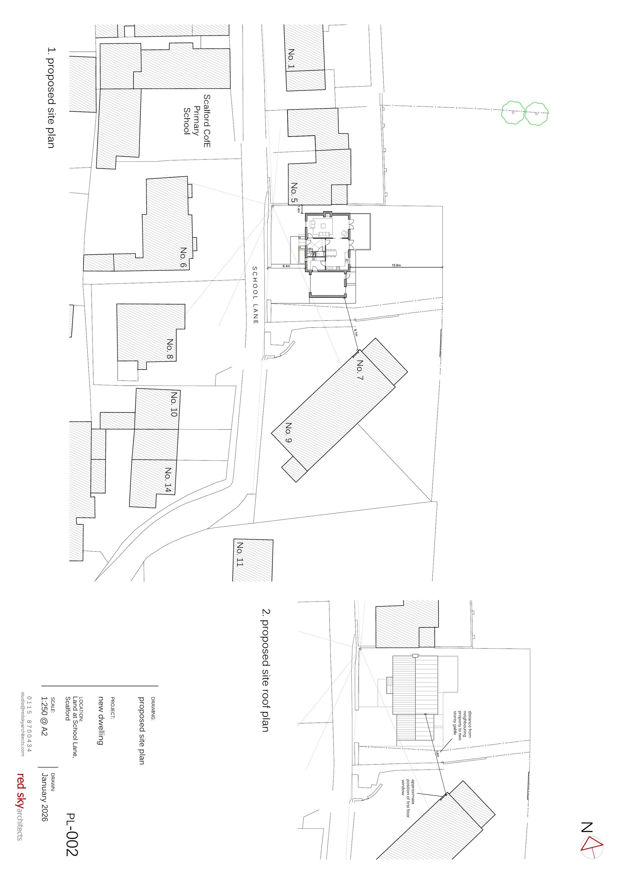
Erection of 1 no. detached dwelling, with associated access from School Lane.

Documents

Application Documents
Archived · Original link
Application Documents
Archived · Original link
Application Documents
Archived · Original link
Application Documents
Archived · Original link
Application Documents
Archived · Original link
Application Documents
Archived · Original link
Application Documents
Archived · Original link
Application Documents
Archived · Original link
Forms and plans
Archived · Original link
Application Documents
Archived · Original link
Application Documents
Archived · Original link
Application Documents
Archived · Original link
Application Documents
Archived · Original link
Application Documents
Archived · Original link
Application Documents
Archived · Original link
Application Documents
Archived · Original link
Application Documents
Archived · Original link
Forms and plans
Archived · Original link
Application Documents
Archived · Original link
Application Documents
Archived · Original link

Have your say

Your comment matters. Councils must consider every representation that raises material planning considerations.

Write a comment