← Monmouthshire County Council

Status

Pending Consideration New housing
Received
29 Jul 2024
New homes
1

Full proposal

Outline application for the erection of 1no. three bed dwelling and creation of off-street parking.

Documents

APPLICATION FORM
Application Form
Not yet archived · Original link
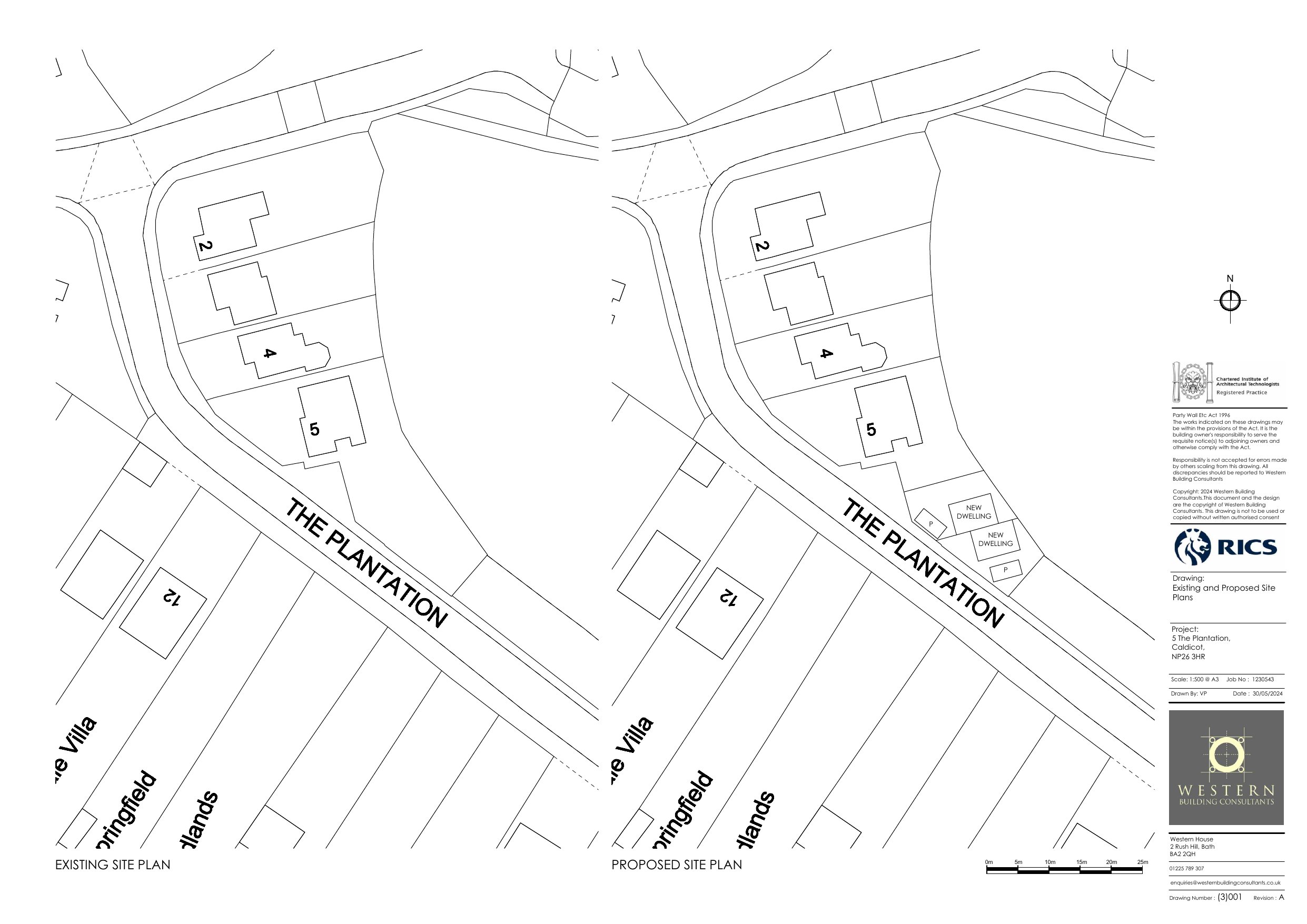
BLOCK AND LOCATION PLAN
OS Extract
Not yet archived · Original link
COMMENTS - MCC HIGHWAYS
Consultee Comment
Not yet archived · Original link
COMMENTS - WELSH WATER
Consultee Comment
Not yet archived · Original link
DESIGN AND ACCESS STATEMENT
Amended Document
Not yet archived · Original link
EHO
Consultee Comment
Not yet archived · Original link
ELEVATIONS PROPOSED
Drawing
Not yet archived · Original link
EXISTING BLOCK AND LOCATION PLAN
OS Extract
Not yet archived · Original link
EXISTING LOCATION AND BLOCK PLANS
Amended Plans
Not yet archived · Original link
Amended Plans
Archived · Original link
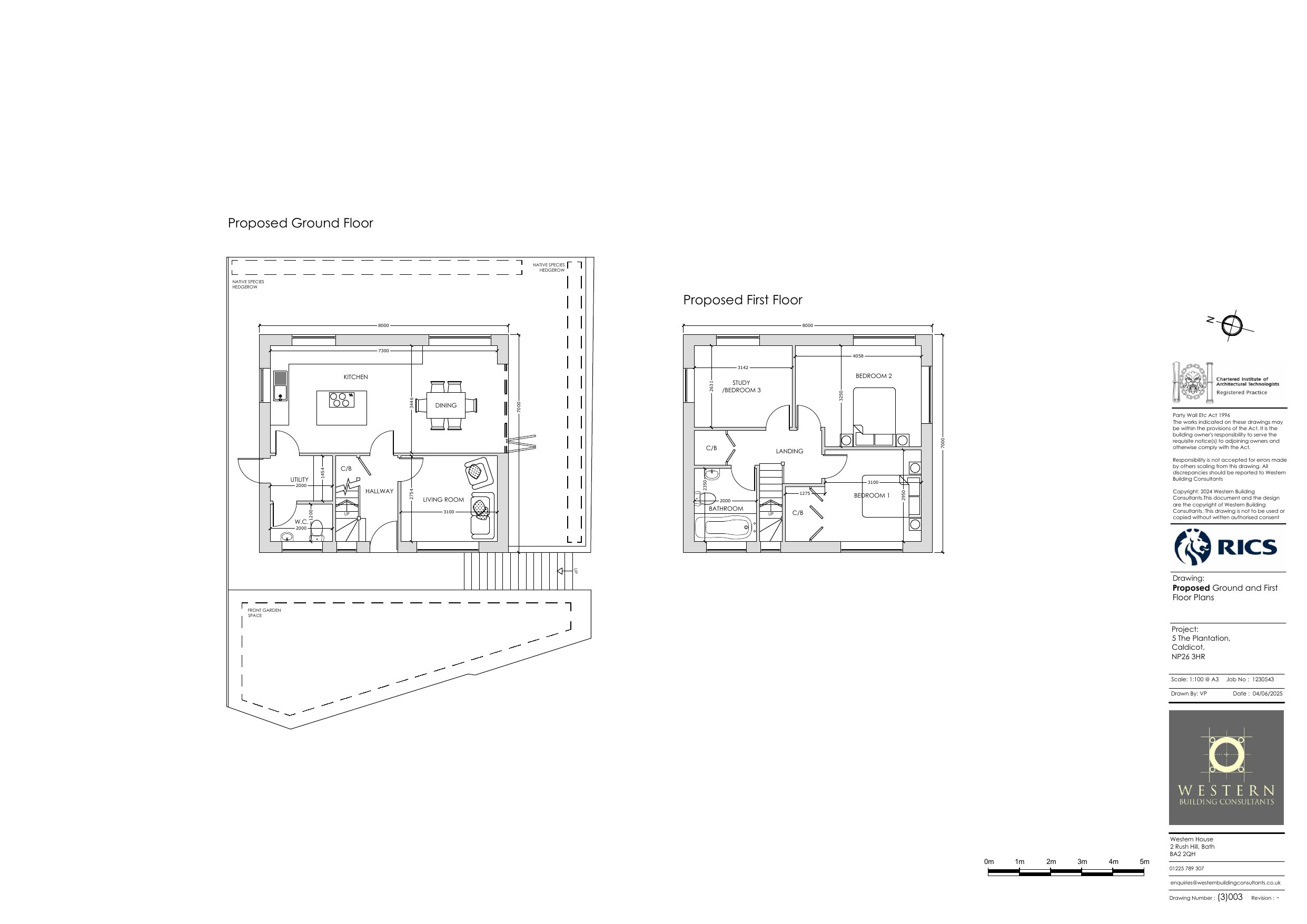
FLOOR PLANS
Drawing
Not yet archived · Original link
GREEN INFRASTRUCTURE STATEMENT
Amended Document
Not yet archived · Original link
GREEN INFRASTRUCTURE STATEMENT.
Report
Not yet archived · Original link
HOLDING OBJECTION - BIODIVERSITY
Consultee Comment
Not yet archived · Original link
HOLDING OBJECTION - BIODIVERSITY
Consultee Comment
Not yet archived · Original link
HOLDING OBJECTION - LOCAL FLOOD AUTHORITY AND SUDS
Consultee Comment
Not yet archived · Original link
KY LETTER TO AGENT
Correspondence
Not yet archived · Original link
KY LETTER TO AGENT
Correspondence
Not yet archived · Original link
KY LETTER TO AGENT
Correspondence
Not yet archived · Original link
KY LETTER TO AGENT
Correspondence
Not yet archived · Original link
KY LETTER TO AGENT
Correspondence
Not yet archived · Original link
KY LETTER TO SAB
Correspondence
Not yet archived · Original link
LETTER FROM AGENT
Correspondence
Not yet archived · Original link
LETTER FROM AGENT
Correspondence
Not yet archived · Original link
LETTER FROM AGENT
Correspondence
Not yet archived · Original link
LETTER FROM AGENT
Correspondence
Not yet archived · Original link
MCC BIODIVERSITY
Other
Not yet archived · Original link
MCC BIODIVERSITY
Consultee Comment
Not yet archived · Original link
MCC BIODIVERSITY
Consultee Comment
Not yet archived · Original link
PROPOSED ELEVATIONS
Amended Plans
Not yet archived · Original link
PROPOSED ELEVATIONS A
Amended Plans
Not yet archived · Original link
Amended Plans
Archived · Original link
Amended Plans
Archived · Original link
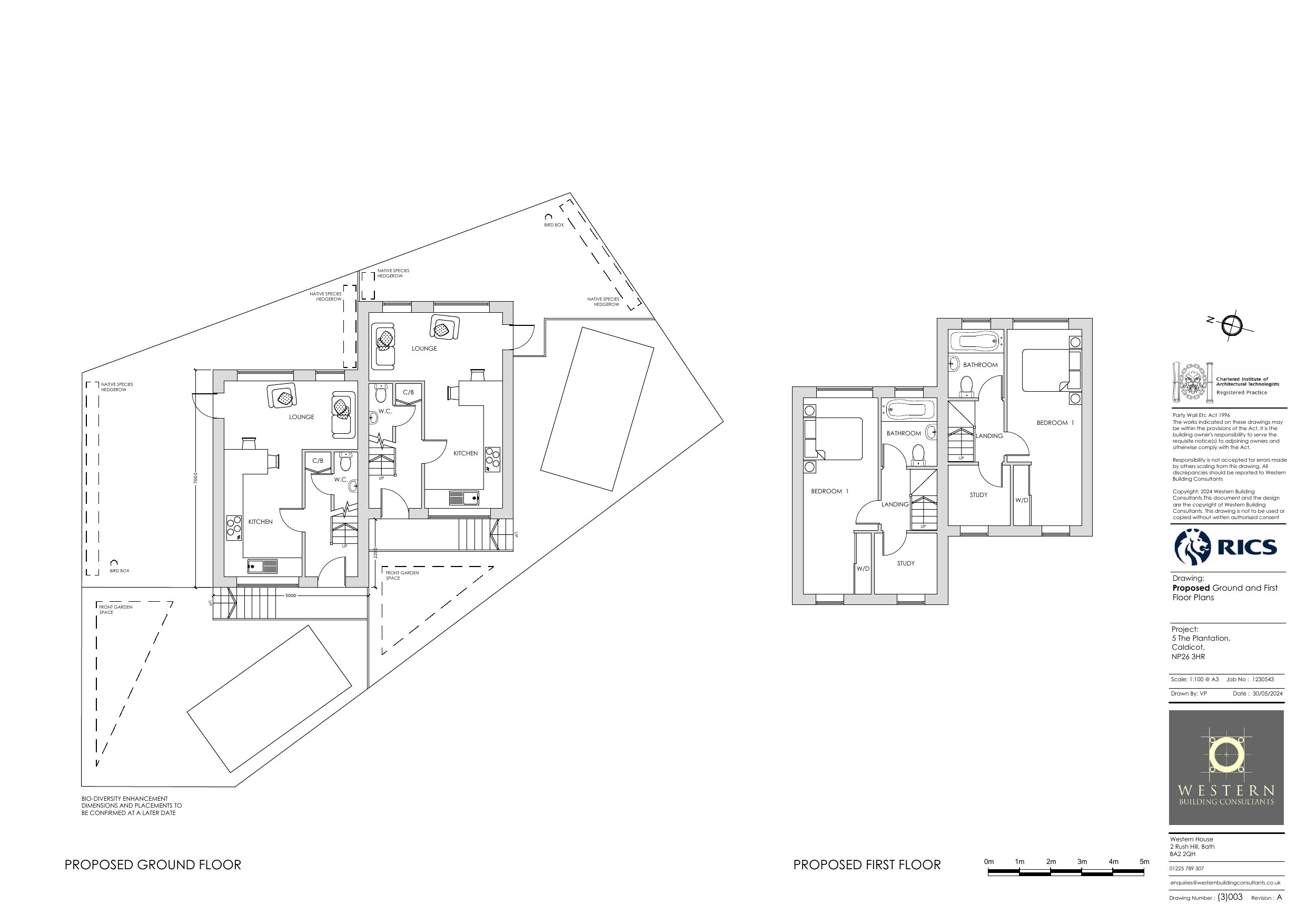
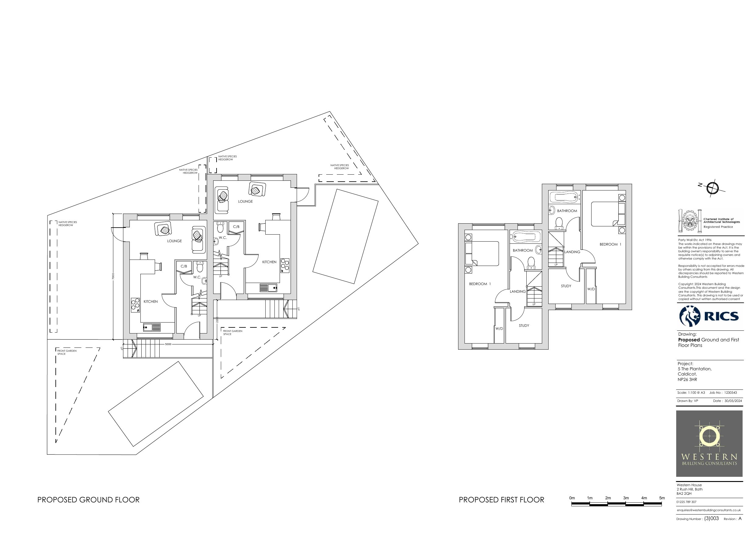
PROPOSED LOCATION AND BLOCK PLANS
Amended Plans
Not yet archived · Original link
PROV HOLDING OBJECTION - LANDSCAPE/ GREEN INFRASTRCTURE / URBAN DESIGN
Consultee Comment
Not yet archived · Original link
PROV. HOLDING OBJECTION - LOCAL FLOOD AUTHORITY AND SUDS
Consultee Comment
Not yet archived · Original link
SAB
Consultee Comment
Not yet archived · Original link
Drawing
Archived · Original link
Drawing
Archived · Original link
Amended Plans
Archived · Original link
SUDS PLAN
Amended Document
Not yet archived · Original link
SURFACE WATER DRAINAGE
Amended Document
Not yet archived · Original link
TREE OFFICER CONCERNS
Consultee Comment
Not yet archived · Original link
WELSH WATER
Other
Not yet archived · Original link

Have your say

Your comment matters. Councils must consider every representation that raises material planning considerations.

Write a comment