← All councils

Recent applications

The most recent records we hold for this council (up to 200).

Plan thumbnail

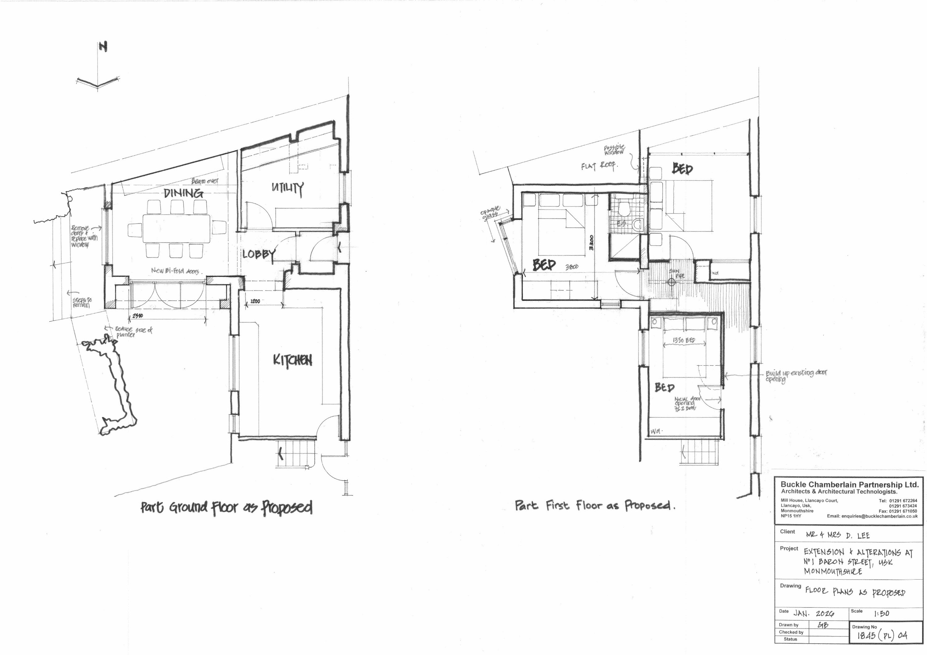
The demolition of a single storey garage building and erection of a two storey side extension in its place

Type House extension
Status Pending Consideration
Received 21 Jan 2026
Plan thumbnail

Side extension wrapped around to rear of existing house.

Type House extension
Status Pending Consideration
Received 15 Jan 2026
Plan thumbnail

Permission is sought for the ground preparation and erection of a wooden structure (Log Cabin) to house a golf simulator for personal use on...

Type Other
Status Pending Consideration
Received 30 Dec 2025
Plan thumbnail

Partial removal of flat roof to the rear of the property. Adaptation of side window to form a door. Minor internal adaptations.

Type House extension
Status Pending Consideration
Received 24 Dec 2025
Plan thumbnail

Detached single storey double garage, with a dual pitch oak framed roof to be built over part of existing driveway and garden. Overall dimen...

Type Other
Status Pending Consideration
Received Last month
Plan thumbnail

Proposed reinstallation of domestic oil storage tank within the rear garden and external oil boiler to side of dwelling.

Type Other
Status Pending Consideration
Received Last month
Plan thumbnail

Construction of 2 bedroom house on land adjacent to Tollstone House Grosmont.

Type New housing
Status Pending Consideration
Received Last month
Plan thumbnail

Modification of a flat roofed single storey extension to create a decked balcony area, with access provided by modifying a window into a doo...

Type House extension
Status Pending Consideration
Received 05 Jan 2026
Plan thumbnail

Extension to existing first floor dormers.

Type House extension
Status Pending Consideration
Received Last month
Plan thumbnail

Removal of existing roof structure and construction of first floor extension with new roof structure.

Type House extension
Status Pending Consideration
Received Last month
Plan thumbnail

Lean to extension to the rear of the dwelling. Roof in grey tile effect system Walls in matching render Windows in white UPVC double glazing...

Type House extension
Status Pending Consideration
Received Last month
Plan thumbnail

Proposed single storey rear extension (including part demolition of existing single storey rear extensions) and first floor rear extension w...

Type House extension
Status Pending Consideration
Received Last month
Plan thumbnail

Installation of replacement radio equipment housing together with air conditioning units, solar panels and ancillary development thereto.

Type Infrastructure
Status Pending Consideration
Received Last month
Plan thumbnail

The existing property is a four bedroom house with an annex comprising a one bed flat over a double garage. There is a large single storey m...

Type House extension
Status Pending Consideration
Received Last month
Plan thumbnail

Retrospective change of use from nil use to residential curtilage which includes an extension to approved patio area and a timber structure.

Type Change of use
Status Pending Consideration
Received Last month
Plan thumbnail

Rear single storey extension abutting garage and part conversion of garage

Type House extension
Status Pending Consideration
Received 29 days ago
Plan thumbnail

Conversion of sloping roof with velux window to dormer window. No changes to access, street, hard-standings, means of enclosure or draining

Type House extension
Status Pending Consideration
Received Last month
Plan thumbnail

Proposed dormer window extension at first floor level on East elevation and small window to toilet at ground level on North elevation

Type House extension
Status Pending Consideration
Received Last month
Plan thumbnail

Proposed demolition of a detached dwelling and construction of a new detached 4 Bedroom dwelling and attached garage.

Type New housing
Status Pending Consideration
Received Last month
Plan thumbnail

CAC - Redevelopment of existing B1/B2 Commercial Premises to include demolition of existing structure. (See concurrent planning DM/2025/0067...

Type Demolition
Status Pending Consideration
Received 28 May 2025
Plan thumbnail

Redevelopment of existing B1/B2 Commercial Premises to include demolition of existing structure.

Type Commercial
Status Pending Consideration
Received 28 May 2025
Plan thumbnail

Timber fascia to be installed and be painted RAL 7038 Agate Grey along with shop frontage. Fascia signage to comprise of 10mm Foamex letters...

Type Advertisement
Status Pending Consideration
Received Last month
Plan thumbnail

Extension to existing dwelling, improving living accommodation for growing family and improving overall thermal performance. Proposal includ...

Type House extension
Status Pending Consideration
Received Last month
Plan thumbnail

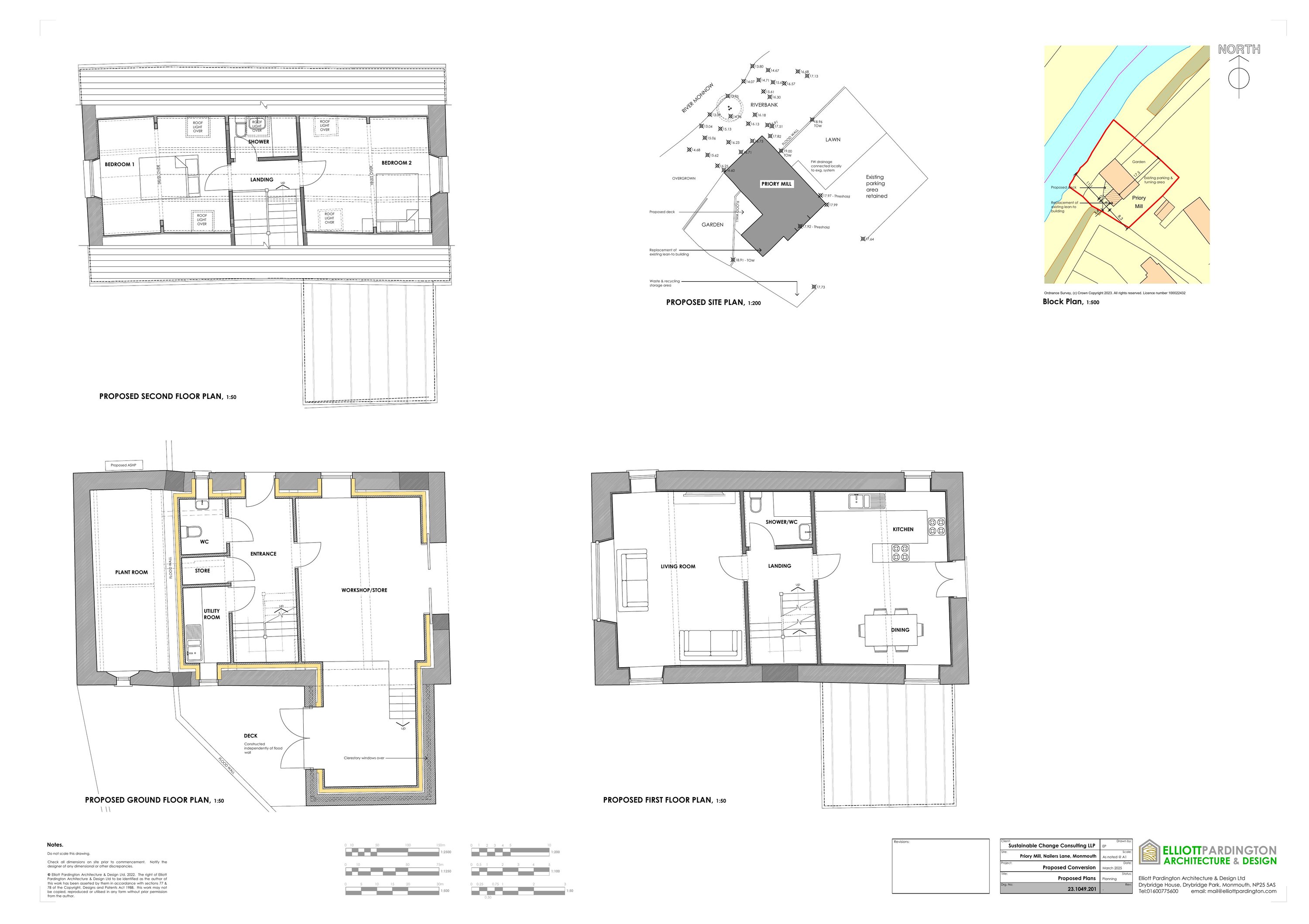
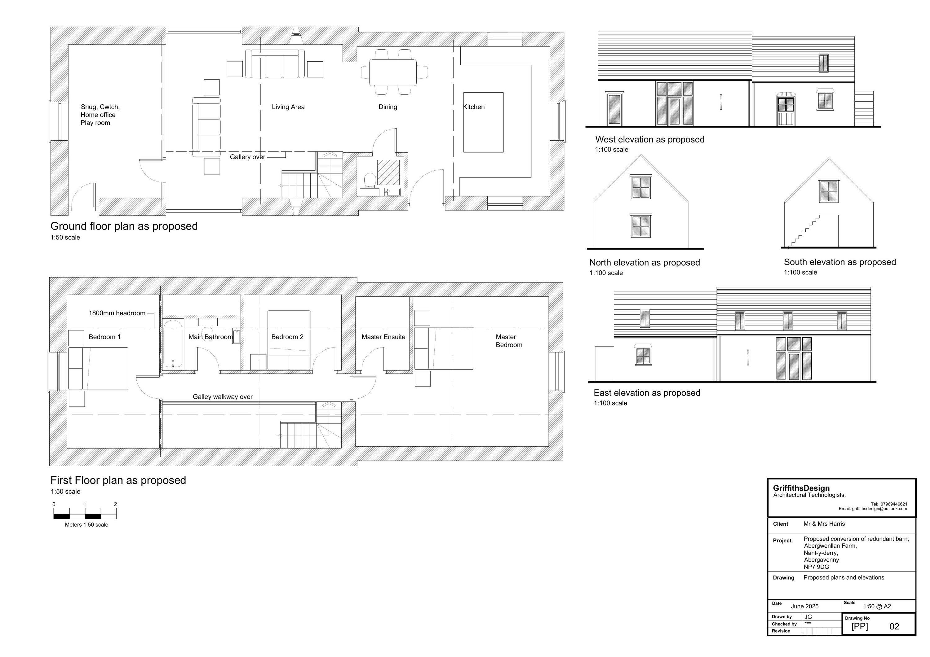
LBC - Conversion and single storey extension of a Grade II listed barn into two dwellings. New openings to include 8 rooflights.

Type Listed building
Status Pending Consideration
Received Last month
Plan thumbnail

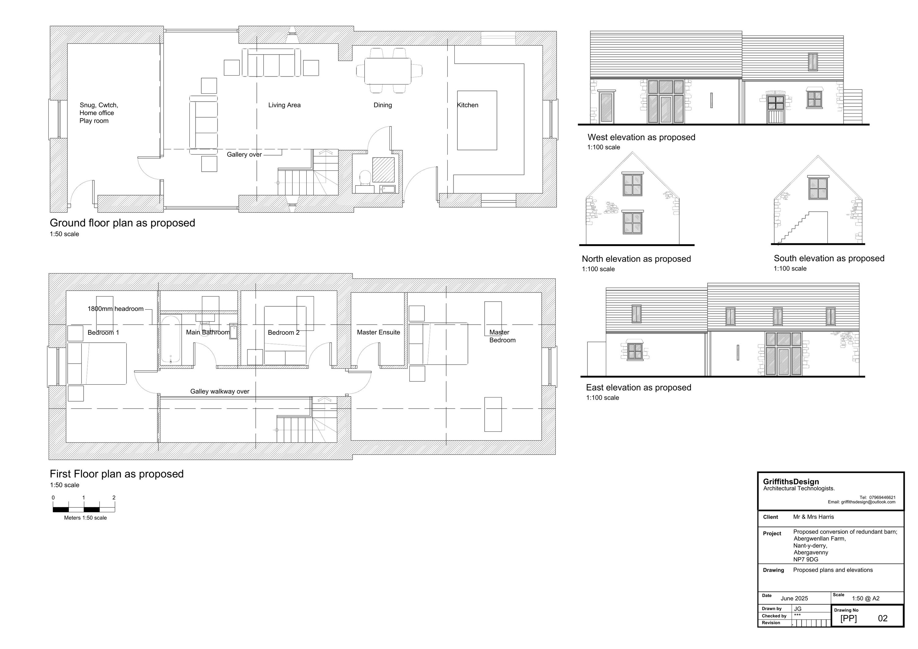
The conversion, alteration, and extension of a Grade II listed barn into two dwellings, including associated landscaping, parking, and an an...

Type Listed building
Status Pending Consideration
Received Last month
Plan thumbnail

The proposed works consist of building a single storey lean-to to provide a new kitchen, and internal alterations to change an existing kitc...

Type House extension
Status Pending Consideration
Received 16 Jan 2026

5m extension to rear of ground floor, to include replacement of existing lean-to roof with new flat roof. Rear wall at loft level to be buil...

Type House extension
Status Pending Consideration
Received 27 Nov 2025

Change of use from residential to dental surgery. Movement of 2nd floor bathroom door. Alteration to front elevation railing to provide disa...

Type Change of use
Status Pending Consideration
Received 12 Nov 2025

Part conversion and change of use of Coach House into residential (Class 3 Dwellinghouses)

Type Change of use
Status Pending Consideration
Received 07 Nov 2025

Change of use from offices to 3 no. self-contained apartments

Type Change of use
Status Pending Consideration
Received 30 Jul 2025

Proposed rear extensions, attic conversion with minor internal alteration to existing dwelling.

Type House extension
Status Pending Consideration
Received 11 Nov 2025

The change of use of the upper floors of the building from Class A2 (Financial and Professional Services) to Class C3 (Residential). The dev...

Type Change of use
Status Pending Consideration
Received 21 Oct 2025
Plan thumbnail

Proposed extension and alterations to the existing single storey flat roof double garage on plot, for the creation of a home office space, i...

Type House extension
Status Pending Consideration
Received 10 Oct 2025

Change of use from Class A1 (retail/hairdresser) to Class D1 (non-residential institution) to operate as a private day nursery, to be known ...

Type Change of use
Status Pending Consideration
Received 23 Sep 2025
Plan thumbnail

Proposed conversion of Barn to Dwelling, uilising existing entrance, planting of wildflower meadow, native hedgerow & associated works.

Type Change of use
Status Pending Consideration
Received 01 Aug 2025
Plan thumbnail

Proposed conversion of barn to dwelling, uilising existing entrance, planting of wildflower meadow, native hedgerow & associated works.

Type Change of use
Status Pending Consideration
Received 01 Aug 2025
Plan thumbnail

Proposed change of use of first floor commercial units (2, 3 &4) into 2no flats.

Type Change of use
Status Pending Consideration
Received 24 Jul 2025
Plan thumbnail

The erection of a replacement dwelling and associated works.

Type New housing
Status Pending Consideration
Received 18 Jul 2025
Plan thumbnail

Proposed refurbishment of existing flats and ground floor shop with demolition of existing out-building with new extension to form additiona...

Type Listed building
Status Pending Consideration
Received 07 Jul 2025

Demolition of existing garage and construction of 1no. detached dwelling with 3 bedrooms, off-road parking provision for 2 vehicles and ampl...

Type New housing
Status Pending Consideration
Received 02 Jul 2025
Plan thumbnail

Change of use from a holiday let to a permanent residential dwelling (Use Class C3)

Type Change of use
Status Pending Consideration
Received 27 Jun 2025
Plan thumbnail

The Proposed erection of new detached dwelling.

Type New housing
Status Pending Consideration
Received 24 Jun 2025
Plan thumbnail

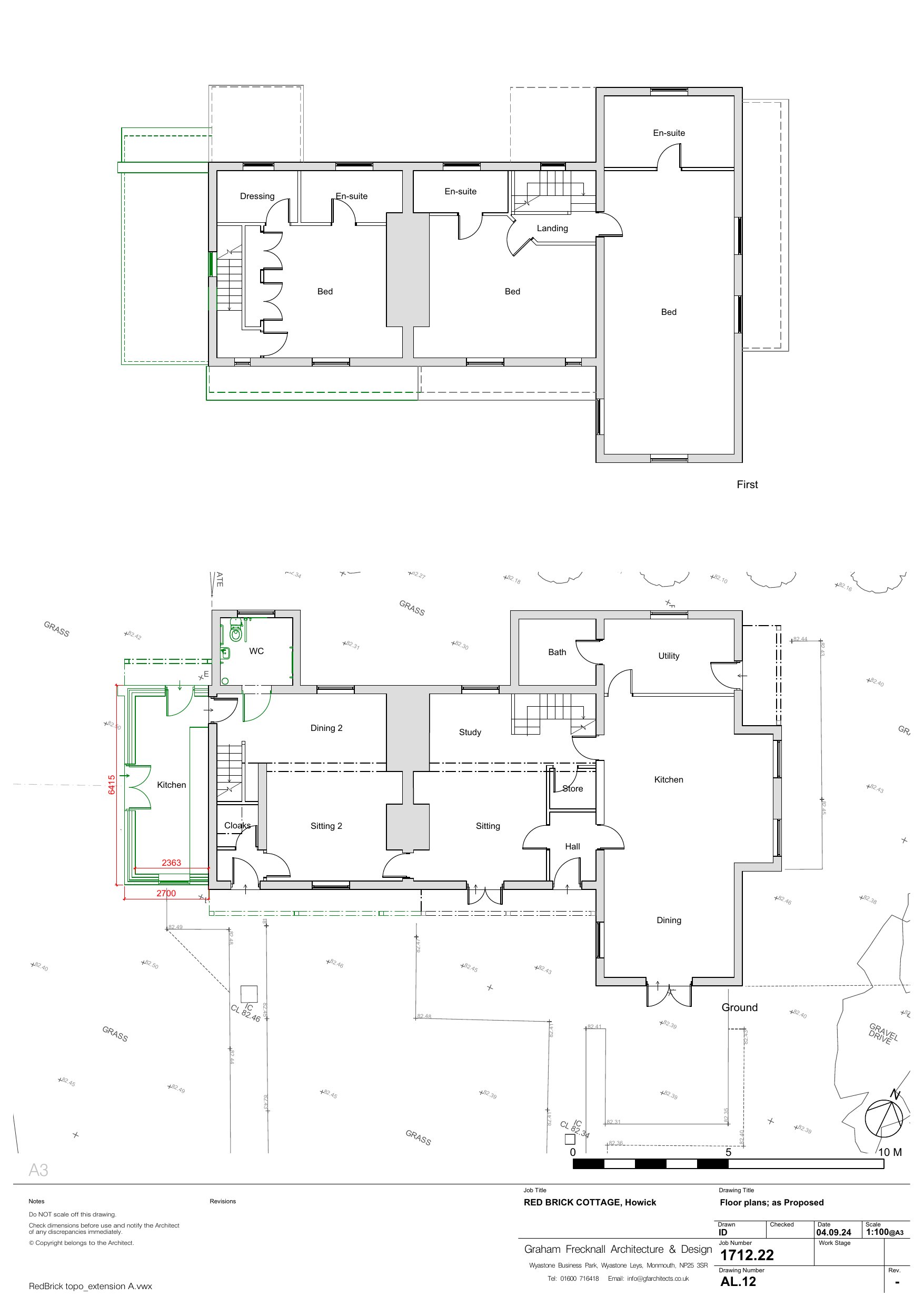
Proposed extension and renovation to a detached two storey dwelling with associated hard and soft landscaping.

Type House extension
Status Pending Consideration
Received 11 Jun 2025
Plan thumbnail

Single storey extension to rear of property, dormer to rear of property and 1.5 storey extension to front and side of dwelling. New garage.

Type House extension
Status Pending Consideration
Received 06 Jun 2025
Plan thumbnail

Reprofiling of adjacent field (retrospective), new driveway, and extension of residential curtilage

Type Other
Status Pending Consideration
Received 17 Mar 2025
Plan thumbnail

Outline planning for one dwelling.

Type New housing
Status Pending Consideration
Received 03 Jun 2025
Plan thumbnail

LBC - convert the redundant roofed section of cowshed to 2 bed dwelling, landscaping to courtyard.

Type Listed building
Status Pending Consideration
Received 29 May 2025
Plan thumbnail

The proposal is to convert the redundant cowshed into a two-bedroom dwelling

Type Change of use
Status Pending Consideration
Received 29 May 2025
Plan thumbnail

Change of use of existing redundant barn to residential dwelling. The conversion will provide 2/3 bedroom accommodation over 2 storeys.

Type Change of use
Status Pending Consideration
Received 02 Oct 2023
Plan thumbnail

The application is seeking planning permission for the erection of a new dwelling, associated private garden,and parking space at the adjace...

Type New housing
Status Pending Consideration
Received 09 Apr 2025
Plan thumbnail

Conversion of existing building to provide a single dwelling. Reconstruction of existing lean-to extension. Construction of external deck ar...

Type Change of use
Status Pending Consideration
Received 01 Apr 2025
Plan thumbnail

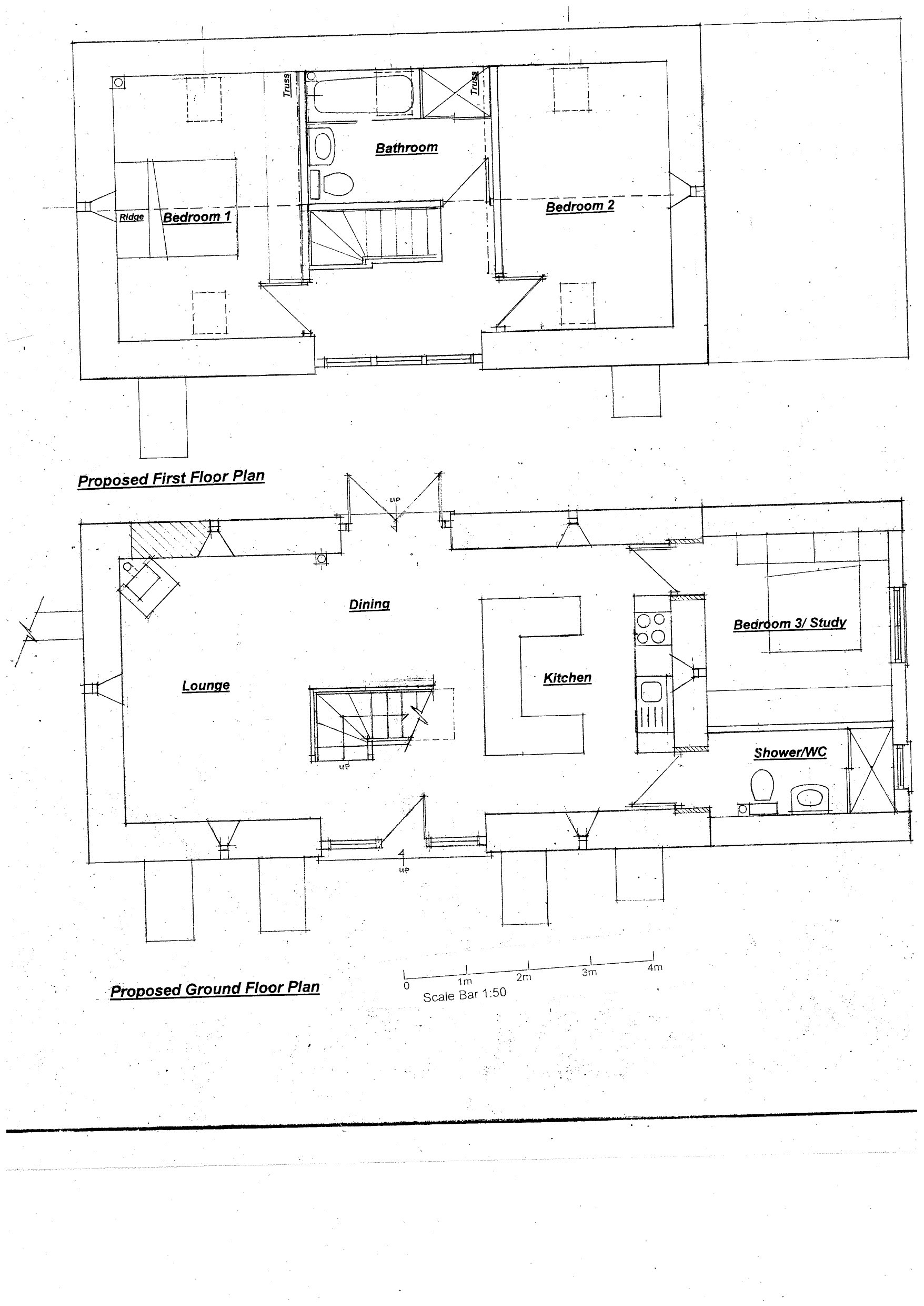
Single storey extension to the west wing to provide additional living accommodation, with first floor extension to west end to provide addit...

Type House extension
Status Pending Consideration
Received 12 Mar 2025

Conversion of attic above stable with associated works to create residential unit. (See concurrent LBC DM/2025/00101).

Type Change of use
Status Pending Consideration
Received 28 Jan 2025
Plan thumbnail

Proposed single storey extension to the existing dwelling.

Type House extension
Status Pending Consideration
Received Last month
Plan thumbnail

Proposed single storey lean-to extension to the rear of the detached dwelling including minor internal and external works.

Type House extension
Status Pending Consideration
Received Last month
Plan thumbnail

Outline planning application for residential development of up to 110 dwellings with landscaping, public open space and associated infrastru...

Type New housing
Status Pending Consideration
Received 17 Oct 2024
Plan thumbnail

Outline application for the erection of 1no. three bed dwelling and creation of off-street parking.

Type New housing
Status Pending Consideration
Received 29 Jul 2024
Plan thumbnail

Proposed new build 3 bedroom detached dwelling with off street parking.

Type New housing
Status Pending Consideration
Received 28 Oct 2021

Conversion of barn into an open market dwelling, including new openings and changes to the built fabric.

Type Change of use
Status Pending Consideration
Received 11 Nov 2024
Plan thumbnail

Provision of 3no. new houses in the grounds of Portskewett House with associated works

Type New housing
Status Pending Consideration
Received 17 Dec 2024
Plan thumbnail

LBC - Provision of 3no. new houses in the grounds of Portskewett House with associated works.

Type New housing
Status Pending Consideration
Received 17 Dec 2024
Plan thumbnail

Proposed two storey extension to existing dwelling.

Type House extension
Status Pending Consideration
Received Last month
Plan thumbnail

Change of use of ground floor from A1 retail to B1 office use. Change of use of first and second floors from 4no. bedroom C3 residential mai...

Type Change of use
Status Pending Consideration
Received Last month
Plan thumbnail

Proposed change of use from vacant dwelling/former nursery to children's nursery.

Type Change of use
Status Pending Consideration
Received Last month

Change of use from residential to commercial, restaurant and takeaway of the ground floor and an area of the rear garden

Type Change of use
Status Pending Consideration
Received 22 Sep 2025
Plan thumbnail

New 1.5 storey 3 bed dwelling, conversion of existing barn workshop to provide double garage.

Type New housing
Status Pending Consideration
Received 13 Jan 2025
Plan thumbnail

Full planning application for the conversion of public house to create 2no. residential dwellings and proposed development of 2no. new resid...

Type Change of use
Status Pending Consideration
Received 02 Oct 2024
Plan thumbnail

Proposed construction of 2 bedroom dwelling.

Type New housing
Status Pending Consideration
Received 22 Aug 2024
Plan thumbnail

Part conversion and change of use of Coach House into residential (Class 3 Dwellinghouses)

Type Change of use
Status Pending Consideration
Received 07 Nov 2025
Plan thumbnail

Demolition of existing commercial buildings and erection of a new building providing three residential flats

Type New housing
Status Pending Consideration
Received 29 Jan 2026
Plan thumbnail

Renovation, extension and minor landscape adjustments to an existing dwelling; consisting of one single storey extension to the front, one s...

Type House extension
Status Pending Consideration
Received 30 Dec 2025
Plan thumbnail

Change of use from C1 Hotel to C3 use class, Residential Dwelling

Type Change of use
Status Pending Consideration
Received 28 Nov 2025
Plan thumbnail

Change of use from residential to veterinary surgery of 52 Brecon Road and single storey link extension, linking the veterinary surgery at N...

Type Change of use
Status Pending Consideration
Received 02 Sep 2025
Plan thumbnail

Change of use of the site (2337 m2) from agricultural to One Planet Development subject to the OPD Management Plan. Including: The siting of...

Type Change of use
Status Pending Consideration
Received 24 Sep 2025
Plan thumbnail

Garage Conversion to 1 Bed Dwelling House

Type Change of use
Status Pending Consideration
Received 14 Nov 2025
Plan thumbnail

Barn conversion to provide dwelling.

Type Change of use
Status Pending Consideration
Received 14 Oct 2025
Plan thumbnail

Change of use from residential to dental surgery. Movement of 2nd floor bathroom door. Alteration to front elevation railing to provide disa...

Type Change of use
Status Pending Consideration
Received 20 Nov 2025
Plan thumbnail

Demolition of existing garage and the construction of 1no dwelling with parking and associated works.

Type New housing
Status Pending Consideration
Received 24 Oct 2025
Plan thumbnail

New access onto highway. Including driveway to barn and to new future house. Part of the road approx 75 sq metres will be in the adjacent fi...

Type Infrastructure
Status Pending Consideration
Received 19 Jan 2026
Plan thumbnail

Change of use of first floor from B1 (offices) to C3 (dwelling/flat).

Type Change of use
Status Pending Consideration
Received 02 Feb 2026

Construction of a flat-roofed single-storey rear extension and flat-roofed rear dormer to accommodate a new utility and bedroom on the groun...

Type House extension
Status Pending Consideration
Received 30 Jan 2026
Plan thumbnail

Demolition of existing house with replacement low energy house and car port.

Type Demolition
Status Pending Consideration
Received 28 Jan 2026