← Monmouthshire County Council
DM/2024/01560
Monmouthshire County Council
Status
Pending Consideration
New housing
Received
17 Dec 2024
New homes
3
Full proposal
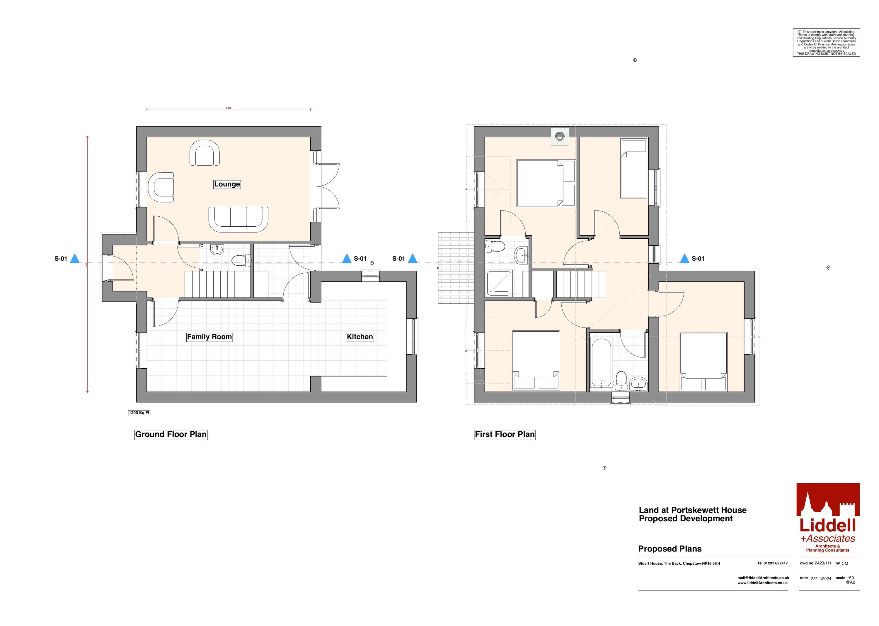
Provision of 3no. new houses in the grounds of Portskewett House with associated works
Documents
ACCESS STATEMENT_INCLUDED_IN_BLOCK PLAN OF THE SITE_27627916
Report
Not yet archived
· Original link
DESIGN AND ACCESS STATEMENT_INCLUDED_IN_BLOCK PLAN OF THE SITE
Other
Not yet archived
· Original link
PORTSKEWETT HOUSE PRELIMINARY ECOLOGICAL APPRAISAL BAT SURVEY 24
Other
Not yet archived
· Original link
PORTSKEWETT RESPONSE TO MCC HIGHWAYS CONSULTATION RESPONSE MAY
Correspondence
Not yet archived
· Original link
Have your say
Your comment matters. Councils must consider every representation that raises material planning considerations.