← Monmouthshire County Council

Status

Pending Consideration New housing
Received
17 Dec 2024
New homes
3

Full proposal

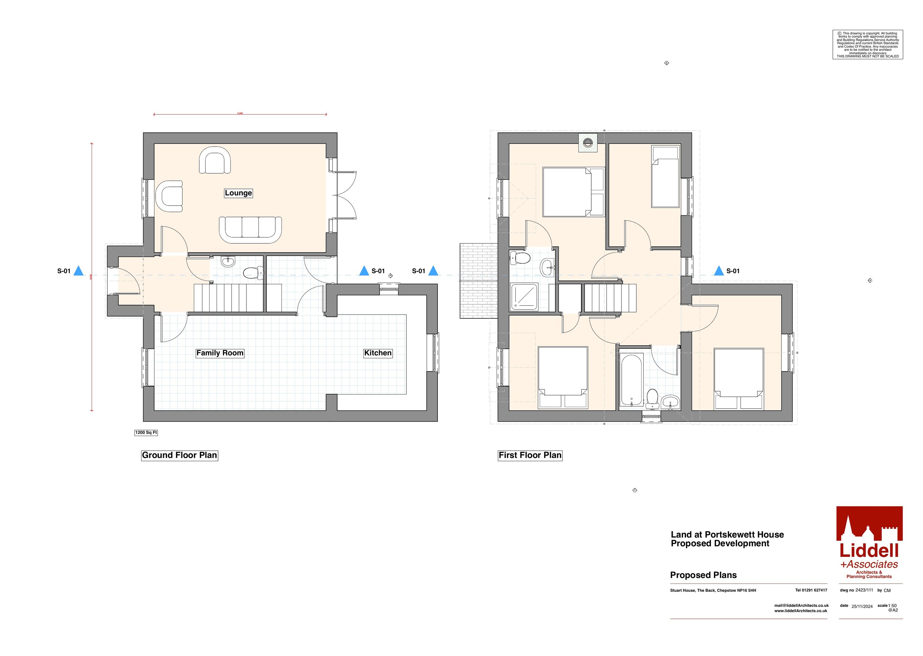
LBC - Provision of 3no. new houses in the grounds of Portskewett House with associated works.

Documents

APPLICATION FORM
Application Form
Not yet archived · Original link
COMMENT - GGAT
Consultee Comment
Not yet archived · Original link
COMMENT - PORTSKEWETT COMMUNITY COUNCIL
Consultee Comment
Not yet archived · Original link
COMMENTS - NATIONAL AMENITY SOCIETY
Consultee Comment
Not yet archived · Original link
HERITAGE IMPACT ASSESSMENT
Report
Not yet archived · Original link
IDOX DATA
OS Extract
Not yet archived · Original link
ONLINE COMMENT - 2:57 PM
Public Comment
Not yet archived · Original link
ONLINE COMMENT - 3:18 PM
Public Comment
Not yet archived · Original link
ONLINE COMMENT - 7:34 PM
Public Comment
Not yet archived · Original link
ONLINE COMMENT - 9:32 AM
Public Comment
Not yet archived · Original link
ONLINE COMMENT 16:35
Public Comment
Not yet archived · Original link
PRELIMINARY ECOLOGICAL APPRAISAL BAT SURVEY 24
Report
Not yet archived · Original link
PROPOSED ELEVATIONS
Drawing
Not yet archived · Original link
Drawing
Archived · Original link
Drawing
Archived · Original link
Amended Plans
Archived · Original link
TREE INFORMATION
Report
Not yet archived · Original link

Have your say

Your comment matters. Councils must consider every representation that raises material planning considerations.

Write a comment