← Monmouthshire County Council

Status

Pending Consideration House extension
Received
06 Jun 2025
New homes
0

Full proposal

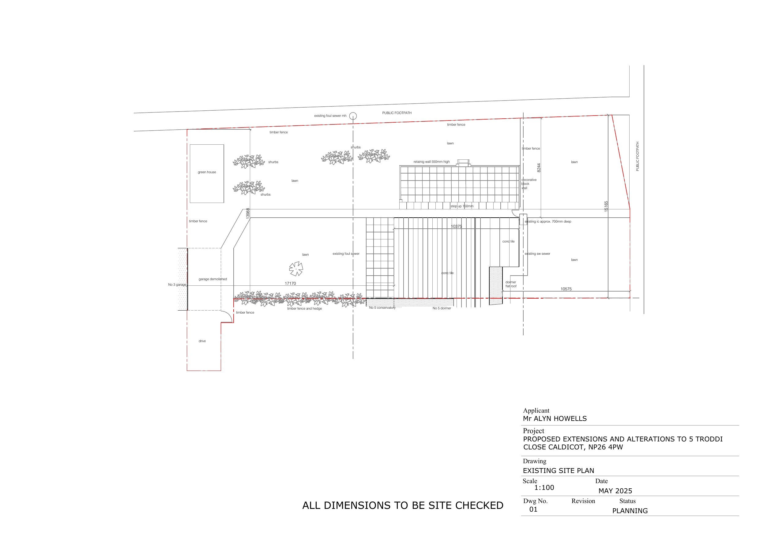
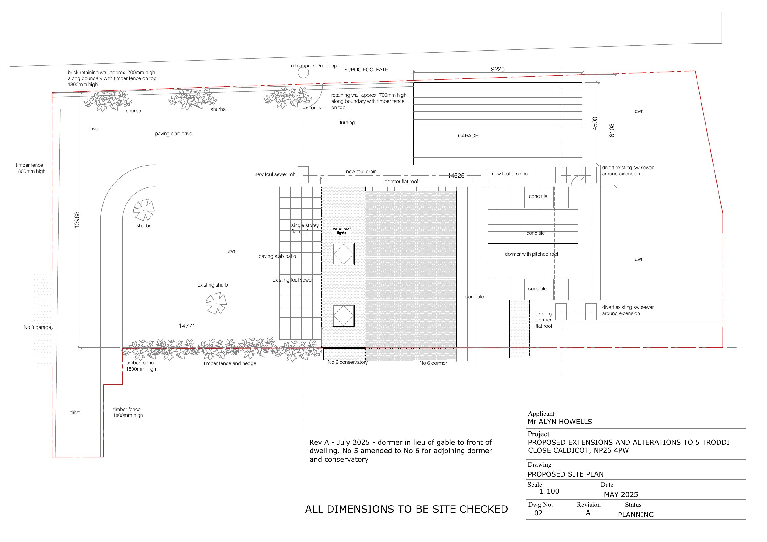
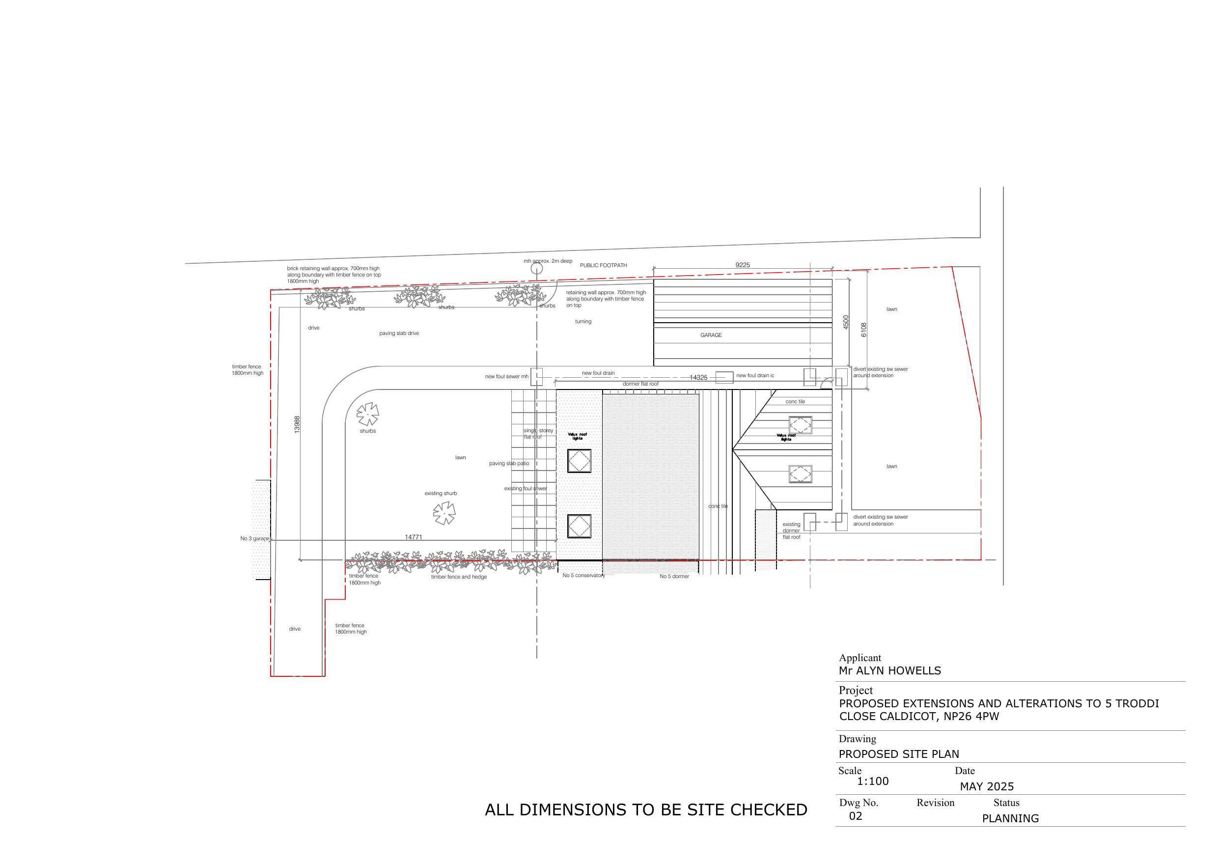
Single storey extension to rear of property, dormer to rear of property and 1.5 storey extension to front and side of dwelling. New garage.

Documents

APPLICATION FORM
Application Form
Not yet archived · Original link
CALDICOT TOWN COUNCIL
Consultee Comment
Not yet archived · Original link
ELEVATIONS PROPOSED
Document Superseded
Not yet archived · Original link
ELEVS
Document Superseded
Not yet archived · Original link
EX. ELEVS
Drawing
Not yet archived · Original link
FF PLAN
Document Superseded
Not yet archived · Original link
FF PLAN
Amended Plans
Not yet archived · Original link
FLOOR PLANS
Drawing
Not yet archived · Original link
GARAGE
Drawing
Not yet archived · Original link
GF PLAN
Drawing
Not yet archived · Original link
GREEN INFRASTRUCTURE STATEMENT
Other
Not yet archived · Original link
LOCATION PLAN
OS Extract
Not yet archived · Original link
MCC SUDS
Consultee Comment
Not yet archived · Original link
MCC SUDS
Other
Not yet archived · Original link
ONLINE COMMENT 12:10
Public Comment
Not yet archived · Original link
PROPOSED ELEVATIONS
Amended Plans
Not yet archived · Original link
Amended Plans
Archived · Original link
Amended Plans
Archived · Original link
SEWER PLAN
Drawing
Not yet archived · Original link
Document Superseded
Archived · Original link
Drawing
Archived · Original link
Document Superseded
Archived · Original link
WELSH WATER
Correspondence
Not yet archived · Original link

Have your say

Your comment matters. Councils must consider every representation that raises material planning considerations.

Write a comment