← Monmouthshire County Council

Status

Pending Consideration House extension
Received
11 Jun 2025
New homes
0

Full proposal

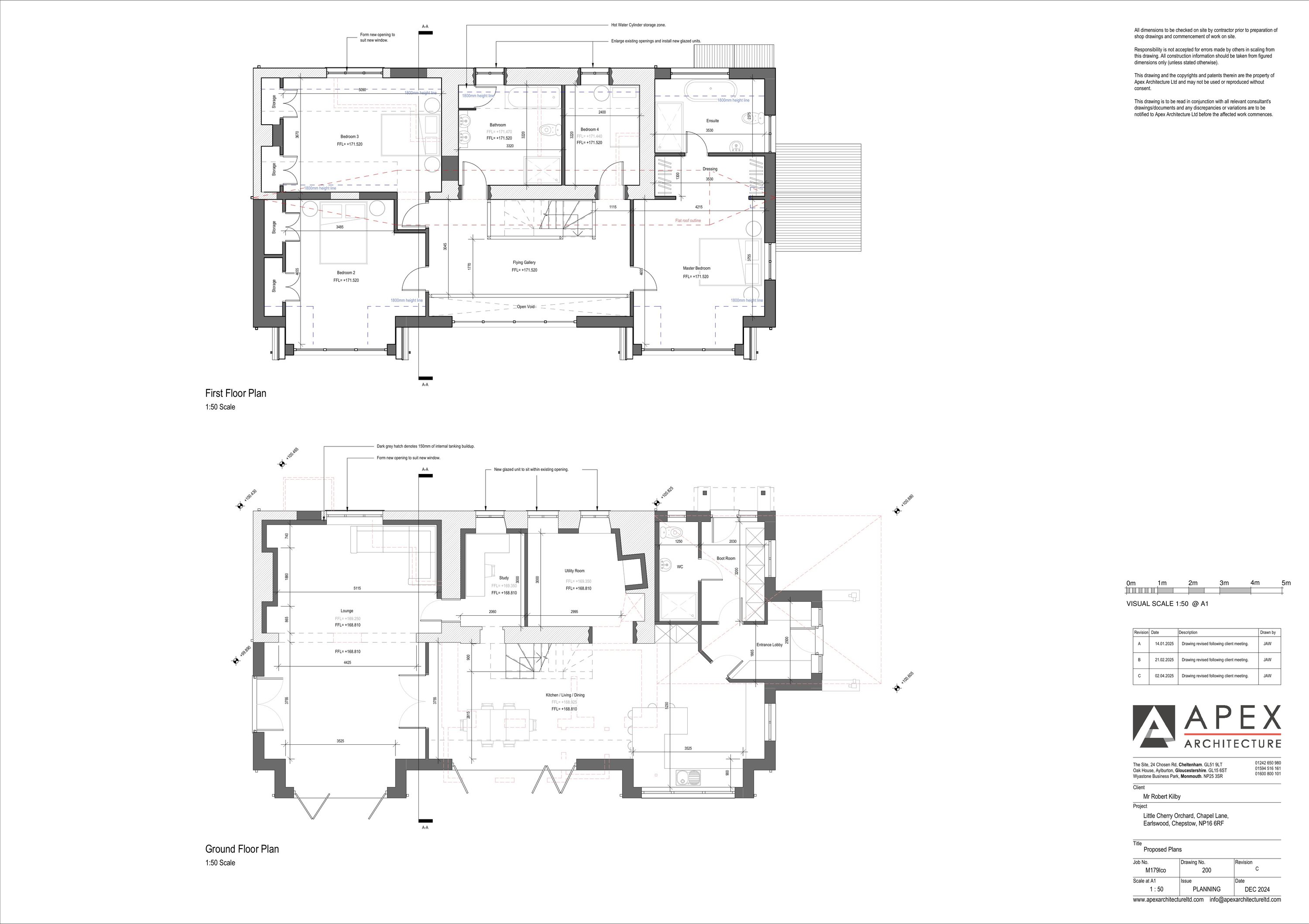
Proposed extension and renovation to a detached two storey dwelling with associated hard and soft landscaping.

Documents

100 - EXISTING FLOOR PLANS
Drawing
Not yet archived · Original link
101 - EXISTING ELEVATIONS
Drawing
Not yet archived · Original link
201 C - PROPOSED ELEVATIONS
Drawing
Not yet archived · Original link
APPLICATIONFORMREDACTED
Application Form
Not yet archived · Original link
CHERRY ORCHARD FARM ECO
Other
Not yet archived · Original link
COMMENTS - BIODIVERSITY
Consultee Comment
Not yet archived · Original link
EXISTING ELEVATIONS
Drawing
Not yet archived · Original link
KY LETTER TO TOWN COUNCIL
Correspondence
Not yet archived · Original link
MCC BIODIVERSITY UPDATED COMMENTS
Consultee Comment
Not yet archived · Original link
MCC HIGHWAYS
Consultee Comment
Not yet archived · Original link
MCC SUDS
Other
Not yet archived · Original link
NRW RESPONSE
Correspondence
Not yet archived · Original link
ONLINE COMMENT - 9:29 AM
Public Comment
Not yet archived · Original link
ONLINE COMMENT 11.08.25 22.03
Public Comment
Not yet archived · Original link
PLANNING STATEMENT - LITTLE CHERRY
Report
Not yet archived · Original link
PRELIMINARY ECOLOGICAL APPRAISAL
Report
Not yet archived · Original link
PRELIMINARY ECOLOGICAL APPRAISAL
Report
Not yet archived · Original link
PROPOSED ELEVATIONS
Drawing
Not yet archived · Original link
SHIRENEWTON CC RESPONSE
Correspondence
Not yet archived · Original link
SHIRENEWTON CC RESPONSE
Correspondence
Not yet archived · Original link

Have your say

Your comment matters. Councils must consider every representation that raises material planning considerations.

Write a comment