← Monmouthshire County Council

Status

Pending Consideration Listed building
Received
07 Jul 2025
New homes
3

Full proposal

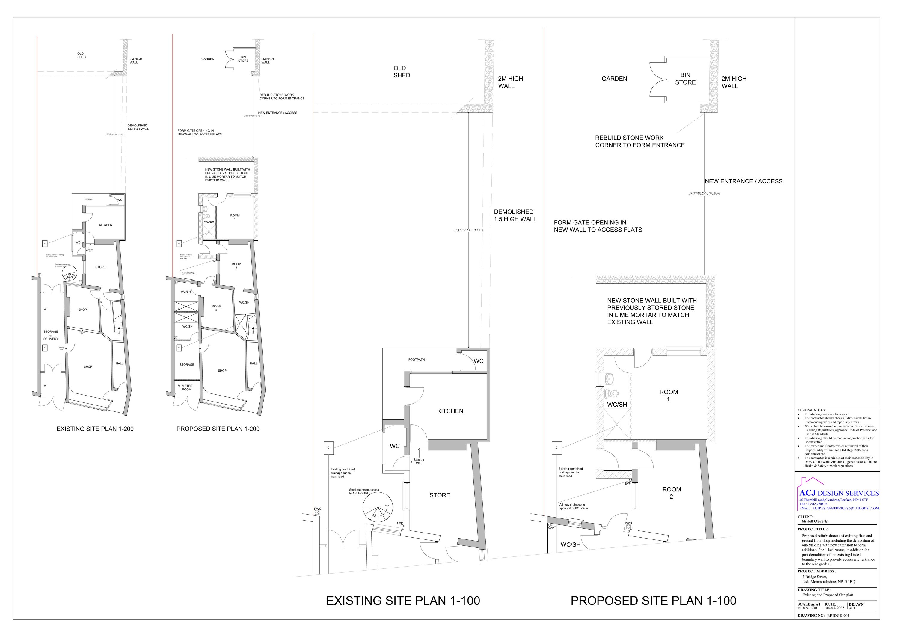
Proposed refurbishment of existing flats and ground floor shop with demolition of existing out-building with new extension to form additional 3nr 1 bed rooms, in addition the part demolition of existing listed boundary wall to form entrance to provide access to the rear garden.

Documents

_BLOCK PLAN PROPOSED
Drawing
Not yet archived · Original link
ACCESS STATEMENT
Report
Not yet archived · Original link
AMENTITY GROUP - ONLINE COMMENT 09:23
Consultee Comment
Not yet archived · Original link
APPLICATION FORM
Application Form
Not yet archived · Original link
BLOCK PLAN
Drawing
Not yet archived · Original link
BRICKWORK SPEC
Drawing
Not yet archived · Original link
COMMENTS - HBAP
Consultee Comment
Not yet archived · Original link
COMMENTS - NATIONAL AMENITY SOCIETY
Consultee Comment
Not yet archived · Original link
COMMENTS - WELSH WATER
Consultee Comment
Not yet archived · Original link
COVERING LETTER - AMENDED PLANS
Correspondence
Not yet archived · Original link
COVERING LETTER FROM AGENT - DRAINAGE
Correspondence
Not yet archived · Original link
Amended Document
Archived · Original link
FOUL TREATMENT REPORT
Report
Not yet archived · Original link
GLAMORGAN GWENT ARHAEOLOGY
Other
Not yet archived · Original link
HERITAGE IMPACT STATEMENT
Other
Not yet archived · Original link
HISTORIC BUILDINGS AND PLACES
Consultee Comment
Not yet archived · Original link
HOLDING OBJECTION - BIODIVERSITY
Consultee Comment
Not yet archived · Original link
OBJECTION - LOCAL FLOOD AUTHORITY AND SUDS
Consultee Comment
Not yet archived · Original link
OBJECTION COMMENT 16:51
Objection Comment
Not yet archived · Original link
ONLINE COMMENT - 1:21 PM
Public Comment
Not yet archived · Original link
ONLINE COMMENT - 8:32 PM
Public Comment
Not yet archived · Original link
ONLINE COMMENT 17:22
Public Comment
Not yet archived · Original link
PHOTOGRAPH - FRONTAGE
Photo
Not yet archived · Original link
PHOTOGRAPH - SHOPS
Photo
Not yet archived · Original link
PHOTOGRAPH - SHOPS 01
Photo
Not yet archived · Original link
PHOTOGRAPH - WALLS
Photo
Not yet archived · Original link
TOWN COUNCIL
Consultee Comment
Not yet archived · Original link

Have your say

Your comment matters. Councils must consider every representation that raises material planning considerations.

Write a comment