← Monmouthshire County Council

Status

Pending Consideration Change of use
Received
01 Aug 2025
New homes
1

Full proposal

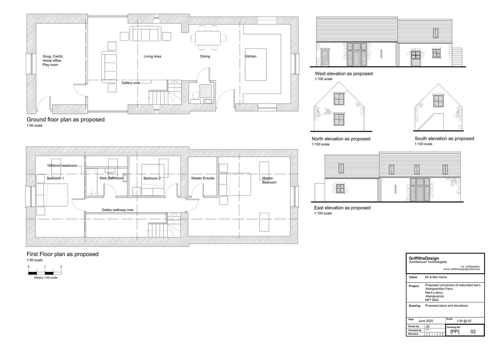
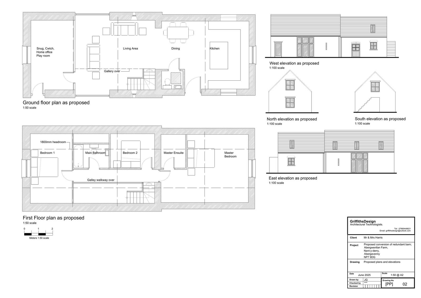
Proposed conversion of barn to dwelling, uilising existing entrance, planting of wildflower meadow, native hedgerow & associated works.

Documents

ABERGWENLLAN HERITAGE STATEMENT
Other
Not yet archived · Original link
Amended Plans
Amended Plans
Not yet archived · Original link
APPLICATIONFORMREDACTED
Application Form
Not yet archived · Original link
COMMENTS - HENEB
Consultee Comment
Not yet archived · Original link
COMMENTS - LOCAL FLOOD AUTHORITY AND SUDS
Consultee Comment
Not yet archived · Original link
CONCERNS - NRW
Consultee Comment
Not yet archived · Original link
CONT. CONCERNS - NRW
Consultee Comment
Not yet archived · Original link
EXISTING AND PROPOSED SITE BLOCK PLAN
Drawing
Not yet archived · Original link
EXISTING PLANS AND ELEVATIONS
Amended Document
Not yet archived · Original link
EXISTING PLANS AND ELEVATIONS
Drawing
Not yet archived · Original link
FOUL DRAINAGE LOCATION
Drawing
Not yet archived · Original link
FOUL WATER REPORT
Other
Not yet archived · Original link
GI STATEMENT MINOR ABERGWENLLAN FARM ABERGAVENNY
Other
Not yet archived · Original link
GOETRE FAWR COMMUNITY COUNCIL
Consultee Comment
Not yet archived · Original link
Amended Document
Archived · Original link
Drawing
Archived · Original link
SUPPORTING STATEMENT - ABERGWENLLAN FARM
Other
Not yet archived · Original link
SUPPORTING STATEMENT PHOSPHATE
Other
Not yet archived · Original link

Have your say

Your comment matters. Councils must consider every representation that raises material planning considerations.

Write a comment