← Monmouthshire County Council

Status

Pending Consideration Change of use
Received
01 Aug 2025
New homes
1

Full proposal

Proposed conversion of Barn to Dwelling, uilising existing entrance, planting of wildflower meadow, native hedgerow & associated works.

Documents

ABERGWENLLAN HERITAGE STATEMENT
Other
Not yet archived · Original link
Amended Document
Amended Document
Not yet archived · Original link
APPLICATIONFORMREDACTED
Application Form
Not yet archived · Original link
BAT REPORT
Other
Not yet archived · Original link
COMMENTS - HENEB
Consultee Comment
Not yet archived · Original link
COMMENTS - NATIONAL AMENITY SOCIETY?S
Consultee Comment
Not yet archived · Original link
COMMUNITY COUNCIL
Consultee Comment
Not yet archived · Original link
CONCERNS - NRW
Consultee Comment
Not yet archived · Original link
CONCERNS - NRW
Consultee Comment
Not yet archived · Original link
ENVIRONMENTAL HEALTH
Consultee Comment
Not yet archived · Original link
EXISTING AND PROPOSED SITE BLOCK PLAN
Drawing
Not yet archived · Original link
EXISTING AND PROPOSEDF SITE BLOCK PLAN
Drawing
Not yet archived · Original link
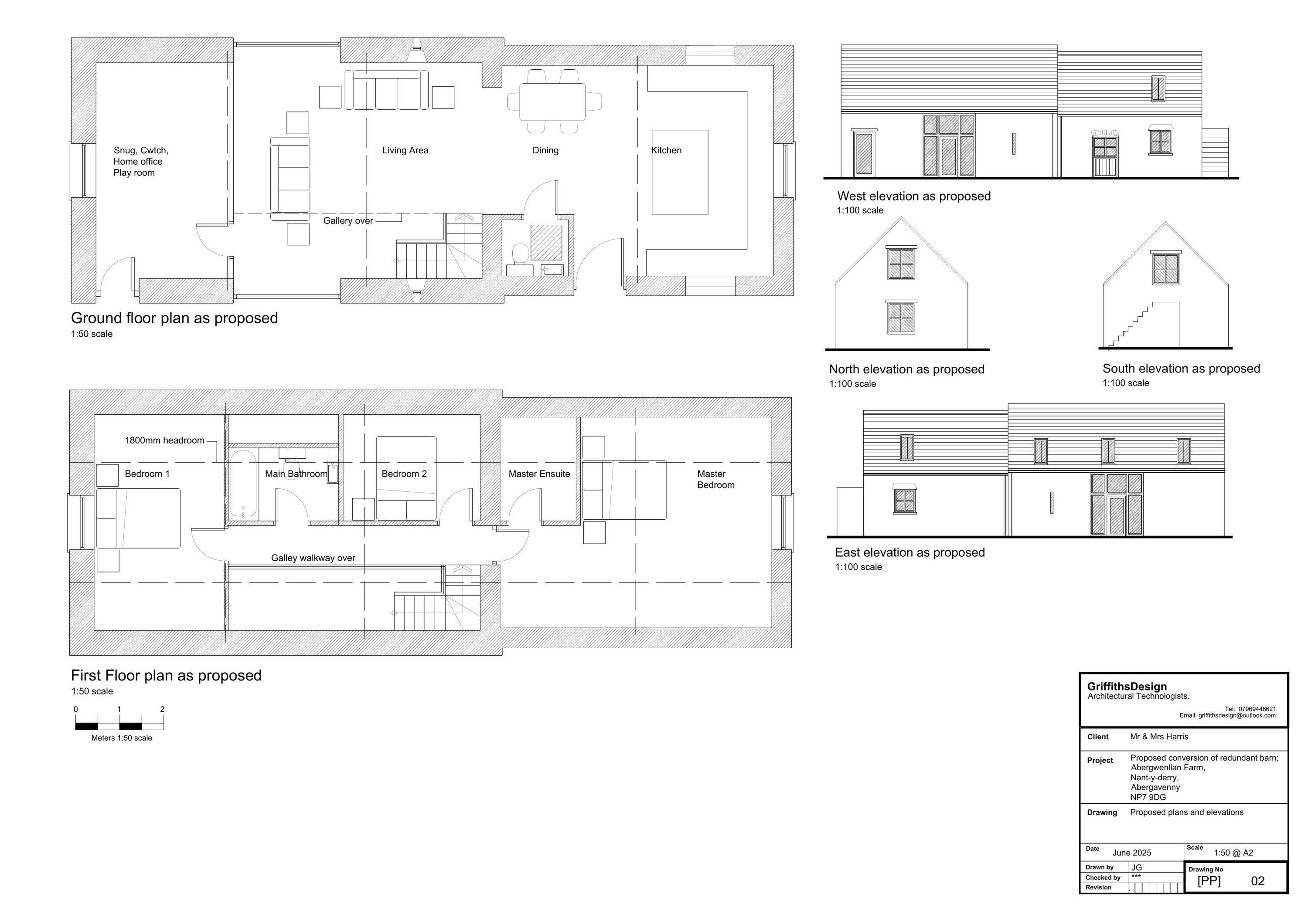
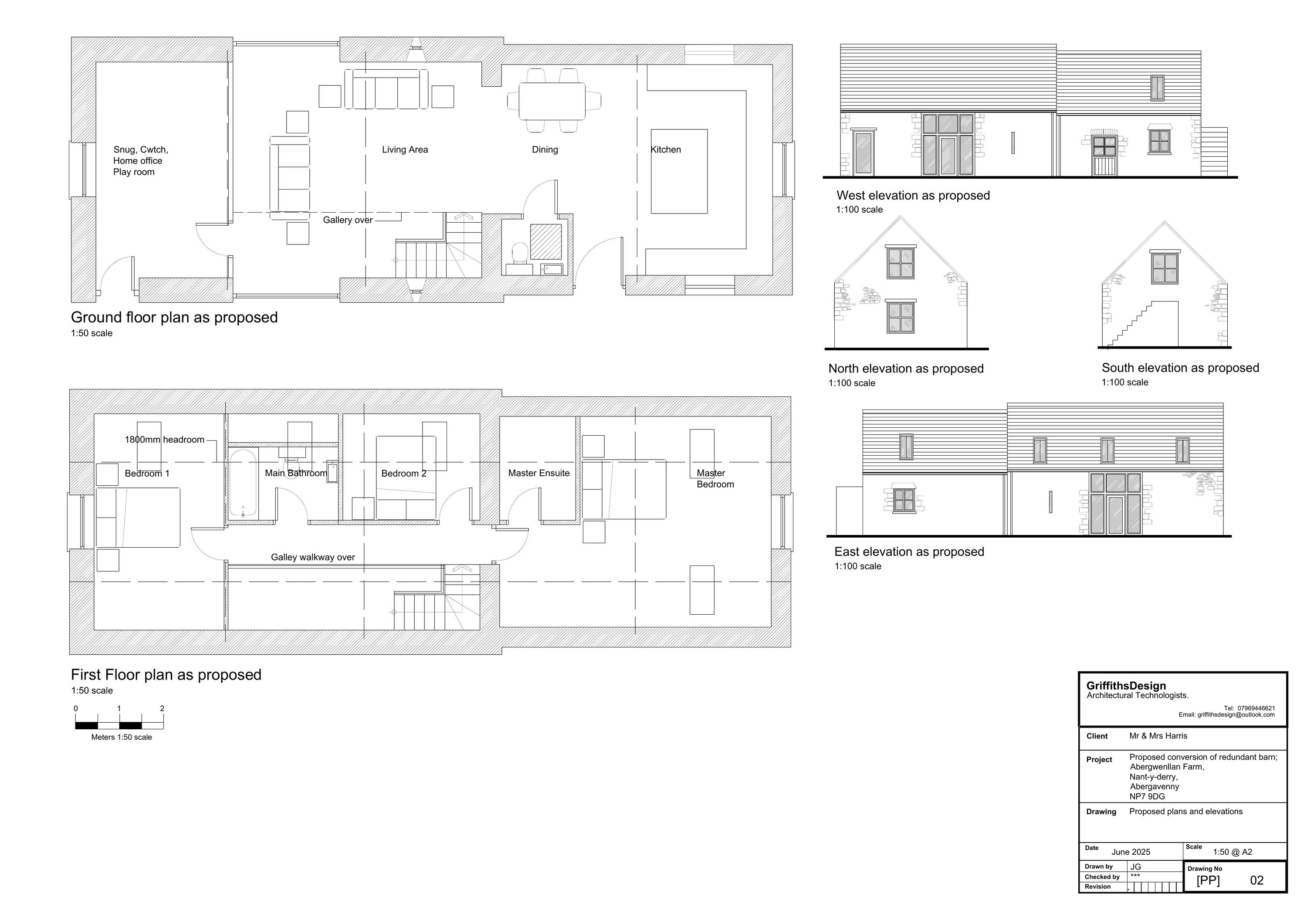
EXISTING PLANS AND ELEVATIONS
Drawing
Not yet archived · Original link
EXISTING PLANS AND ELEVATIONS
Drawing
Not yet archived · Original link
EXISTING PLANS AND ELEVATIONS
Amended Document
Not yet archived · Original link
GI STATEMENT MINOR ABERGWENLLAN FARM ABERGAVENNY
Other
Not yet archived · Original link
GOETRE FAWR COMMUNITY COUNCIL
Consultee Comment
Not yet archived · Original link
HERITAGE STATEMENT
Other
Not yet archived · Original link
HISTORIC BUILDINGS AND PLACES
Consultee Comment
Not yet archived · Original link
ONLINE COMMENT 15:32
Public Comment
Not yet archived · Original link
PHOTO 1
Photo
Not yet archived · Original link
Amended Document
Archived · Original link
Drawing
Archived · Original link
Drawing
Archived · Original link
STRUCTURAL CONDITION SURVEY
Other
Not yet archived · Original link
SUPPORTING STATEMENT
Other
Not yet archived · Original link
SUPPORTING STATEMENT - ABERGWENLLAN FARM
Other
Not yet archived · Original link
SUPPORTING STATEMENT PHOSPHATE
Other
Not yet archived · Original link
SUPPORTING STATEMENT PHOSPHATE
Other
Not yet archived · Original link

Have your say

Your comment matters. Councils must consider every representation that raises material planning considerations.

Write a comment