← Monmouthshire County Council

Status

Pending Consideration House extension
Received
21 Jan 2026
New homes
0

Full proposal

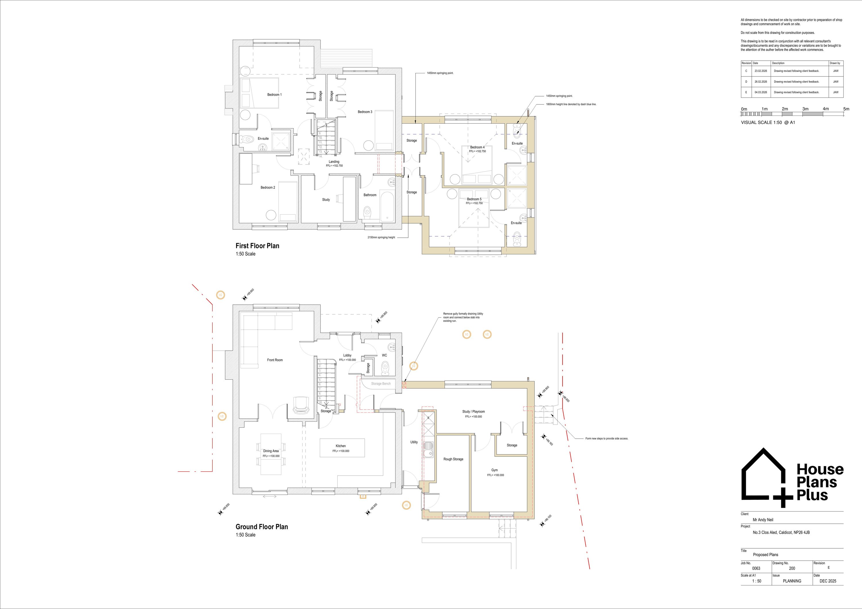
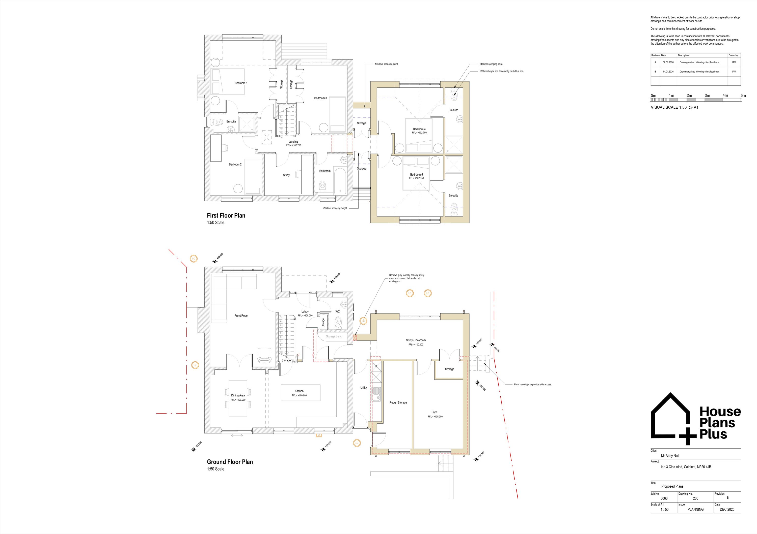
The demolition of a single storey garage building and erection of a two storey side extension in its place

Documents

Drawing
Archived · Original link
Drawing
Archived · Original link
OS Extract
Archived · Original link
Cancelled Drawing
Archived · Original link
Amended Plans
Archived · Original link
Amended Plans
Archived · Original link
Cancelled Drawing
Archived · Original link
Amended Plans
Archived · Original link
Cancelled Drawing
Archived · Original link

Have your say

Your comment matters. Councils must consider every representation that raises material planning considerations.

Write a comment