← Monmouthshire County Council

Status

Pending Consideration House extension
Received
Last month
New homes
0

Full proposal

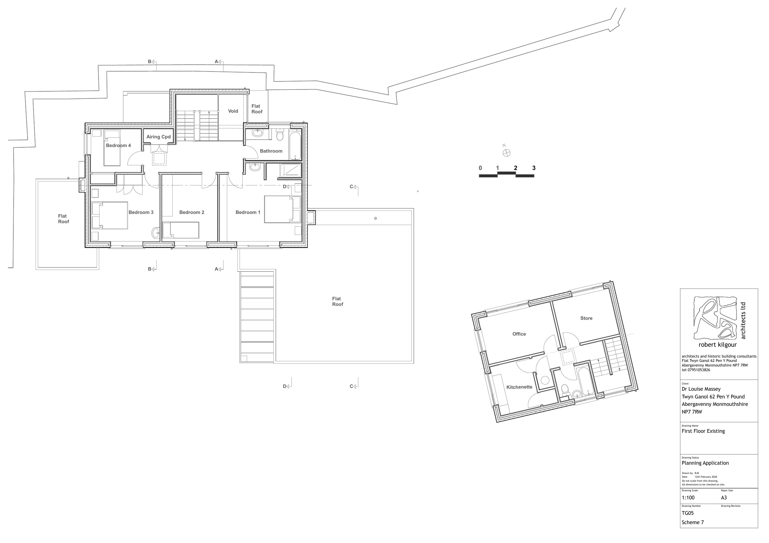
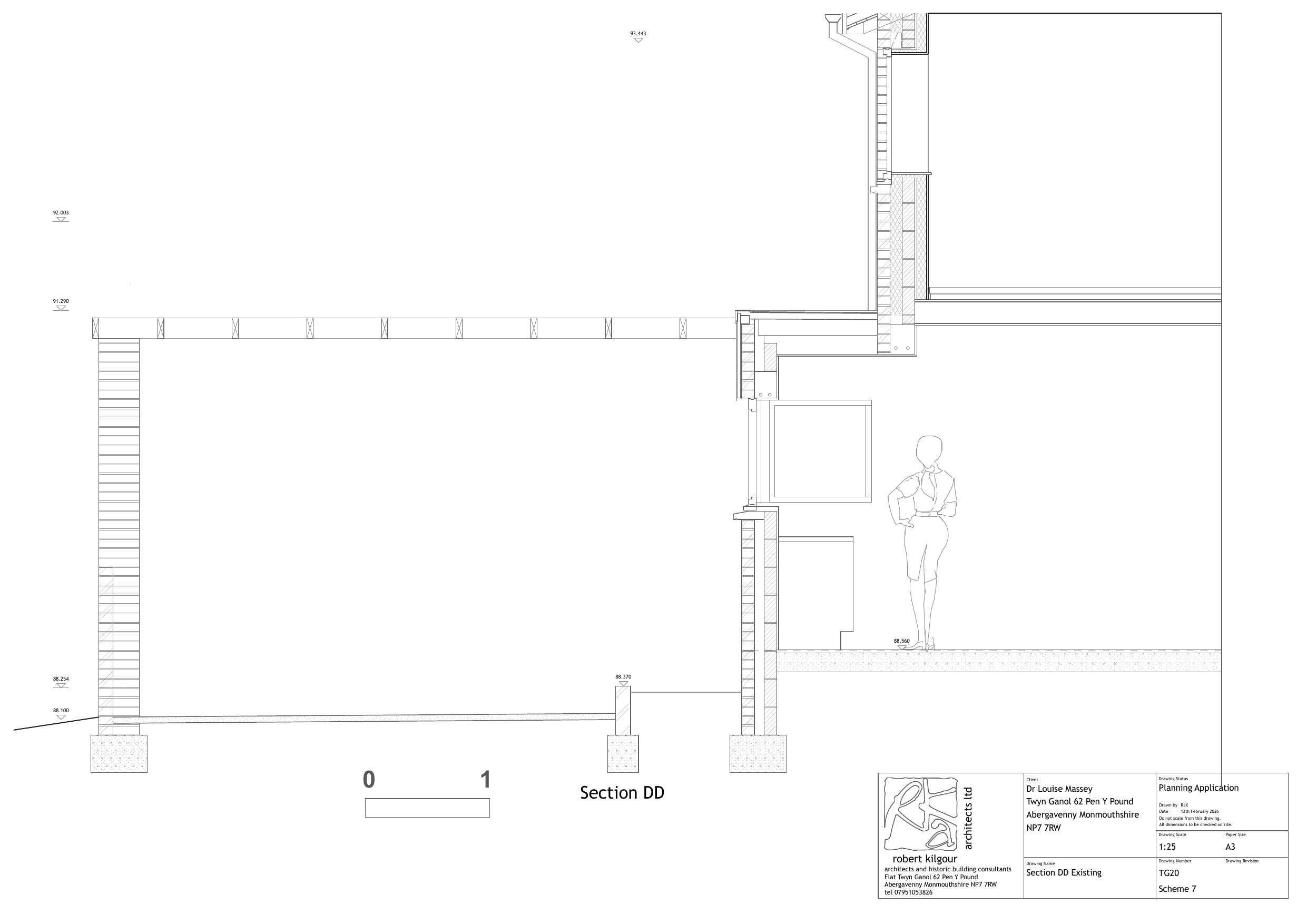
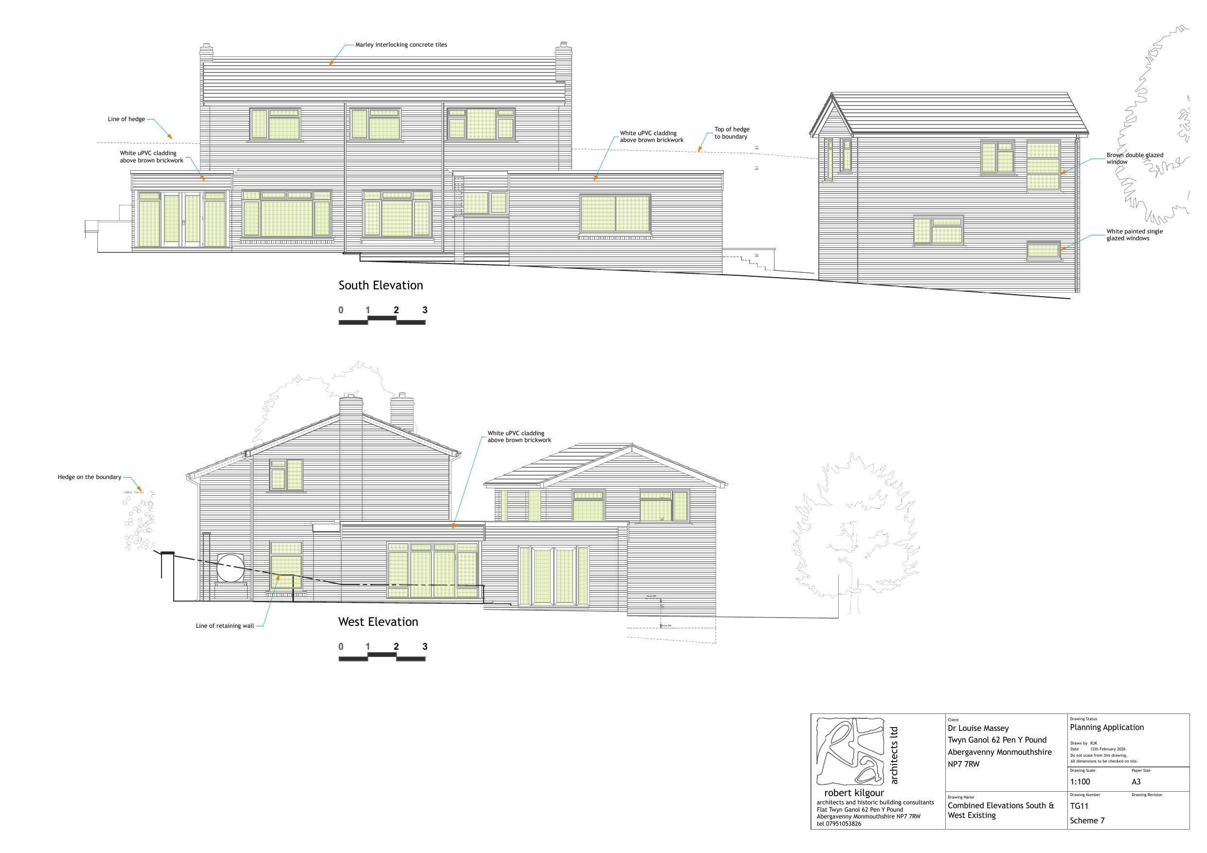
The existing property is a four bedroom house with an annex comprising a one bed flat over a double garage. There is a large single storey music room to the south of the house with a flat roof. The existing kitchen is poorly planned. The project comprises the conversion of the music room into a new kitchen dining space and the provision of a new family shower room on the first floor. The alterations to the music room, constructed as an extension in about 1980, include the removal and partial demolition of three walls, west, south, and east, as shown on the proposed ground floor plan, down to existing floor slab level. The construction of new walls can be insulated to modern EnerPHit standards. This is the Passivhaus retrofit standard. The western wall would be located 800mm further west than existing occupying space currently defined by a pergola. This will be roofed over. The existing flat roof will be replaced with a single layer membrane flat roof with a central roof light clad in copper standing seam material with a pitch that matches the main concrete tiled roof. The roof light will be provided with a north facing roof light. A new back door facing north will be formed where there is a window in the utility room and the existing back door and steep steps will be removed. On the north side of the house the front door will be provided with a new external entrance lobby with flat roof and entrance canopy linking this to the parking area. The retaining wall to the north will be reformed to make a larger paved area in front of the entrance area. The oil tank is planned for removal allowing for a garden store at ground floor level with a shower room at first floor level. The north elevation additions and the wall to the staircase will be clad with timber vertical cladding. The floor of the music room space is currently 280mm lower than the rest of the property. This will be made level with the rest of the house and the paved area immediately to t

Documents

Application Form
Archived · Original link
Consultee Comment
Archived · Original link
Drawing
Archived · Original link
Cancelled Drawing
Archived · Original link
Cancelled Drawing
Archived · Original link
BackGround Papers
Archived · Original link
OS Extract
Archived · Original link
Drawing
Archived · Original link
Drawing
Archived · Original link
Drawing
Archived · Original link
Drawing
Archived · Original link
Drawing
Archived · Original link
Drawing
Archived · Original link
Drawing
Archived · Original link
Drawing
Archived · Original link
Drawing
Archived · Original link
Drawing
Archived · Original link
Drawing
Archived · Original link

Have your say

Your comment matters. Councils must consider every representation that raises material planning considerations.

Write a comment