← Monmouthshire County Council

Status

Pending Consideration House extension
Received
Last month
New homes
0

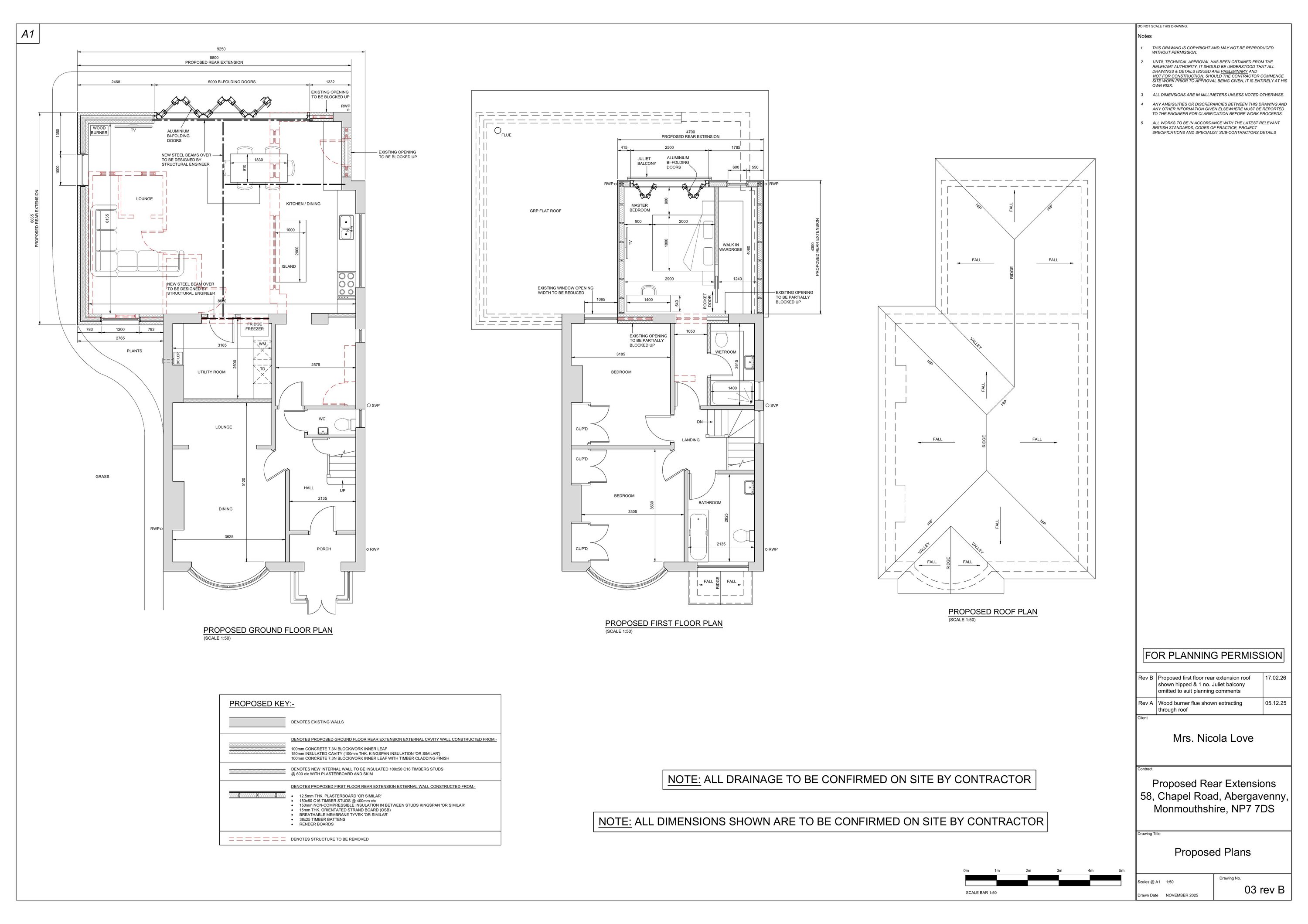
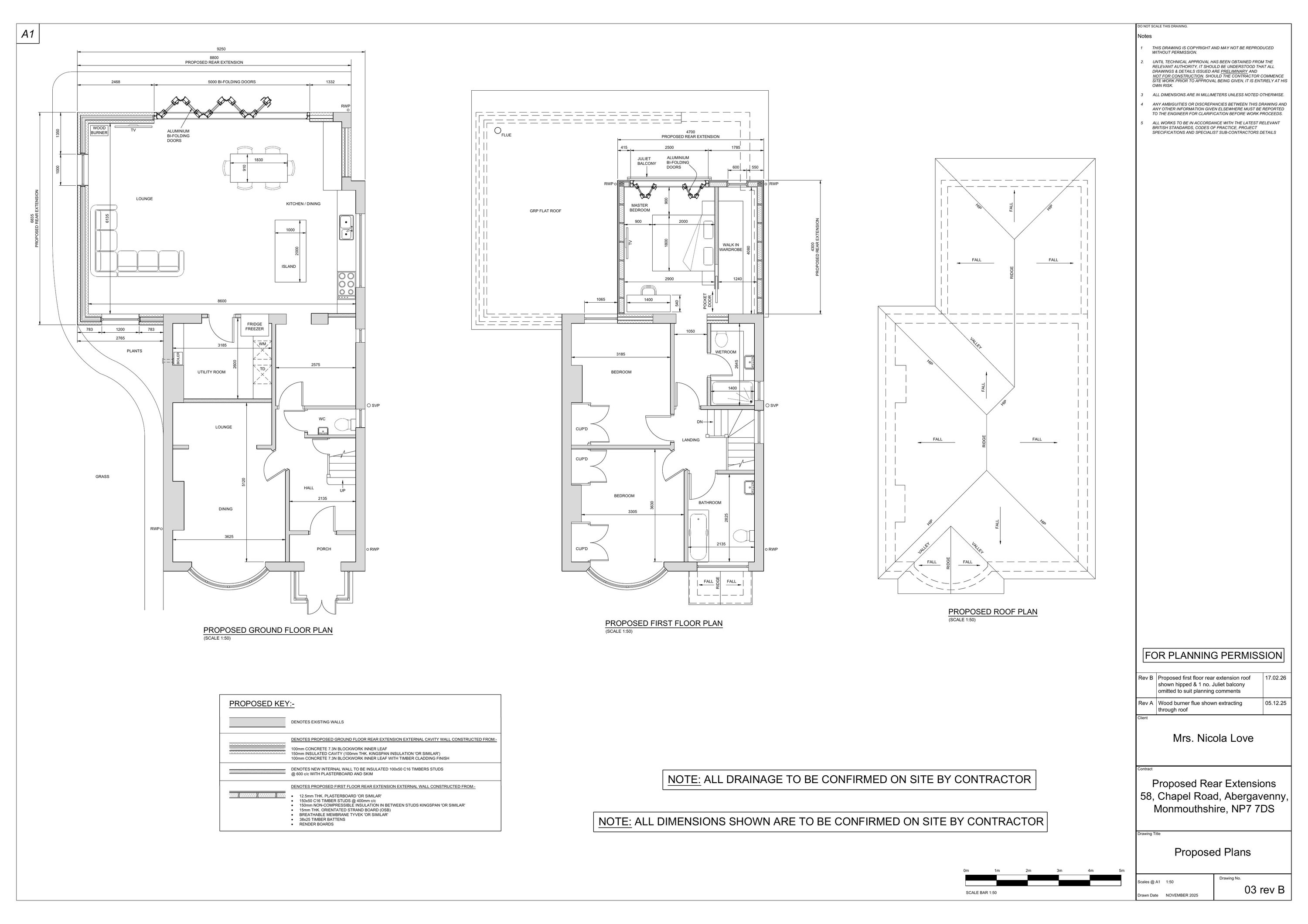
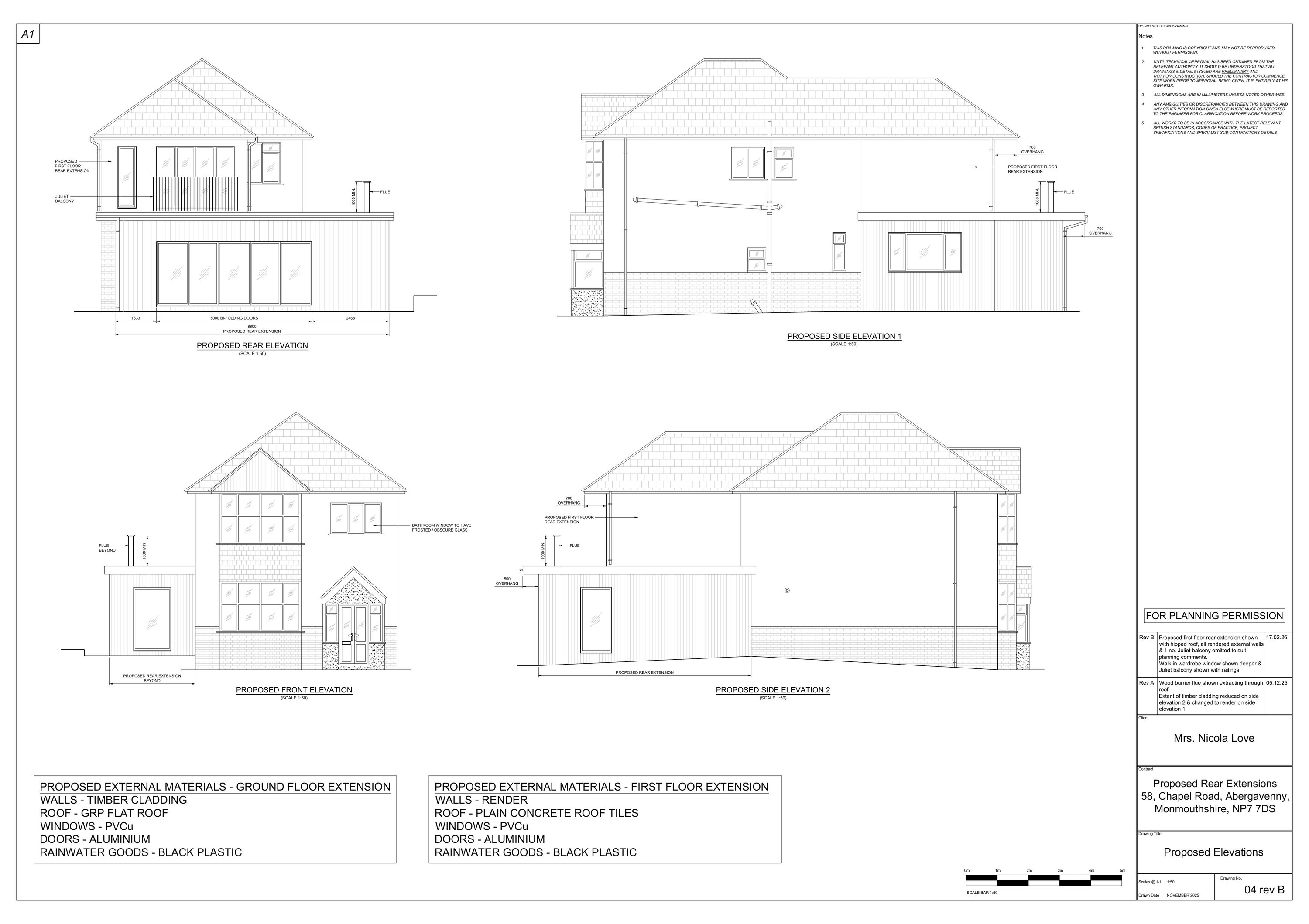
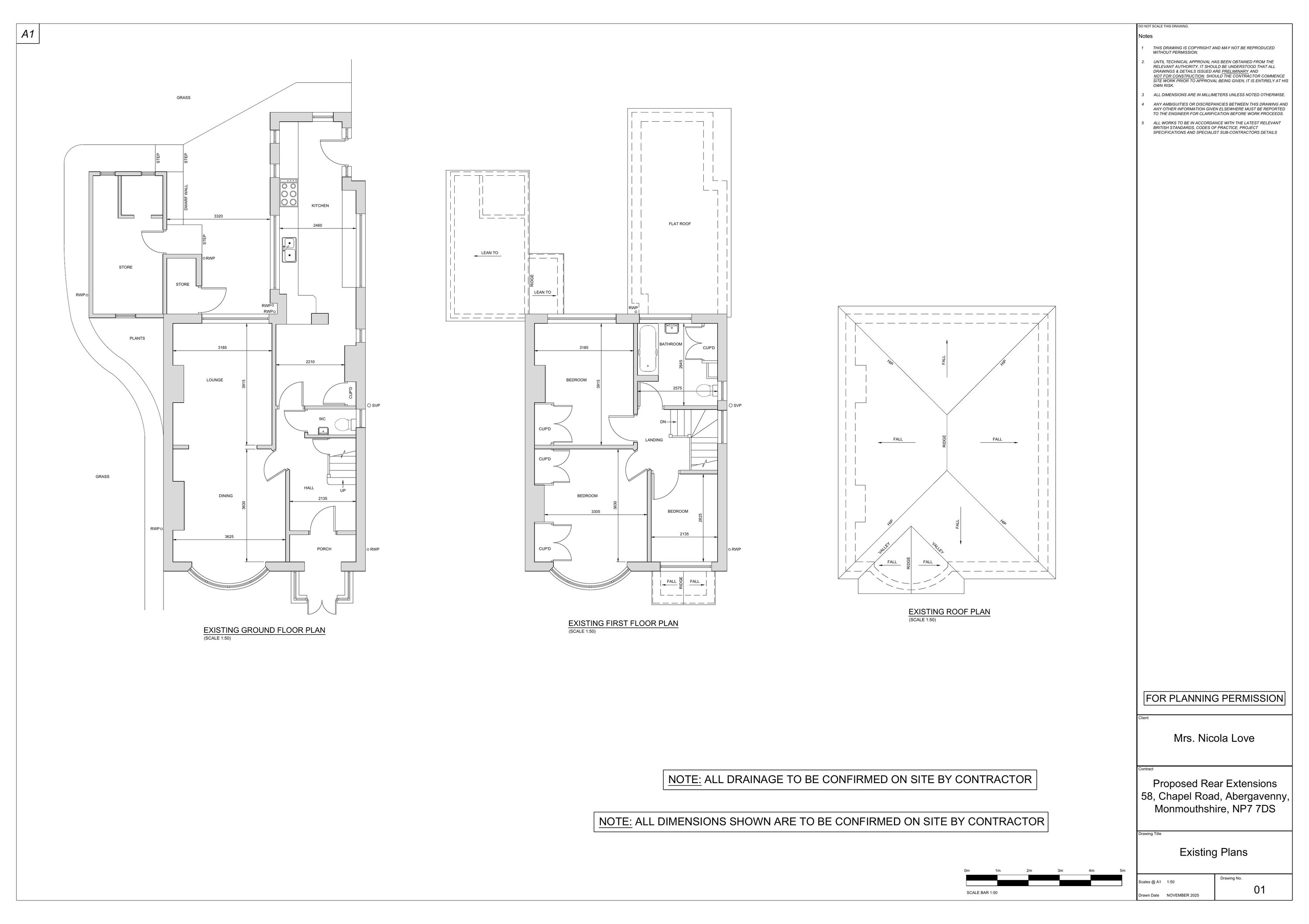
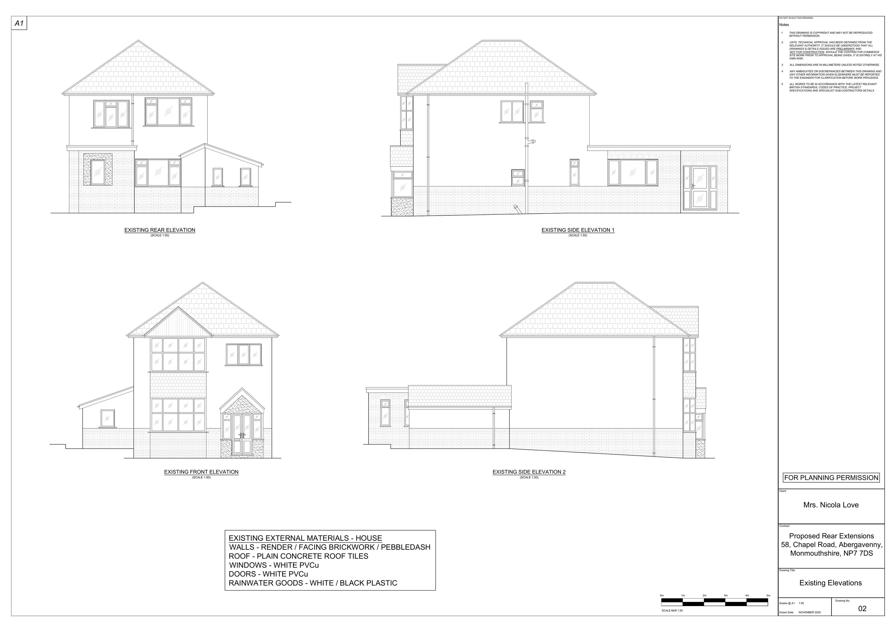
Full proposal

Proposed single storey rear extension (including part demolition of existing single storey rear extensions) and first floor rear extension with Juliet balcony.

Documents

Application Form
Archived · Original link
Drawing
Archived · Original link
Consultee Comment
Archived · Original link
Drawing
Archived · Original link
Drawing
Archived · Original link
OS Extract
Archived · Original link
Public Comment
Archived · Original link
Drawing
Archived · Original link
Drawing
Archived · Original link
Photo
Archived · Original link
Consultee Comment
Archived · Original link

Have your say

Your comment matters. Councils must consider every representation that raises material planning considerations.

Write a comment