← Monmouthshire County Council
DM/2026/00211
Monmouthshire County Council
Status
Pending Consideration
House extension
Received
Last month
New homes
0
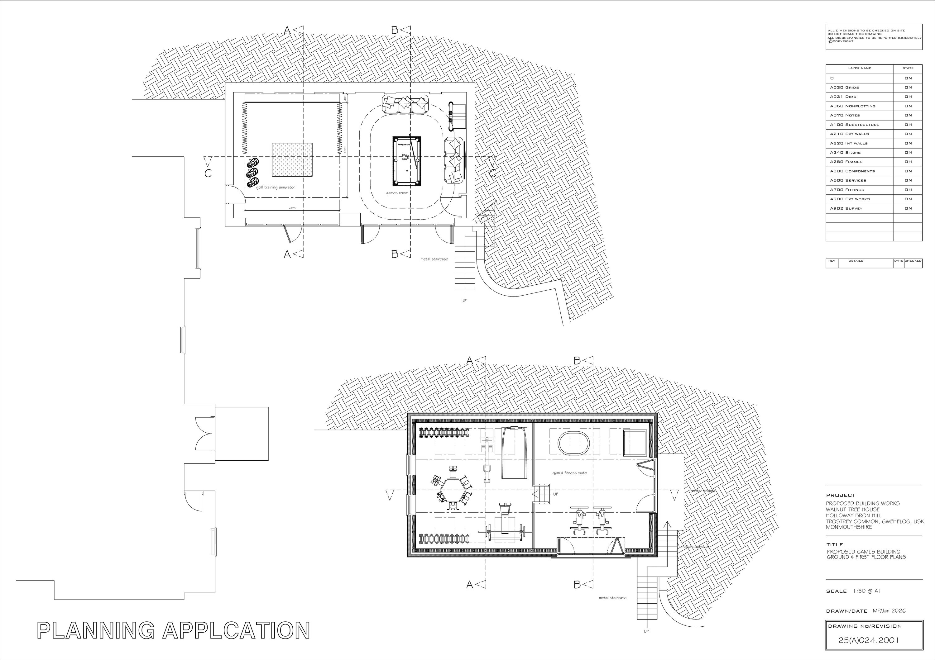
Full proposal
Removal of existing roof structure and construction of first floor extension with new roof structure.
Documents
Have your say
Your comment matters. Councils must consider every representation that raises material planning considerations.