← Monmouthshire County Council
DM/2026/00254
Monmouthshire County Council
Status
Pending Consideration
New housing
Received
Last month
New homes
1
Full proposal
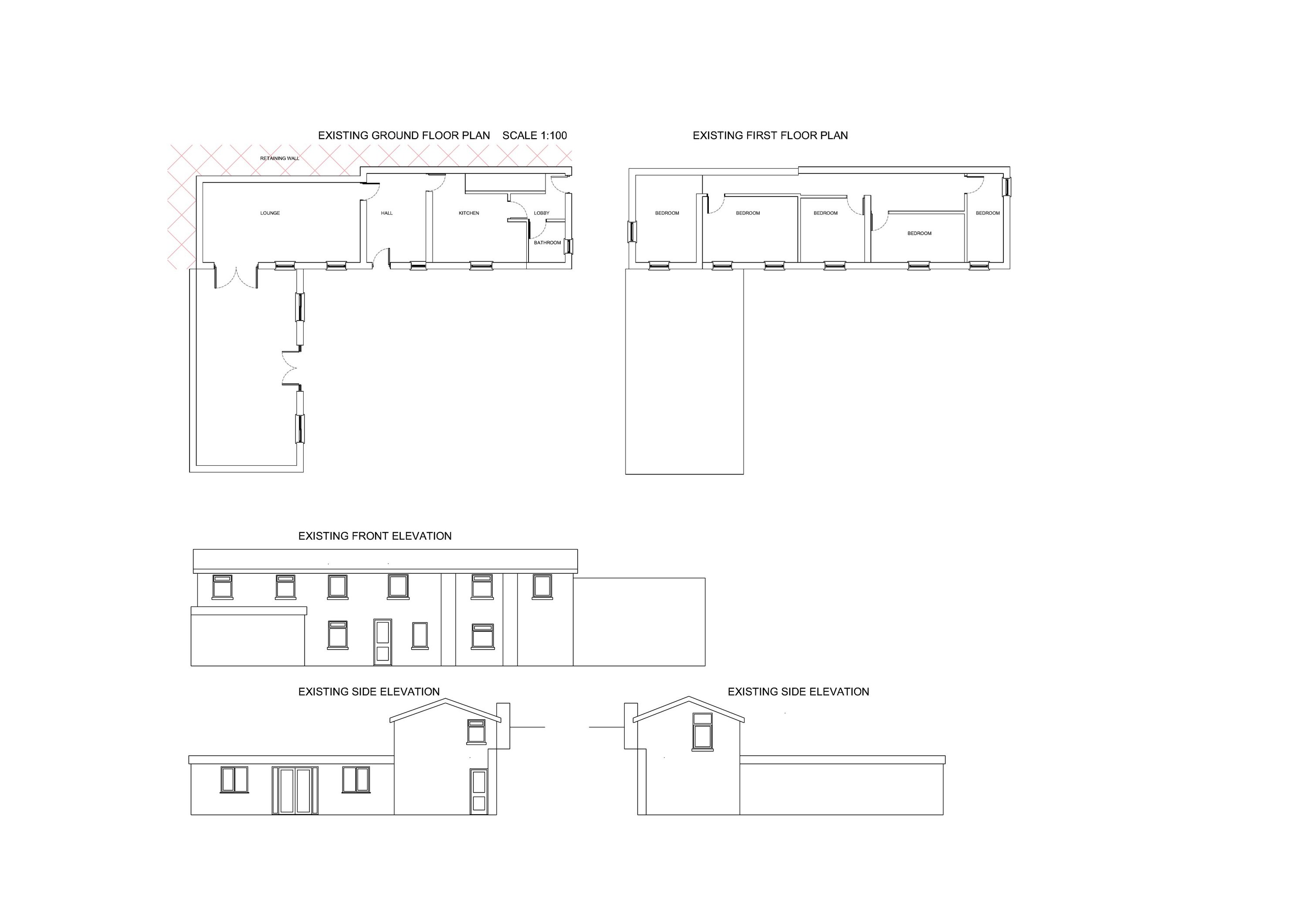
Proposed demolition of a detached dwelling and construction of a new detached 4 Bedroom dwelling and attached garage.
Documents
Have your say
Your comment matters. Councils must consider every representation that raises material planning considerations.