← Monmouthshire County Council

Status

Pending Consideration House extension
Received
Last month
New homes
0

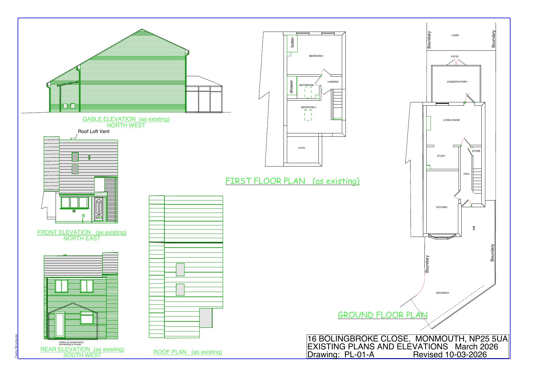
Full proposal

Proposed dormer window extension at first floor level on East elevation and small window to toilet at ground level on North elevation

Documents

Application Form
Archived · Original link
Drawing
Archived · Original link
Consultee Comment
Archived · Original link
Cancelled Drawing
Archived · Original link
OS Extract
Archived · Original link
Cancelled Drawing
Archived · Original link

Have your say

Your comment matters. Councils must consider every representation that raises material planning considerations.

Write a comment