← North East Lincolnshire Council

Status

Pending Consideration House extension
Received
Not recorded
New homes
0

Full proposal

Erect first floor extension to rear to create three self-contained flats to include installation of external staircases and creation of external cycle/bin store areas, new boundary treatments, alterations to existing vehicle access point with various associated works

Documents

20 HOLLINGSWORTH AVENUE
Neighbour Comment - No Details
Not yet archived · Original link
24 HOLLINGSWORTH AVENUE
Neighbour Comment - No Details
Not yet archived · Original link
28 HOLLINGSWORTH AVENUE
Neighbour Comment - No Details
Not yet archived · Original link
3D ISOMETRIC PERSPECTIVES
Plans - General
Not yet archived · Original link
40 HOLLINGSWORTH AVENUE
Neighbour Comment - No Details
Not yet archived · Original link
40 HOLLINGSWORTH AVENUE
Neighbour Comment - No Details
Not yet archived · Original link
42A STALLINGBOROUGH ROAD
Neighbour Comment - No Details
Not yet archived · Original link
APPLICATION FORM - NO DETAILS
Application Form - No Details
Not yet archived · Original link
BIODIVERSITY NET GAIN STATEMENT
Supporting Documents
Not yet archived · Original link
BIODIVERSITY NET GAIN STATEMENT
Biodiversity Net Gain
Not yet archived · Original link
BOUNDARY TREATMENTS & CYCLE STORE SPECIFICATION
Supporting Documents
Not yet archived · Original link
CYCLE STORE DETAILS
Supporting Documents
Not yet archived · Original link
DESIGN & ACCESS STATEMENT
Design & Access Statement
Not yet archived · Original link
DESIGN AND ACCESS STATMENT
Supporting Documents
Not yet archived · Original link
DRAINAGE COMMENT
Consultee Comment - No Details
Not yet archived · Original link
ENVIRONMENT AGENCY COMMENT
Consultee Comment - No Details
Not yet archived · Original link
ENVIRONMENTAL ENFORCEMENT OFFICER COMMENT
Consultee Comment - No Details
Not yet archived · Original link
ENVIRONMENTAL PROTECTION TEAM COMMENTS
Consultee Comment - No Details
Not yet archived · Original link
Superseded Plans
Archived · Original link
Superseded Plans
Archived · Original link
EXISTING FLOOR PLANS, ROOF PLAN AND ELEVATIONS
Plans & Elevations- Existing
Not yet archived · Original link
HERITAGE OFFICER COMMENT
Consultee Comment - No Details
Not yet archived · Original link
HIGHWAYS COMMENT
Consultee Comment - No Details
Not yet archived · Original link
IMMINGHAM TOWN COUNCIL
Consultee Comment - No Details
Not yet archived · Original link
IMMINGHAM TOWN COUNCIL COMMENT
Consultee Comment - No Details
Not yet archived · Original link
OTHER RELEVANT INFORMATION INCLUDED IN BIODIVERSITY STATEMENT
Supporting Documents
Not yet archived · Original link
PLANNING STATEMENT COVERED IN DESIGN AND ACCESS STATMENT
Supporting Documents
Not yet archived · Original link
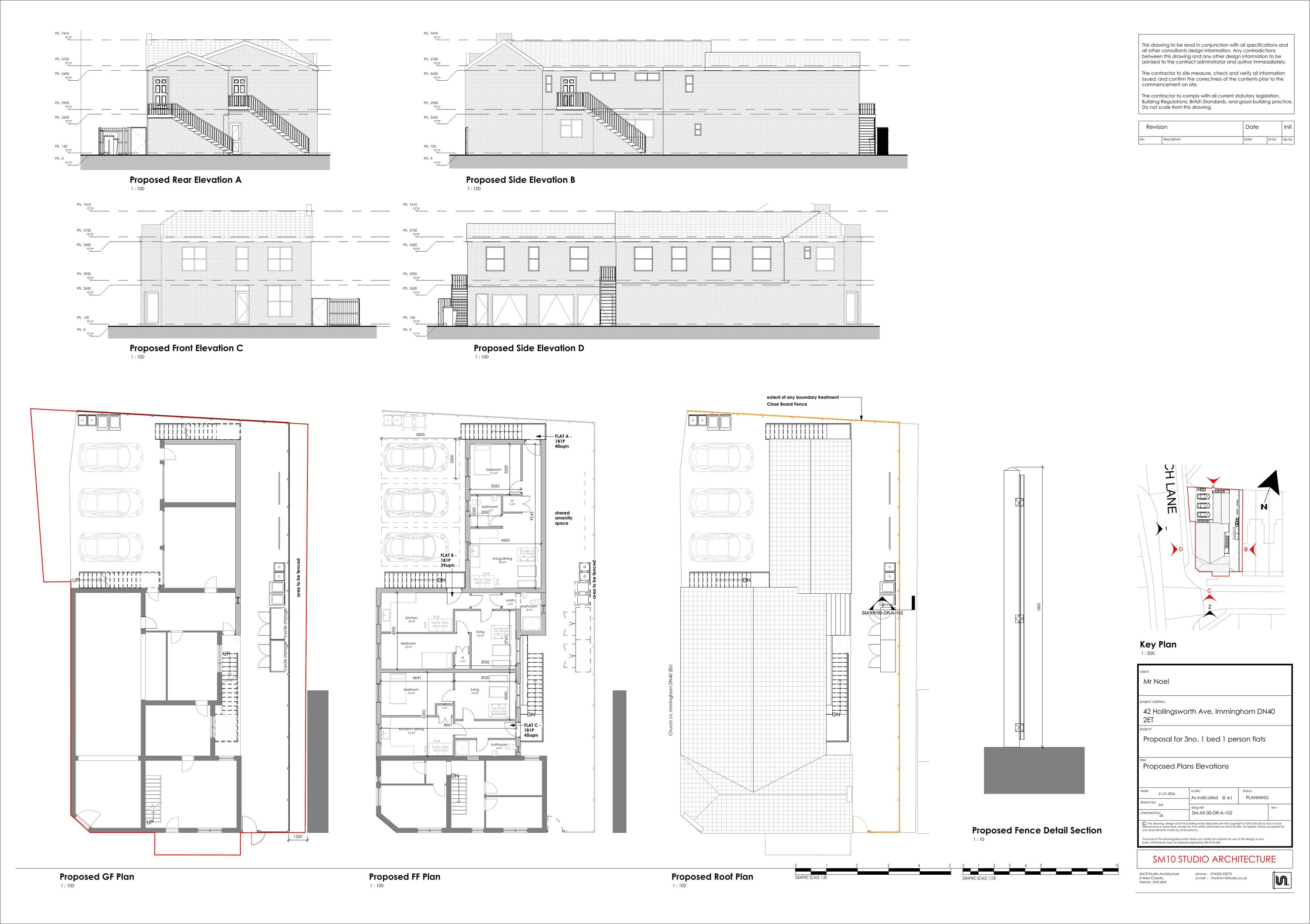
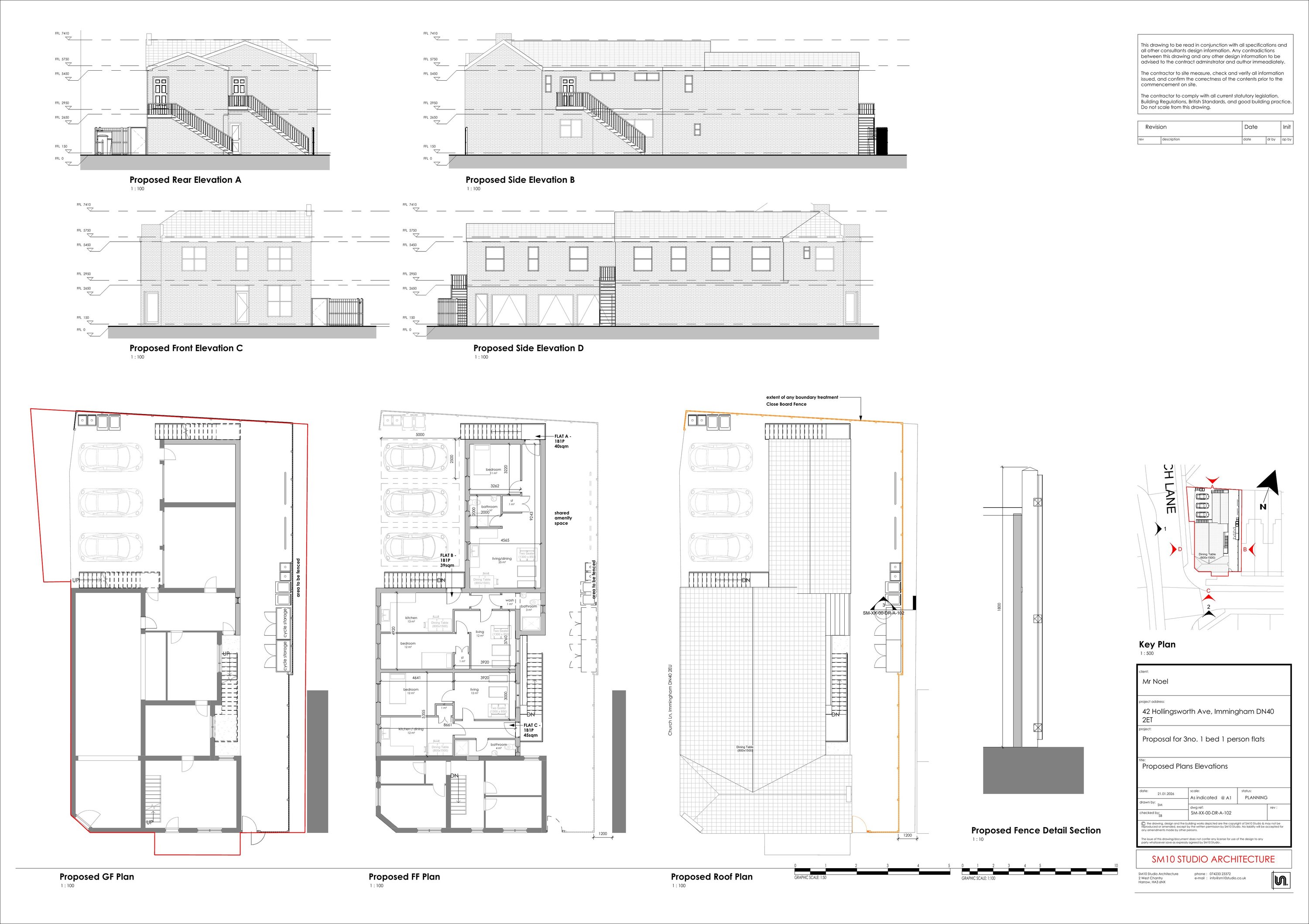
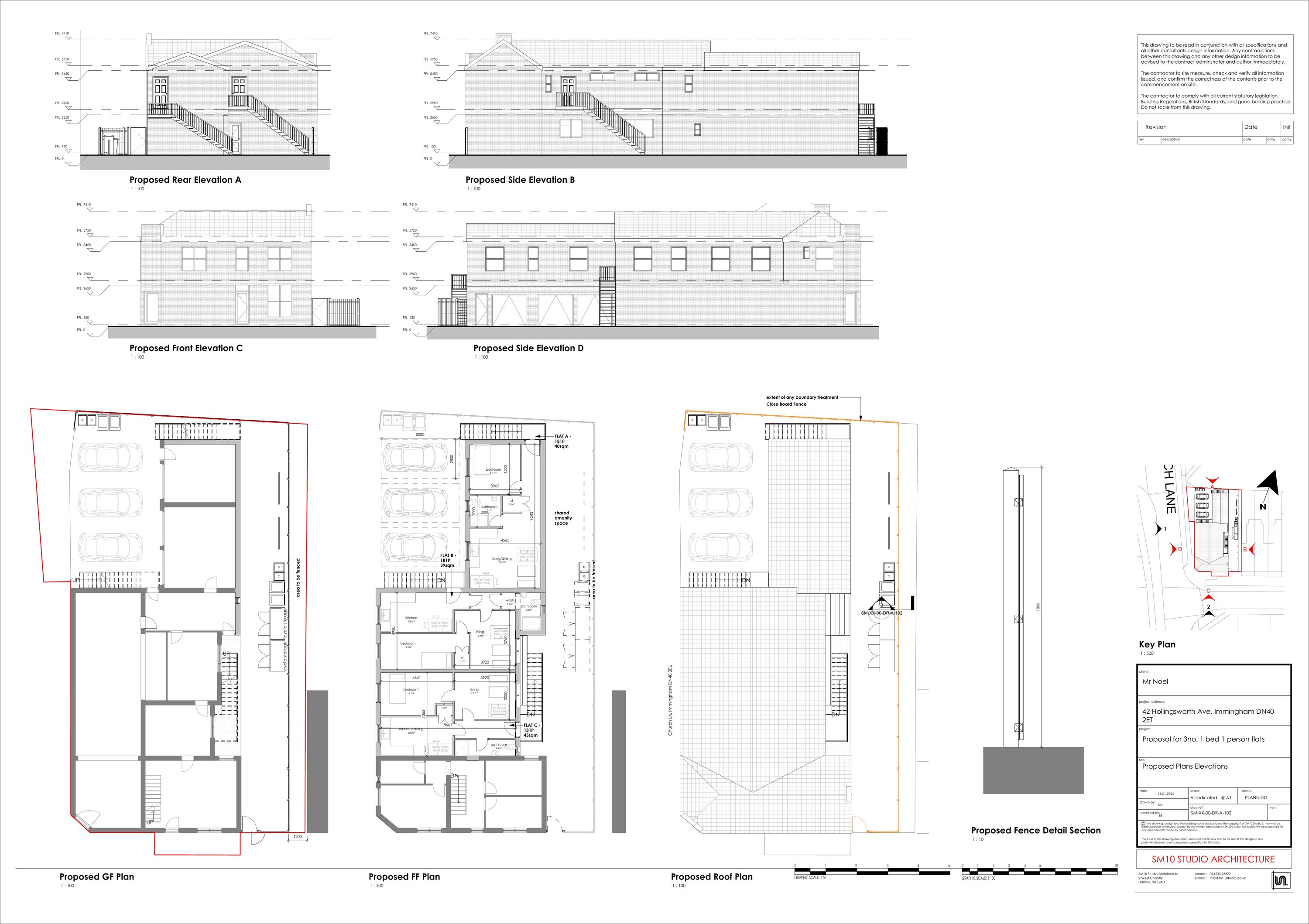
PROPOSED FLOOR PLANS, ELEVATIONS, ROOF PLAN & FENCING DETAIL
Superseded Plans
Not yet archived · Original link
Superseded Plans
Archived · Original link
Amended Plan
Archived · Original link
Superseded Plans
Archived · Original link
PROPOSED STREET ELEVATIONS
Amended Plan
Not yet archived · Original link
PROPOSED STREET SCENE ELEVATIONS
Superseded Plans
Not yet archived · Original link
Site Location Plan
Archived · Original link
SUNLIGHT ANALYSIS EXISTING
Plans - General
Not yet archived · Original link
SUNLIGHT ANALYSIS PROPOSED
Amended Plan
Not yet archived · Original link
SUNLIGHT ANALYSIS PROPOSED
Superseded Plans
Not yet archived · Original link
TARN HOUSE FARM, BOG LANE
Neighbour Comment - No Details
Not yet archived · Original link
WASTE TEAM MANAGER
Consultee Comment - No Details
Not yet archived · Original link

Have your say

Your comment matters. Councils must consider every representation that raises material planning considerations.

Write a comment