← All councils

Recent applications

The most recent records we hold for this council (up to 200).

Plan thumbnail

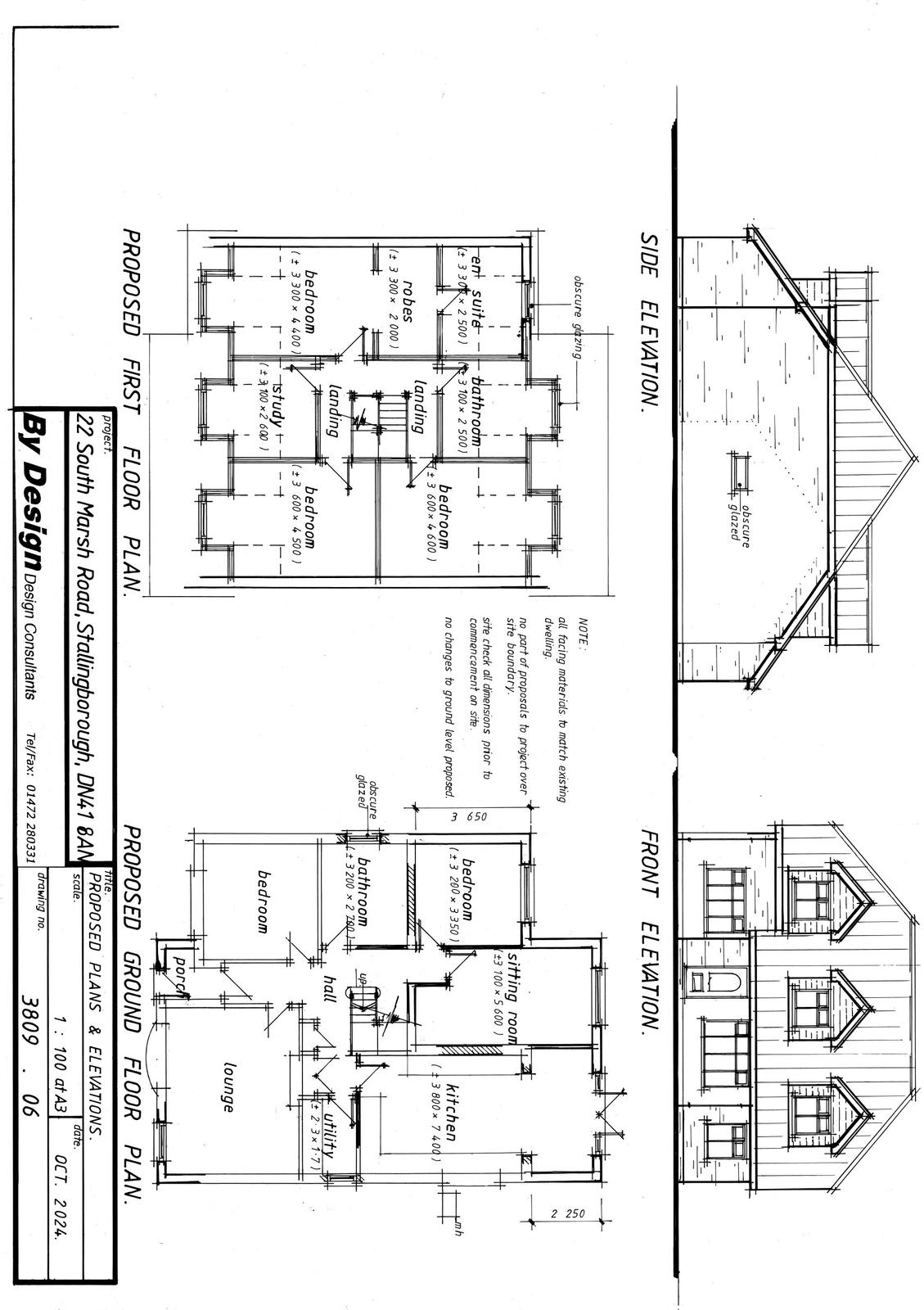
Raise roof height to create first floor accommodation. Erect extensions to front and rear with front and rear dormers. Demolish existing gar...

Type House extension
Status Awaiting decision
Received Date not available
Plan thumbnail

Demolition of rear porch and part demolition of existing ground floor rear apartment, erect single storey side/rear extension to include roo...

Type New housing
Status Awaiting decision
Received Date not available
Plan thumbnail

Erect two storey rear extension, erect single storey side extension, alterations to roof to include replacement of flat roof with hipped roo...

Type House extension
Status Pending Consideration
Received Date not available
Plan thumbnail

Demolish existing farm buildings and erect one detached dwelling (NPPF - Paragraph 84), relocation of existing vehicular access with new acc...

Type New housing
Status Pending Consideration
Received Date not available
Plan thumbnail

Demolition of existing modular units, erection of a single and two storey teaching and support building with roof lights and solar panels. R...

Type Commercial
Status Pending Consideration
Received Date not available
Plan thumbnail

Replacement and alterations to existing pitched roof and associated works to flat roof

Type Other
Status Pending Consideration
Received Date not available
Plan thumbnail

Erect single storey extension to front of existing garage to form self-contained annexe with associated works

Type House extension
Status Pending Consideration
Received Date not available
Plan thumbnail

Demolition of existing offices and the erection of 6no. industrial/commercial B1, B2 and B8 units with bin stores, parking and associated wo...

Type Industrial
Status Pending Consideration
Received Date not available
Plan thumbnail

Change of use of first floor from retail to one self contained flat, installation of door to front elevation and external rear staircase, al...

Type Change of use
Status Pending Consideration
Received Date not available
Plan thumbnail

Erect two storey and single storey extensions to side/rear, erect first floor extension to front, installation of pitched roofs to existing ...

Type Commercial
Status Pending Consideration
Received Date not available
Plan thumbnail

Roof raise with first floor extensions to front, side and rear to include rear dormer, replacement of ground floor rear windows and associat...

Type House extension
Status Pending Consideration
Received Date not available
Plan thumbnail

Demolition of canopy to side and porch to rear, erect extension to front to provide bay window, canopy with lights and two storey extension ...

Type House extension
Status Pending Consideration
Received Date not available
Plan thumbnail

Erect one detached bungalow to the rear to include new access, driveway and landscaping with associated works

Type New housing
Status Pending Consideration
Received Date not available
Plan thumbnail

Erection of one bungalow and garage with associated works

Type New housing
Status Pending Consideration
Received Date not available
Plan thumbnail

Extensions and alterations to form loft conversion with installation of dormer to rear and single storey extension to side with rooflights (...

Type House extension
Status Pending Consideration
Received Date not available
Plan thumbnail

Outline application to erect a single dwelling with all matters reserved

Type New housing
Status Pending Consideration
Received Date not available
Plan thumbnail

Outline application for nine dwellings and garages with all matters reserved

Type New housing
Status Pending Consideration
Received Date not available
Plan thumbnail

Hybrid planning application seeking: Outline application with all matters reserved except the link road access (see full application descrip...

Type New housing
Status Pending Consideration
Received Date not available
Plan thumbnail

Convert first-floor commercial space into two one-bedroom flats with new entrance and window alterations.

Type Change of use
Status Pending Consideration
Received Date not available
Plan thumbnail

Outline application to erect two dwellings with garages and access to be considered.

Type New housing
Status Pending Consideration
Received Date not available
Plan thumbnail

Outline application to erect two dwellings and associated accesses with all matters reserved

Type New housing
Status Awaiting decision
Received Date not available
Plan thumbnail

Prior approval to convert upper office floors to 24 residential apartments, with communal areas and lobby changes.

Type Change of use
Status Awaiting decision
Received Date not available
Plan thumbnail

Change of use from two five bedroom Houses in Multiple Occupation (HMO) to provide a 12 bedroom HMO to 39A Lord Street and a 6 bedroom HMO t...

Type Change of use
Status Pending Consideration
Received Date not available
Plan thumbnail

Erect 8 dwellings and garages with associated works to include provision of attenuation pond

Type New housing
Status Pending Consideration
Received Date not available
Plan thumbnail

Change of use of detached dwelling into two dwellings with alterations.

Type Change of use
Status Awaiting decision
Received Date not available
Plan thumbnail

Outline application for erection of six dwellings with access and landscaping.

Type New housing
Status Pending Consideration
Received Date not available

Change of use and alterations to create 1 residential dwelling with associated works (Amended Flood Risk Assessment - received

Type Change of use
Status Pending Consideration
Received Date not available
Plan thumbnail

Change of use from a commercial building to a domestic dwelling

Type Change of use
Status Pending Consideration
Received Date not available

Change of use of first floor from one flat to two flats with external alterations and associated works

Type Change of use
Status Pending Consideration
Received Date not available
Plan thumbnail

Outline application for proposed residential development of up to 250 dwellings, public open space incorporating new green infrastructure, S...

Type New housing
Status Pending Consideration
Received Date not available
Plan thumbnail

Erect first floor extension to rear to create three self-contained flats to include installation of external staircases and creation of exte...

Type House extension
Status Pending Consideration
Received Date not available
Plan thumbnail

Erect single storey extension to rear and side with flat roof, roof lantern, installation of window to front and associated works

Type House extension
Status Pending Consideration
Received Date not available
Plan thumbnail

Erection of 60 dwellings including access from Fieldhead Road with emergency vehicular access onto Caistor Road and associated works. (Trans...

Type New housing
Status Pending Consideration
Received Date not available
Plan thumbnail

Partial demolition of existing church and church house, erect single and two storey extensions to include link to church house following con...

Type Other
Status Pending Consideration
Received Date not available

Subdivide existing dwelling into two semi-detached homes with roof alterations, rear extension and dormers.

Type New housing
Status Pending Consideration
Received Date not available

Change of use from a shop to a dwelling house with alterations to door and window openings and associated works

Type Change of use
Status Pending Consideration
Received Date not available

Construction of two dwellings with integral garages, solar panels, boundary treatments and associated works.

Type New housing
Status Pending Consideration
Received Date not available
Plan thumbnail

Outline residential development for up to 300 dwellings with associated infrastructure.

Type New housing
Status Pending Consideration
Received Date not available
Plan thumbnail

Erection of nine dwellings with public open space, access roads and associated infrastructure.

Type New housing
Status Pending Consideration
Received Date not available
Plan thumbnail

Outline application to erect one detached dwelling with associated access and parking with all matters reserved

Type New housing
Status Pending Consideration
Received Date not available
Plan thumbnail

Outline application to erect one detached dwelling with associated access, parking and drainage with all matters reserved

Type New housing
Status Pending Consideration
Received Date not available

Alterations and change of use to part of ground floor to provide hot food takeaway/restaurant and offices. Creation of entrance lobby, cycle...

Type Change of use
Status Pending Consideration
Received Date not available
Plan thumbnail

Erect single storey flat roof extension to rear, installation of new glazed canopy to front, creation of external seating area to rear, inst...

Type Commercial
Status Pending Consideration
Received Date not available

Partial change of use from residential institution to form pharmacy with internal alterations and installation of two detached portable buil...

Type Change of use
Status Pending Consideration
Received Date not available
Plan thumbnail

Erect 154 dwellings with associated access, car parking, infrastructure, drainage, landscaping, public open space and amended driving range ...

Type New housing
Status Pending Consideration
Received Date not available
Plan thumbnail

Outline application for the erection of a detached dwelling and detached garage with access, layout and scale to be considered (Refreshed co...

Type New housing
Status Pending Consideration
Received Date not available

Demolish barns and erect nine dwellings with parking, gardens, access roads.

Type New housing
Status Pending Consideration
Received Date not available

Convert and extend plant room to create two one-bedroom studio flats.

Type Change of use
Status Pending Consideration
Received Date not available

Erection of 41 dwellings and garages utilising the existing access to Station Road including the installation of an attenuation basin, lands...

Type New housing
Status Pending Consideration
Received Date not available

Retrospective change of uses: nightclub/bar alterations and conversion of flat to hotel, with external/internal alterations.

Type Change of use
Status Awaiting decision
Received Date not available

Change of use from single dwelling to two self-contained flats with door, window and roof alterations.

Type Change of use
Status Decided
Received Date not available