← North East Lincolnshire Council

Status

Pending Consideration House extension
Received
Not recorded
New homes
0

Full proposal

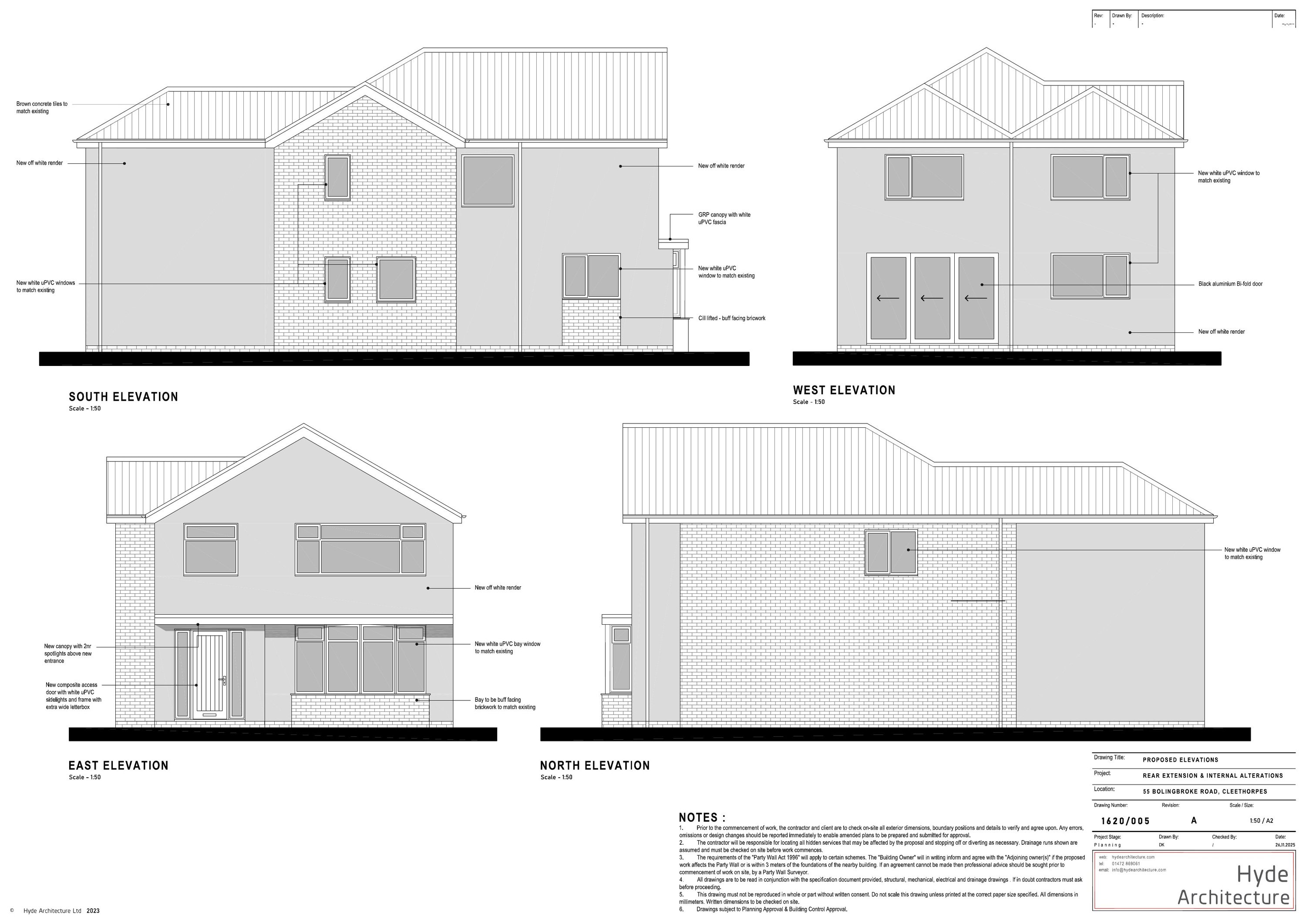
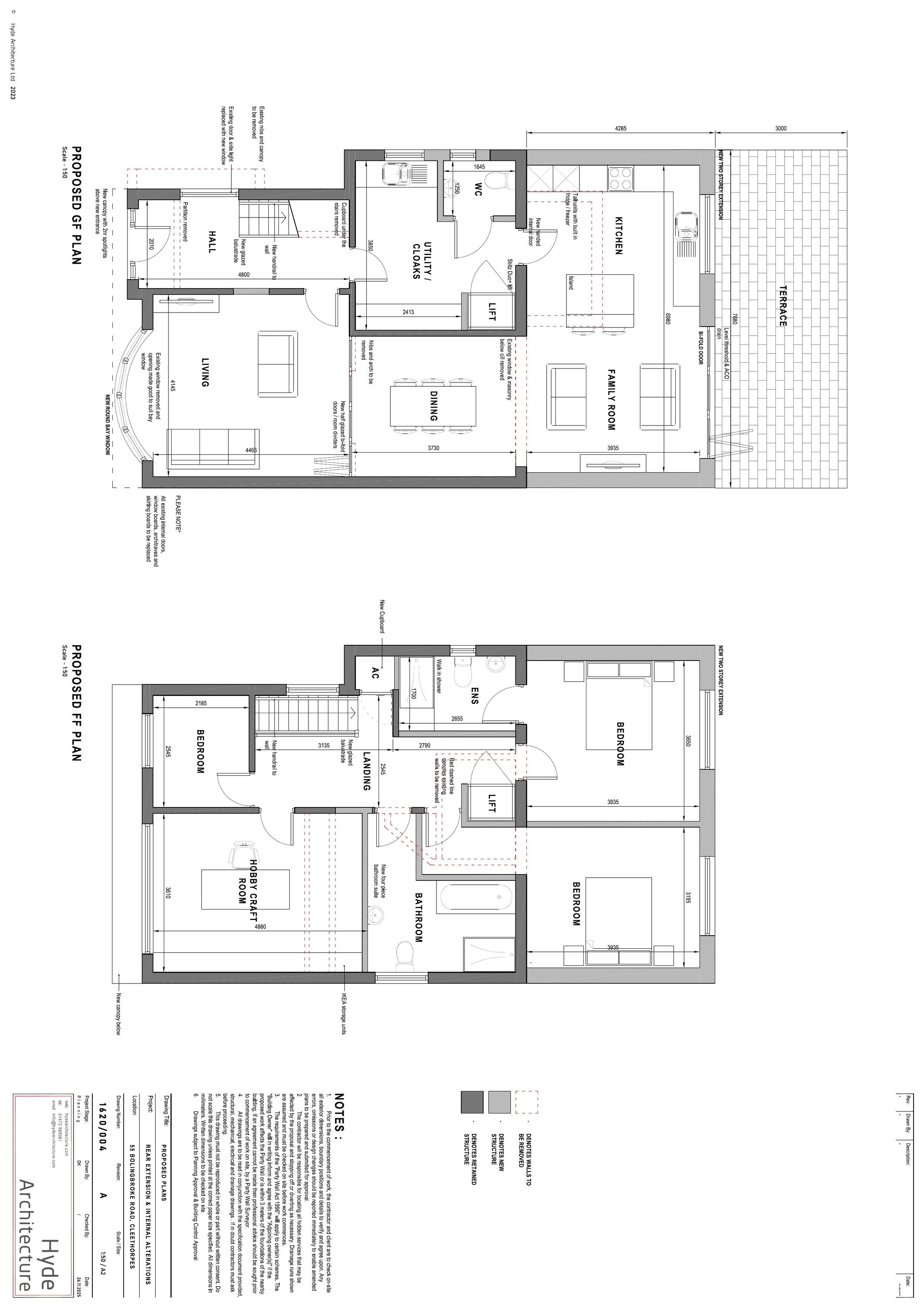
Demolition of canopy to side and porch to rear, erect extension to front to provide bay window, canopy with lights and two storey extension to rear. Alterations to include new windows and render to exterior walls.

Documents

Application Form - No Details
Archived · Original link
Consultee Comment - No Details
Archived · Original link
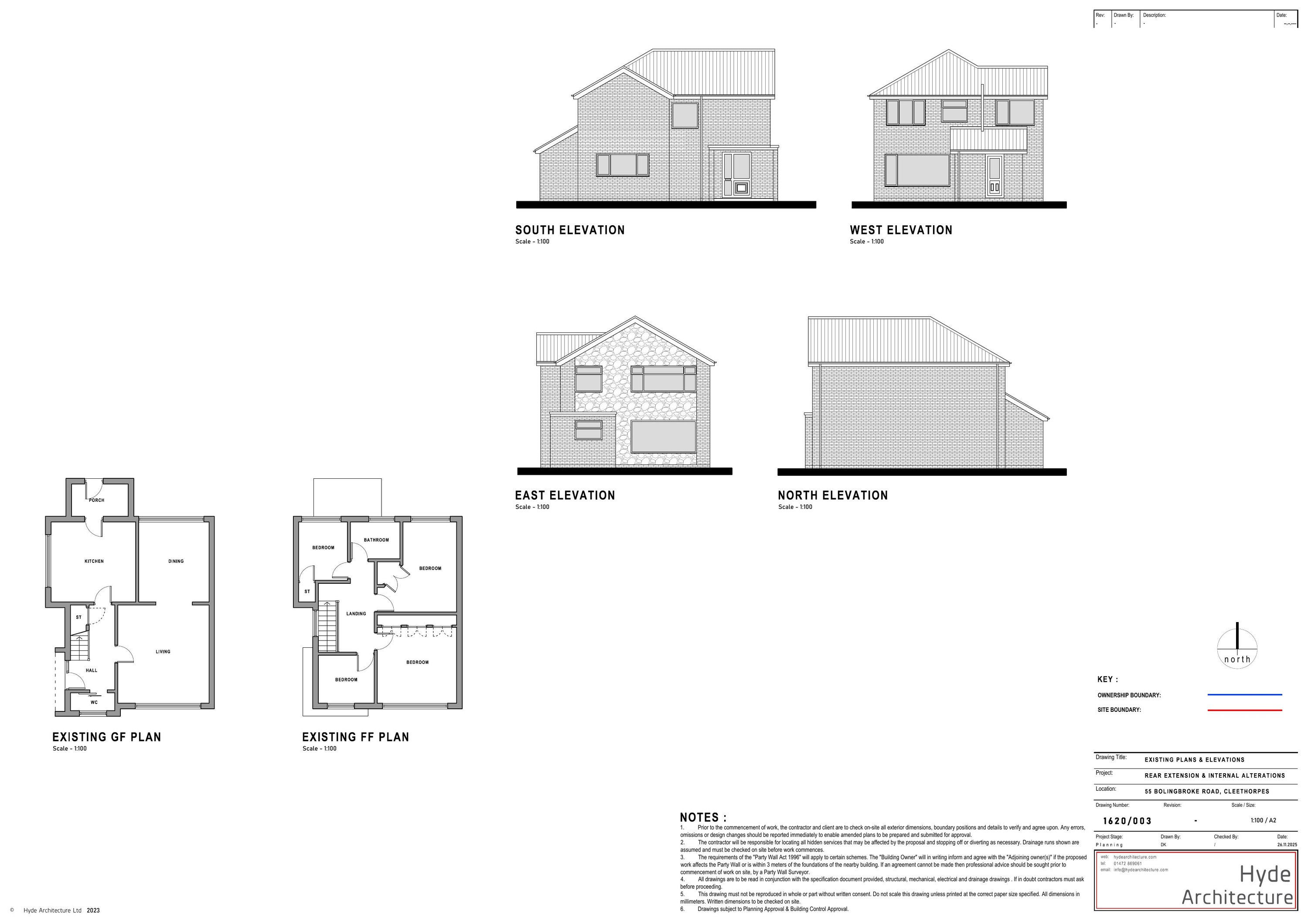
Plans & Elevations- Existing
Archived · Original link
Consultee Comment - No Details
Archived · Original link
Consultee Comment - No Details
Archived · Original link
Proposed Elevations
Archived · Original link
Proposed Plans
Archived · Original link
Site Location Plan
Archived · Original link

Have your say

Your comment matters. Councils must consider every representation that raises material planning considerations.

Write a comment