← North East Lincolnshire Council

Status

Pending Consideration House extension
Received
Not recorded
New homes
0

Full proposal

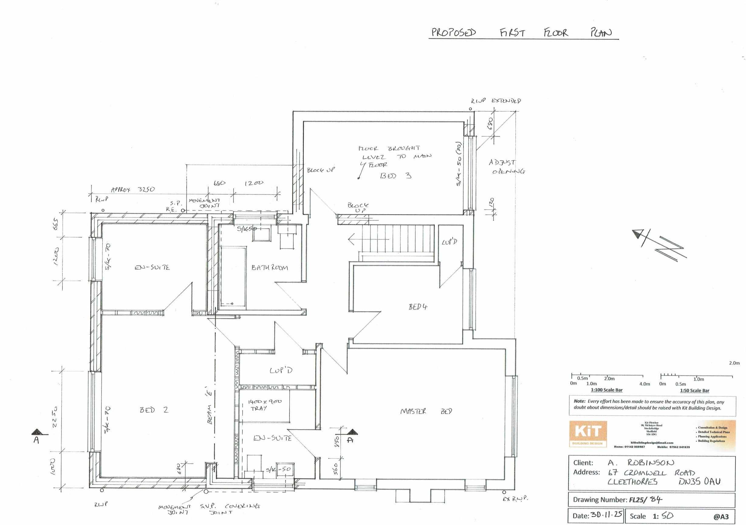
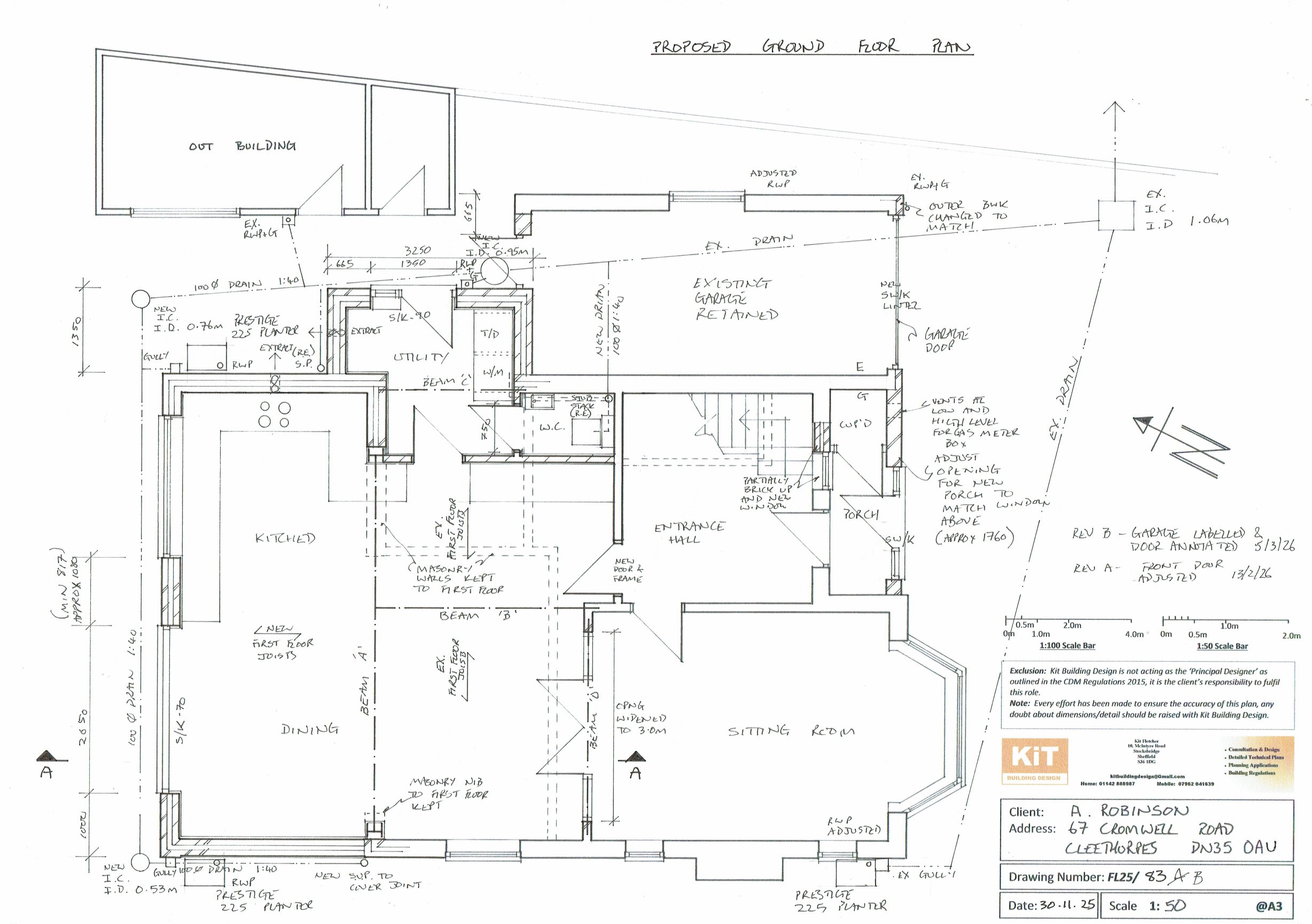
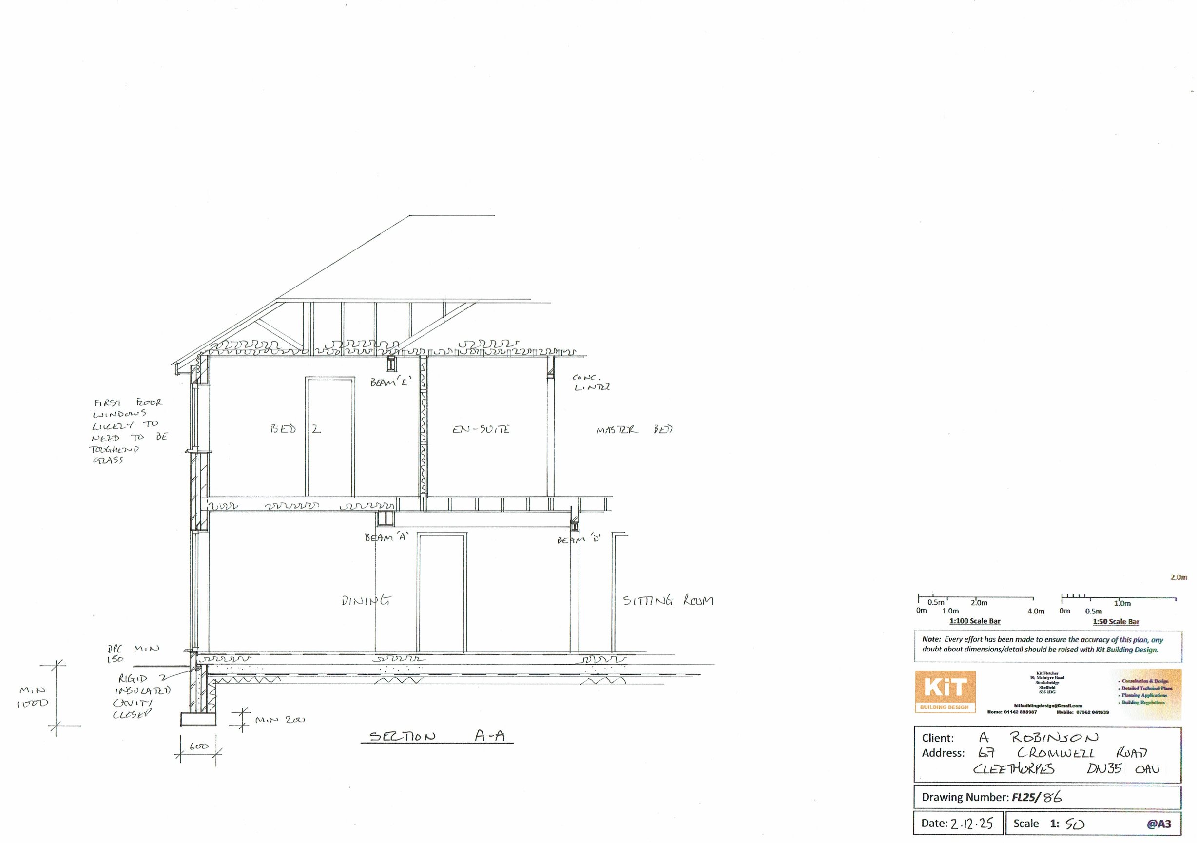
Erect two storey rear extension, erect single storey side extension, alterations to roof to include replacement of flat roof with hipped roof, alterations to front porch, install two side windows at first floor, alterations to windows and doors with associated works

Documents

Application Form - No Details
Archived · Original link
Existing Elevations
Archived · Original link
Existing Plans
Archived · Original link
Existing Plans
Archived · Original link
Block Plan
Archived · Original link
Proposed Elevations
Archived · Original link
Proposed Plans
Archived · Original link
Proposed Plans
Archived · Original link
Proposed Plans
Archived · Original link
Block Plan
Archived · Original link
Site Location Plan
Archived · Original link
Supporting Documents
Archived · Original link

Have your say

Your comment matters. Councils must consider every representation that raises material planning considerations.

Write a comment