← North East Lincolnshire Council

Status

Pending Consideration House extension
Received
Not recorded
New homes
0

Full proposal

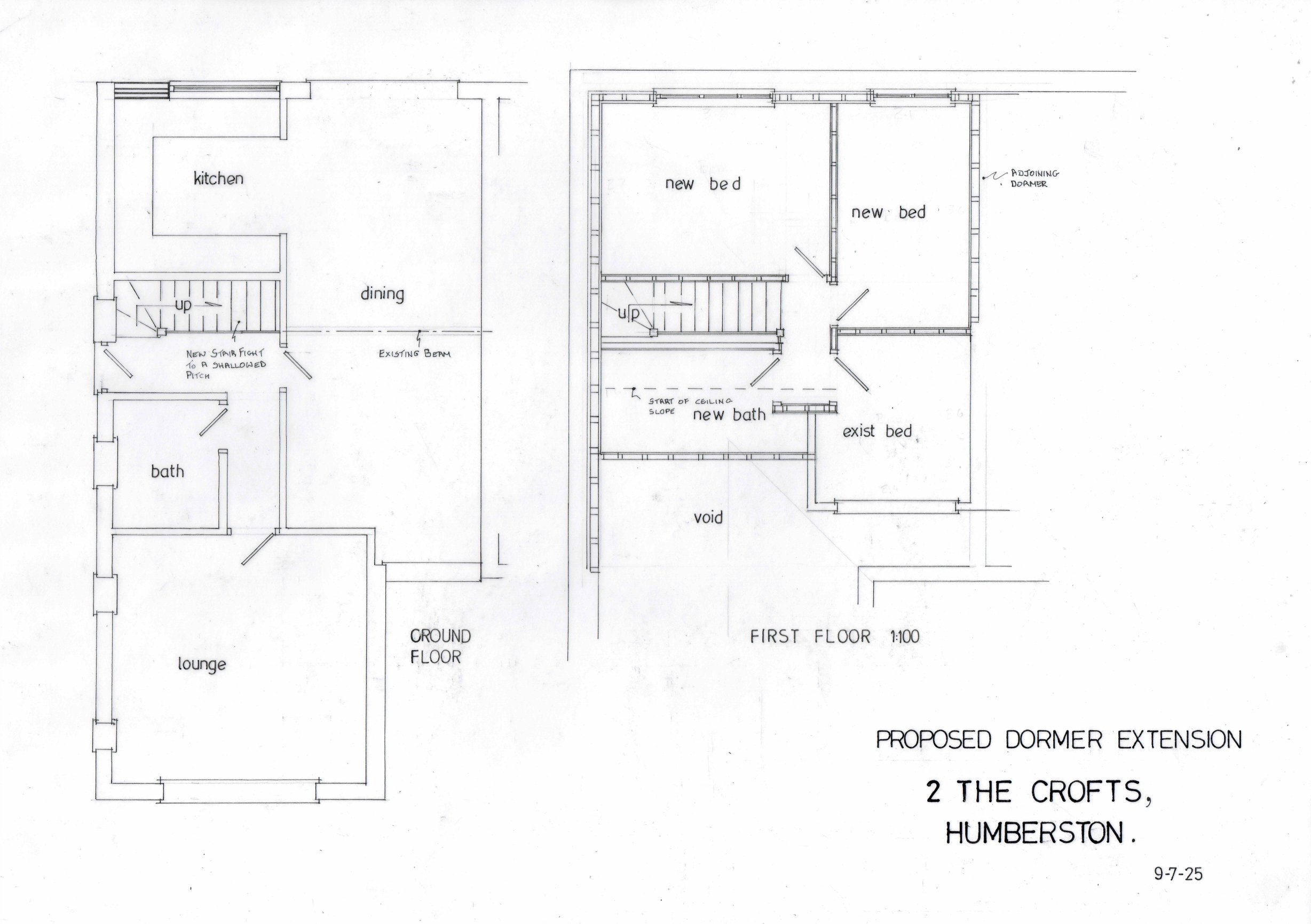
Roof raise with first floor extensions to front, side and rear to include rear dormer, replacement of ground floor rear windows and associated works

Documents

Application Form - No Details
Archived · Original link
Consultee Comment - No Details
Archived · Original link
Consultee Comment - No Details
Archived · Original link
Consultee Comment - No Details
Archived · Original link
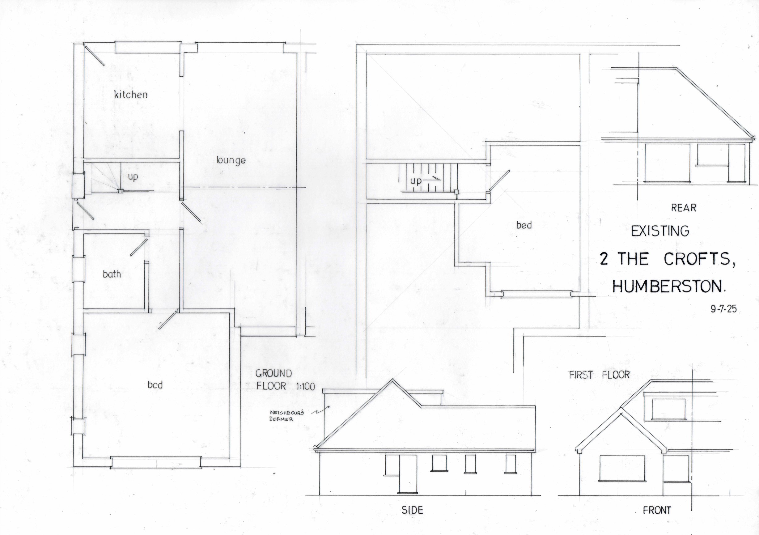
Proposed Elevations
Archived · Original link
Proposed Plans
Archived · Original link
Plans - General
Archived · Original link

Have your say

Your comment matters. Councils must consider every representation that raises material planning considerations.

Write a comment