← North East Lincolnshire Council

Status

Pending Consideration New housing
Received
Not recorded
New homes
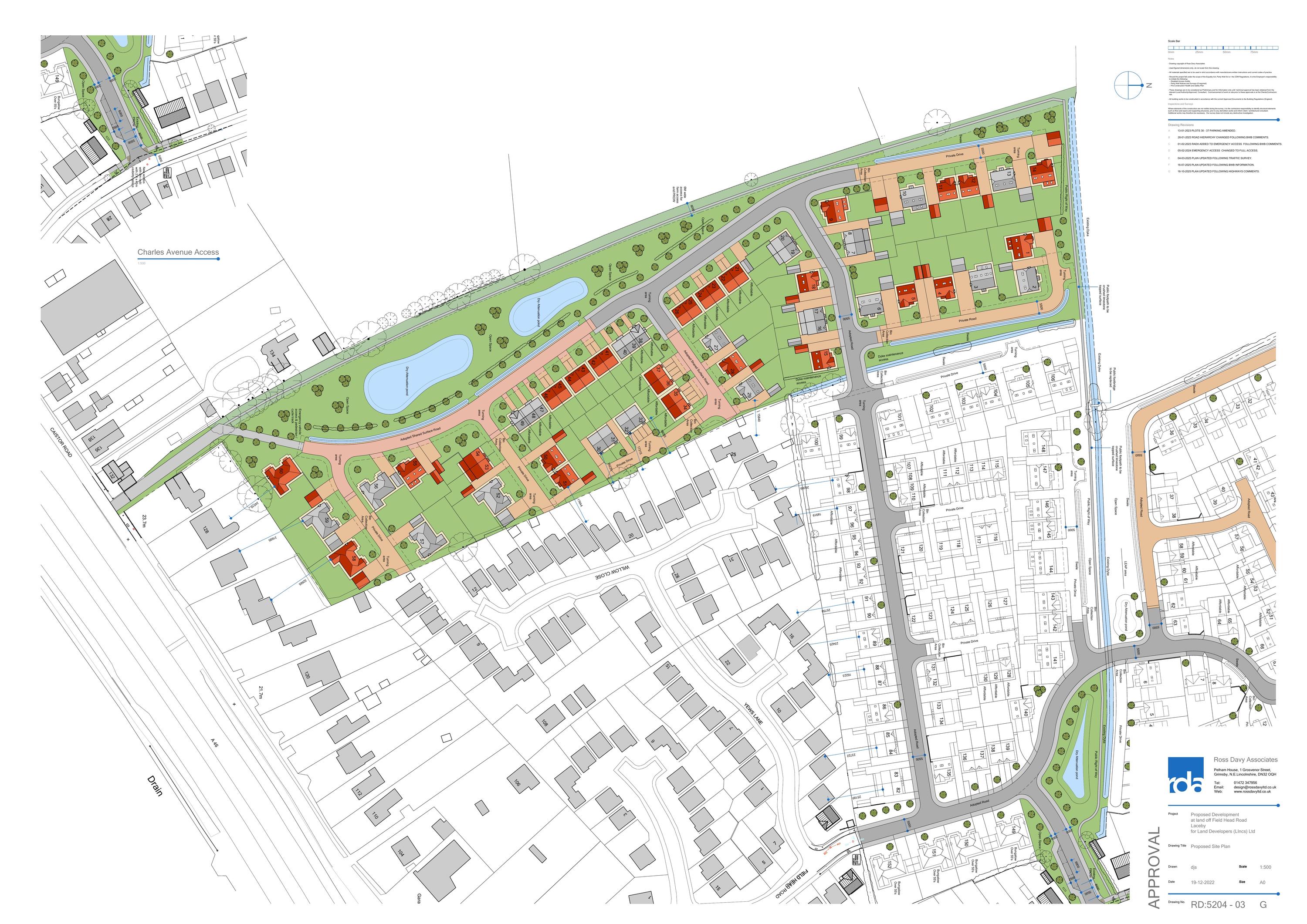
60

Full proposal

Erection of 60 dwellings including access from Fieldhead Road with emergency vehicular access onto Caistor Road and associated works. (Transport Assessment and Travel Plan June 2023) ) Amended plans to include secondary vehicular access onto Charles Avenue and updated Transport Assessment.

Documents

1 ELM LANE
Neighbour Comment - No Details
Not yet archived · Original link
1 ST PETERS GROVE
Neighbour Comment - No Details
Not yet archived · Original link
1 WILLOW CLOSE
Neighbour Comment - No Details
Not yet archived · Original link
1 YEWS LANE
Neighbour Comment - No Details
Not yet archived · Original link
10 LEALAND CLOSE
Neighbour Comment - No Details
Not yet archived · Original link
10 LEALAND CLOSE
Neighbour Comment - No Details
Not yet archived · Original link
102 CAISTOR ROAD
Neighbour Comment - No Details
Not yet archived · Original link
11 CHARLES AVENUE
Neighbour Comment - No Details
Not yet archived · Original link
11 ELM LANE
Neighbour Comment - No Details
Not yet archived · Original link
11 ELM LANE
Neighbour Comment - No Details
Not yet archived · Original link
11 LEALAND CLOSE
Neighbour Comment - No Details
Not yet archived · Original link
11 WILLOW CLOSE
Neighbour Comment - No Details
Not yet archived · Original link
110 CAISTOR ROAD
Neighbour Comment - No Details
Not yet archived · Original link
112 CAISTOR ROAD
Neighbour Comment - No Details
Not yet archived · Original link
118 CAISTOR ROAD
Neighbour Comment - No Details
Not yet archived · Original link
12 ELM LANE
Neighbour Comment - No Details
Not yet archived · Original link
12 ELM LANE
Neighbour Comment - No Details
Not yet archived · Original link
12 FIELD HEAD ROAD
Neighbour Comment - No Details
Not yet archived · Original link
12 WILLOW CLOSE
Neighbour Comment - No Details
Not yet archived · Original link
122 CAISTOR ROAD
Neighbour Comment - No Details
Not yet archived · Original link
122 CAISTOR ROAD
Neighbour Comment - No Details
Not yet archived · Original link
126 CAISTOR ROAD
Neighbour Comment - No Details
Not yet archived · Original link
126 CAISTOR ROAD
Neighbour Comment - No Details
Not yet archived · Original link
126 CAISTOR ROAD
Neighbour Comment - No Details
Not yet archived · Original link
126 CAISTOR ROAD
Neighbour Comment - No Details
Not yet archived · Original link
126 CAISTOR ROAD
Neighbour Comment - No Details
Not yet archived · Original link
128 CAISTOR ROAD
Neighbour Comment - No Details
Not yet archived · Original link
128 CAISTOR ROAD
Consultee Comment - No Details
Not yet archived · Original link
128 CAISTOR ROAD
Neighbour Comment - No Details
Not yet archived · Original link
128 CAISTOR ROAD
Neighbour Comment - No Details
Not yet archived · Original link
128 CAISTOR ROAD
Neighbour Comment - No Details
Not yet archived · Original link
13 ELM LANE
Neighbour Comment - No Details
Not yet archived · Original link
130 CAISTOR ROAD
Neighbour Comment - No Details
Not yet archived · Original link
134 CAISTOR ROAD
Neighbour Comment - No Details
Not yet archived · Original link
134 CAISTOR ROAD
Neighbour Comment - No Details
Not yet archived · Original link
138 CAISTOR ROAD
Neighbour Comment - No Details
Not yet archived · Original link
14 FIELD HEAD ROAD
Neighbour Comment - No Details
Not yet archived · Original link
14 GEORGE BUTLER CLOSE
Neighbour Comment - No Details
Not yet archived · Original link
142 CAISTOR ROAD
Neighbour Comment - No Details
Not yet archived · Original link
142 CAISTOR ROAD
Neighbour Comment - No Details
Not yet archived · Original link
15 ELM LANE
Neighbour Comment - No Details
Not yet archived · Original link
15 ELM LANE
Neighbour Comment - No Details
Not yet archived · Original link
15 WILLOW CLOSE
Neighbour Comment - No Details
Not yet archived · Original link
15 WILLOW CLOSE
Neighbour Comment - No Details
Not yet archived · Original link
16 CHARLES AVENUE
Neighbour Comment - No Details
Not yet archived · Original link
16 HAWERBY ROAD
Neighbour Comment - No Details
Not yet archived · Original link
16 KENMAR ROAD
Neighbour Comment - No Details
Not yet archived · Original link
16 WILLOW CLOSE
Neighbour Comment - No Details
Not yet archived · Original link
17 CEMETERY ROAD
Neighbour Comment - No Details
Not yet archived · Original link
17 CEMETERY ROAD
Neighbour Comment - No Details
Not yet archived · Original link
17 CEMETERY ROAD
Neighbour Comment - No Details
Not yet archived · Original link
17 CEMETERY ROAD
Neighbour Comment - No Details
Not yet archived · Original link
17 CHARLES AVENUE
Neighbour Comment - No Details
Not yet archived · Original link
17 WILLOW CLOSE
Neighbour Comment - No Details
Not yet archived · Original link
17 WILLOW CLOSE
Neighbour Comment - No Details
Not yet archived · Original link
17 WILLOW CLOSE
Neighbour Comment - No Details
Not yet archived · Original link
18 CHARLES AVENUE
Neighbour Comment - No Details
Not yet archived · Original link
18 WILLOW CLOSE
Neighbour Comment - No Details
Not yet archived · Original link
18 WILLOW CLOSE
Neighbour Comment - No Details
Not yet archived · Original link
19 CHARLES AVENUE
Neighbour Comment - No Details
Not yet archived · Original link
19 KEITH CRESCENT
Neighbour Comment - No Details
Not yet archived · Original link
19 WILLOW CLOSE
Neighbour Comment - No Details
Not yet archived · Original link
1B BLYTH WAY
Neighbour Comment - No Details
Not yet archived · Original link
2 ALTOFT CLOSE
Neighbour Comment - No Details
Not yet archived · Original link
2 CHURCH LANE
Neighbour Comment - No Details
Not yet archived · Original link
2 CHURCH LANE
Neighbour Comment - No Details
Not yet archived · Original link
2 GIBRALTAR LANE
Neighbour Comment - No Details
Not yet archived · Original link
20 CAISTOR ROAD
Neighbour Comment - No Details
Not yet archived · Original link
20 WILLOW CLOSE
Neighbour Comment - No Details
Not yet archived · Original link
21 BLYTH WAY
Neighbour Comment - No Details
Not yet archived · Original link
21 BUTT LANE
Neighbour Comment - No Details
Not yet archived · Original link
21 CHARLES AVENUE
Neighbour Comment - No Details
Not yet archived · Original link
21 WILLOW CLOSE
Neighbour Comment - No Details
Not yet archived · Original link
22 WALMSLEY CLOSE
Neighbour Comment - No Details
Not yet archived · Original link
23 WILLOW CLOSE
Neighbour Comment - No Details
Not yet archived · Original link
23 WILLOW CLOSE
Neighbour Comment - No Details
Not yet archived · Original link
23 WILLOW CLOSE
Neighbour Comment - No Details
Not yet archived · Original link
23 WILLOW CLOSE
Neighbour Comment - No Details
Not yet archived · Original link
23 WILLOW CLOSE
Neighbour Comment - No Details
Not yet archived · Original link
24 CHARLES AVENUE
Neighbour Comment - No Details
Not yet archived · Original link
24 KEMAR ROAD
Neighbour Comment - No Details
Not yet archived · Original link
24 WILLOW CLOSE
Neighbour Comment - No Details
Not yet archived · Original link
24 WILLOW CLOSE
Neighbour Comment - No Details
Not yet archived · Original link
24 WILLOW CLOSE
Neighbour Comment - No Details
Not yet archived · Original link
24 WILLOW CLOSE
Neighbour Comment - No Details
Not yet archived · Original link
24 WILLOW CLOSE
Neighbour Comment - No Details
Not yet archived · Original link
24 WILLOW CLOSE
Neighbour Comment - No Details
Not yet archived · Original link
25 BLYTH WAY
Neighbour Comment - No Details
Not yet archived · Original link
26 CHARLES AVENUE
Neighbour Comment - No Details
Not yet archived · Original link
26 GEORGE BUTLER CLOSE
Neighbour Comment - No Details
Not yet archived · Original link
26 GEORGE BUTLER CLOSE
Neighbour Comment - No Details
Not yet archived · Original link
26 GEORGE BUTLER CLOSE
Neighbour Comment - No Details
Not yet archived · Original link
27 CHARLES AVENUE
Consultee Comment - No Details
Not yet archived · Original link
28 CEMETERY ROAD
Neighbour Comment - No Details
Not yet archived · Original link
28 CHARLES AVENUE
Neighbour Comment - No Details
Not yet archived · Original link
28 YEWS LANE
Neighbour Comment - No Details
Not yet archived · Original link
29 CHARLES AVENUE
Neighbour Comment - No Details
Not yet archived · Original link
3 CEMETERY CRESCENT
Neighbour Comment - No Details
Not yet archived · Original link
3 FIELD HEAD ROAD
Neighbour Comment - No Details
Not yet archived · Original link
3 FIELD HEAD ROAD
Neighbour Comment - No Details
Not yet archived · Original link
3 YEWS LANE
Neighbour Comment - No Details
Not yet archived · Original link
30 CHARLES AVENUE
Neighbour Comment - No Details
Not yet archived · Original link
30 CHARLES AVENUE
Neighbour Comment - No Details
Not yet archived · Original link
30 HARNEIS CRESCENT
Neighbour Comment - No Details
Not yet archived · Original link
31 BLYTH WAY
Neighbour Comment - No Details
Not yet archived · Original link
31A YEWS LANE
Neighbour Comment - No Details
Not yet archived · Original link
32 ST PETERS GROVE
Neighbour Comment - No Details
Not yet archived · Original link
33 CEMETERY ROAD
Neighbour Comment - No Details
Not yet archived · Original link
34 CHARLES AVENUE
Neighbour Comment - No Details
Not yet archived · Original link
34 CHURCH LANE
Neighbour Comment - No Details
Not yet archived · Original link
35 CHARLES AVENUE
Neighbour Comment - No Details
Not yet archived · Original link
35 CHARLES AVENUE
Neighbour Comment - No Details
Not yet archived · Original link
35 GRIMSBY ROAD
Neighbour Comment - No Details
Not yet archived · Original link
36 CHARLES AVENUE
Neighbour Comment - No Details
Not yet archived · Original link
36 CHARLES AVENUE
Neighbour Comment - No Details
Not yet archived · Original link
36 ST PETERS GROVE
Neighbour Comment - No Details
Not yet archived · Original link
38 CHARLES AVENUE
Neighbour Comment - No Details
Not yet archived · Original link
38 CHARLES AVENUE
Neighbour Comment - No Details
Not yet archived · Original link
4 CHARLES AVENUE
Neighbour Comment - No Details
Not yet archived · Original link
4 CHARLES AVENUE
Neighbour Comment - No Details
Not yet archived · Original link
4 CHURCH LANE
Neighbour Comment - No Details
Not yet archived · Original link
4 GRANGE AVENUE
Neighbour Comment - No Details
Not yet archived · Original link
4 IVY FARM COURT
Neighbour Comment - No Details
Not yet archived · Original link
41 CHURCH LANE
Neighbour Comment - No Details
Not yet archived · Original link
43 CHARLES AVENUE
Neighbour Comment - No Details
Not yet archived · Original link
43 CHARLES AVENUE
Neighbour Comment - No Details
Not yet archived · Original link
45 HAWERBY ROAD
Neighbour Comment - No Details
Not yet archived · Original link
47 CHARLES AVENUE
Neighbour Comment - No Details
Not yet archived · Original link
48 CHARLES AVENUE
Neighbour Comment - No Details
Not yet archived · Original link
5 GEORGE BUTLER CLOSE
Neighbour Comment - No Details
Not yet archived · Original link
5 YEWS LANE
Neighbour Comment - No Details
Not yet archived · Original link
51 KEITH CRESCENT
Neighbour Comment - No Details
Not yet archived · Original link
53 CAISTOR ROAD
Neighbour Comment - No Details
Not yet archived · Original link
58 COOPER LANE
Neighbour Comment - No Details
Not yet archived · Original link
6 KNIGHTS CLOSE
Neighbour Comment - No Details
Not yet archived · Original link
6 ST PETERS GROVE
Neighbour Comment - No Details
Not yet archived · Original link
60 KEITH CRESCENT
Neighbour Comment - No Details
Not yet archived · Original link
61 CHARLES AVENUE
Neighbour Comment - No Details
Not yet archived · Original link
61 CHARLES AVENUE
Neighbour Comment - No Details
Not yet archived · Original link
64 KEITH CRESCENT
Neighbour Comment - No Details
Not yet archived · Original link
64 KEITH CRESCENT
Neighbour Comment - No Details
Not yet archived · Original link
65 CAISTOR ROAD
Neighbour Comment - No Details
Not yet archived · Original link
65 CAISTOR ROAD
Neighbour Comment - No Details
Not yet archived · Original link
67 CHARLES AVENUE
Neighbour Comment - No Details
Not yet archived · Original link
68 HAWERBY ROAD
Neighbour Comment - No Details
Not yet archived · Original link
7 CHATSWORTH CLOSE
Neighbour Comment - No Details
Not yet archived · Original link
7 FIELD HEAD ROAD
Neighbour Comment - No Details
Not yet archived · Original link
7 YEWS LANE
Neighbour Comment - No Details
Not yet archived · Original link
7 YEWS LANE
Neighbour Comment - No Details
Not yet archived · Original link
75 CAISTOR ROAD
Neighbour Comment - No Details
Not yet archived · Original link
76 CAISTOR ROAD
Neighbour Comment - No Details
Not yet archived · Original link
8 CHARLES AVENUE
Neighbour Comment - No Details
Not yet archived · Original link
8 CHATSWORTH CLOSE
Neighbour Comment - No Details
Not yet archived · Original link
8 ELM LANE
Neighbour Comment - No Details
Not yet archived · Original link
9 GIBRALTAR LANE
Neighbour Comment - No Details
Not yet archived · Original link
9 KENMAR ROAD
Neighbour Comment - No Details
Not yet archived · Original link
9 NORTHUMBERLAND CLOSE
Neighbour Comment - No Details
Not yet archived · Original link
9 NORTHUMBERLAND CLOSE
Neighbour Comment - No Details
Not yet archived · Original link
9 THE MEAD
Neighbour Comment - No Details
Not yet archived · Original link
ALFRED BANNISTER MEWS
Neighbour Comment - No Details
Not yet archived · Original link
ALFRED BANNISTER MEWS
Neighbour Comment - No Details
Not yet archived · Original link
ANGLIAN WATER COMMENT
Consultee Comment - No Details
Not yet archived · Original link
APPLICATION FORM
Application Form - No Details
Not yet archived · Original link
BAILROSSEY HOUSE, BARTON STREET
Neighbour Comment - No Details
Not yet archived · Original link
BARTON HOUSE, BARTON STREET
Consultee Comment - No Details
Not yet archived · Original link
BARTON HOUSE, BARTON STREET
Neighbour Comment - No Details
Not yet archived · Original link
BARTON HOUSE, BARTON STREET
Neighbour Comment - No Details
Not yet archived · Original link
BIODIVERSITY ASSESSMENT
Supporting Documents
Not yet archived · Original link
BLYTH WAY
Neighbour Comment - No Details
Not yet archived · Original link
CADENT GAS COMMENT
Consultee Comment - No Details
Not yet archived · Original link
CHURCH COTTAGE, CHURCH LANE
Neighbour Comment - No Details
Not yet archived · Original link
CONSTRUCTION MANAGEMENT PLAN
Supporting Documents
Not yet archived · Original link
COOPER LANE
Neighbour Comment - No Details
Not yet archived · Original link
CRIME REDUCTION OFFICER COMMENT
Consultee Comment - No Details
Not yet archived · Original link
DESIGN ACCESS STATEMENT
Superseded Documents
Not yet archived · Original link
DESIGN ACCESS STATEMENT
Amended Document
Not yet archived · Original link
DRAFT HEADS OF TERMS
Supporting Documents
Not yet archived · Original link
DRAFT S106 AGREEMENT
Section 106 Agreement
Not yet archived · Original link
DRAINAGE COMMENT
Consultee Comment - No Details
Not yet archived · Original link
DRAINAGE COMMENT
Consultee Comment - No Details
Not yet archived · Original link
DRAINAGE COMMENT
Consultee Comment - No Details
Not yet archived · Original link
DRAINAGE STRATEGY-
Supporting Documents
Not yet archived · Original link
ENVIRONMENTAL PROTECTION TEAM COMMENTS
Consultee Comment - No Details
Not yet archived · Original link
ENVIRONMENTAL PROTECTION TEAM COMMENTS
Consultee Comment - No Details
Not yet archived · Original link
EOT 30TH OCT
Additional Information/Plans
Not yet archived · Original link
ESP UTILITY GROUP
Consultee Comment - No Details
Not yet archived · Original link
EXISTING BLOCK PLAN-REV-0
Block Plan
Not yet archived · Original link
FLOOD RISK ASSESSEMENT
Superseded Documents
Not yet archived · Original link
FLOOD RISK ASSESSMENT
Amended Document
Not yet archived · Original link
GRIMSBY AND CLEETHORPES CIVIC SOCIETY
Neighbour Comment - No Details
Not yet archived · Original link
GRIMSBY CLEETHORPES DISTRICT CIVIC SOCIETY (GCDCS)
Consultee Comment - No Details
Not yet archived · Original link
GRIMSBY, CLEETHORPES AND DISTRICT CIVIC SOCIETY
Consultee Comment - No Details
Not yet archived · Original link
HEALTH AND SAFETY EXECUTIVE
Consultee Comment - No Details
Not yet archived · Original link
HERITAGE OFFICER
Consultee Comment - No Details
Not yet archived · Original link
HERITAGE OFFICER COMMENT
Consultee Comment - No Details
Not yet archived · Original link
HERITAGE OFFICER COMMENT
Consultee Comment - No Details
Not yet archived · Original link
HIGHWAYS COMMENT
Consultee Comment
Not yet archived · Original link
HIGHWAYS COMMENT
Consultee Comment - No Details
Not yet archived · Original link
HIGHWAYS RESPONSE NOTE RE CHARLES AVENUE - P03
Additional Information/Plans
Not yet archived · Original link
HOME FARM COTTAGE AYLESBY
Neighbour Comment - No Details
Not yet archived · Original link
HSE COMMENT
Consultee Comment - No Details
Not yet archived · Original link
HSE ENGLAND COMMENT
Consultee Comment - No Details
Not yet archived · Original link
HUMBERSIDE FIRE AND RESCUE
Consultee Comment - No Details
Not yet archived · Original link
HUMBERSIDE FIRE AND RESCUE COMMENT
Consultee Comment - No Details
Not yet archived · Original link
HUMBERSIDE FIRE AND RESCUE COMMENT
Consultee Comment - No Details
Not yet archived · Original link
LACEBY MANOR HOUSE FARM GRIMSBY ROAD
Neighbour Comment - No Details
Not yet archived · Original link
LACEBY PARISH COUNCIL COMMENT
Consultee Comment - No Details
Not yet archived · Original link
LACEBY PARISH COUNCIL COMMENT
Consultee Comment - No Details
Not yet archived · Original link
LACEBY PARISH COUNCIL COMMENT
Consultee Comment - No Details
Not yet archived · Original link
LACEBY VILLAGE COUNCIL
Consultee Comment - No Details
Not yet archived · Original link
LITTLE ORCHARD, GIBRALTAR LANE
Neighbour Comment - No Details
Not yet archived · Original link
LITTLE ORCHARD, GIBRALTAR LANE
Neighbour Comment - No Details
Not yet archived · Original link
MANAGEMENT SCHEME
Supporting Documents
Not yet archived · Original link
NEWSPAPER CLIPPING
Publicity - local paper
Not yet archived · Original link
NEWSPAPER CLIPPING
Publicity - local paper
Not yet archived · Original link
PLANNING STATEMENT
Supporting Documents
Not yet archived · Original link
PRELIMINARY ECOLOGICAL APPRAISAL
Supporting Documents
Not yet archived · Original link
PROPOSED BLOCK PLAN
Superseded Plans
Not yet archived · Original link
PROPOSED BLOCK PLAN-REV-B
Superseded Plans
Not yet archived · Original link
PROPOSED CHARLES AVENUE ACCESS ARRANGEMENT
Additional Information/Plans
Not yet archived · Original link
PROPOSED CHARLES AVENUE ACCESS PLAN
Additional Information/Plans
Not yet archived · Original link
PROPOSED EMERGENCY ACCESS PLAN-REV-0
Proposed Plans
Not yet archived · Original link
PROPOSED EXTERNAL WORKS PLAN-REV-0
Proposed Plans
Not yet archived · Original link
Plans & Elevations- Proposed
Archived · Original link
Plans & Elevations- Proposed
Archived · Original link
Plans & Elevations- Proposed
Archived · Original link
Plans & Elevations- Proposed
Archived · Original link
Plans & Elevations- Proposed
Archived · Original link
Plans & Elevations- Proposed
Archived · Original link
Plans & Elevations- Proposed
Archived · Original link
PROPOSED FLOOR PLANS AND ELEVATIONS- TYPE H-REV-0
Plans & Elevations- Proposed
Not yet archived · Original link
PROPOSED GARAGE FLOOR PLANS AND ELEVATIONS PLAN-REV-0
Plans & Elevations- Proposed
Not yet archived · Original link
PROPOSED GARAGE PLAN-REV-A.PDF
Plans & Elevations- Proposed
Not yet archived · Original link
Amended Plan
Archived · Original link
PROPOSEDFLOOR PLANS AND ELEVATIONS- TYPE E HANDED-REV-0
Plans & Elevations- Proposed
Not yet archived · Original link
REFUSE VEHICLE TRACKING
Additional Information/Plans
Not yet archived · Original link
RIGHTS OF WAY - HIGHWAYS AND TRANSPORT COMMENT
Consultee Comment - No Details
Not yet archived · Original link
RIGHTS OF WAY - HIGHWAYS AND TRANSPORT COMMENT
Consultee Comment - No Details
Not yet archived · Original link
RIGHTS OF WAY - HIGHWAYS AND TRANSPORT COMMENT
Consultee Comment - No Details
Not yet archived · Original link
ROSE COTTAGE, 132 CAISTOR ROAD
Neighbour Comment - No Details
Not yet archived · Original link
ROWAN CROFT, BARTON STREET
Neighbour Comment - No Details
Not yet archived · Original link
Amended Plan
Archived · Original link
SITE NOTICE - WIDER PUBLICATION
Public Notice
Not yet archived · Original link
SITE-SITE NOTICE PUBLICITY
Public Notice
Not yet archived · Original link
SPORT ENGLAND COMMENT
Consultee Comment - No Details
Not yet archived · Original link
SPORTS ENGLAND
Consultee Comment - No Details
Not yet archived · Original link
STAGE 1 ROAD SAFETY AUDIT - JULY 2025
Additional Information/Plans
Not yet archived · Original link
SUSTAINABILITY STATEMENT
Supporting Documents
Not yet archived · Original link
TRAFFIC AND PARKING STATEMENT
Supporting Documents
Not yet archived · Original link
TRANSPORT & INFRASTRUCTURE PLANNING
Supporting Documents
Not yet archived · Original link
TRANSPORT & INFRASTRUCTURE PLANNING
Supporting Documents
Not yet archived · Original link
TRANSPORT & INFRASTRUCTURE STATEMENT - P01
Amended Document
Not yet archived · Original link
TRANSPORT ASSESSMENT ADDENDUM - P01
Amended Document
Not yet archived · Original link
TRANSPORT STATEMENT
Supporting Documents
Not yet archived · Original link
TRANSPORT TEAM
Consultee Comment - No Details
Not yet archived · Original link
TREES AND WOODLANDS OFFICER COMMENT
Consultee Comment - No Details
Not yet archived · Original link
TREES AND WOODLANDS OFFICER COMMENT
Consultee Comment - No Details
Not yet archived · Original link
UPDATED BNG REPORT
Amended Document
Not yet archived · Original link
UPDATED ECOLOGY INFORMATION
Amended Document
Not yet archived · Original link
WASTE TEAM MANAGER
Consultee Comment - No Details
Not yet archived · Original link

Have your say

Your comment matters. Councils must consider every representation that raises material planning considerations.

Write a comment