← North East Lincolnshire Council
DM/0129/26/FUL
North East Lincolnshire Council
Status
Pending Consideration
Change of use
Received
Not recorded
New homes
1
Full proposal
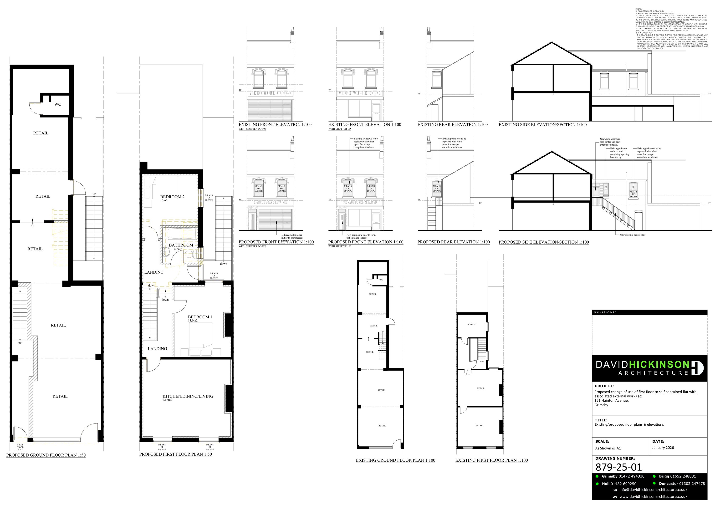
Change of use of first floor from retail to one self contained flat, installation of door to front elevation and external rear staircase, alterations to windows with associated works
Documents
Have your say
Your comment matters. Councils must consider every representation that raises material planning considerations.