← North East Lincolnshire Council

Status

Pending Consideration New housing
Received
Not recorded
New homes
1

Full proposal

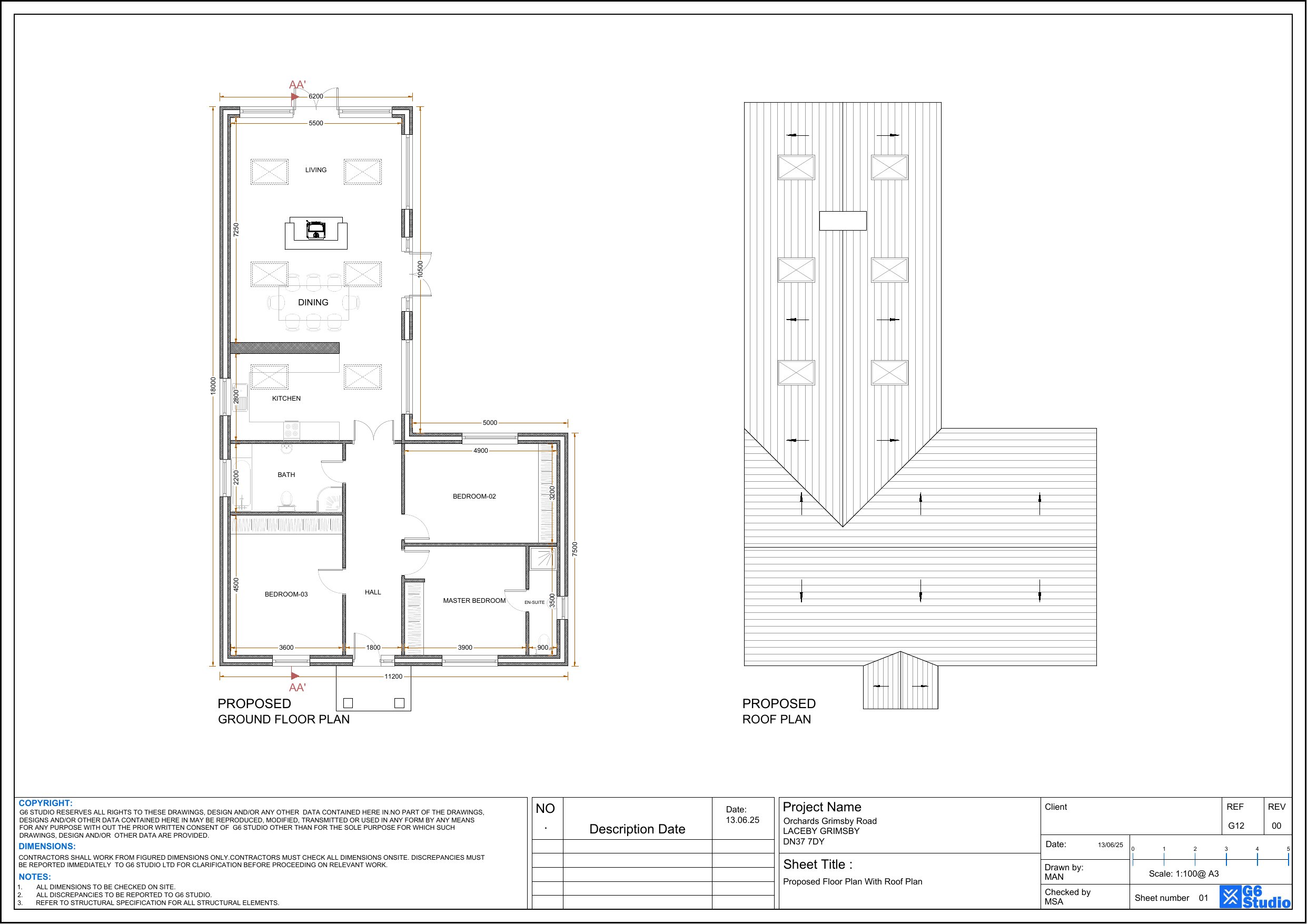
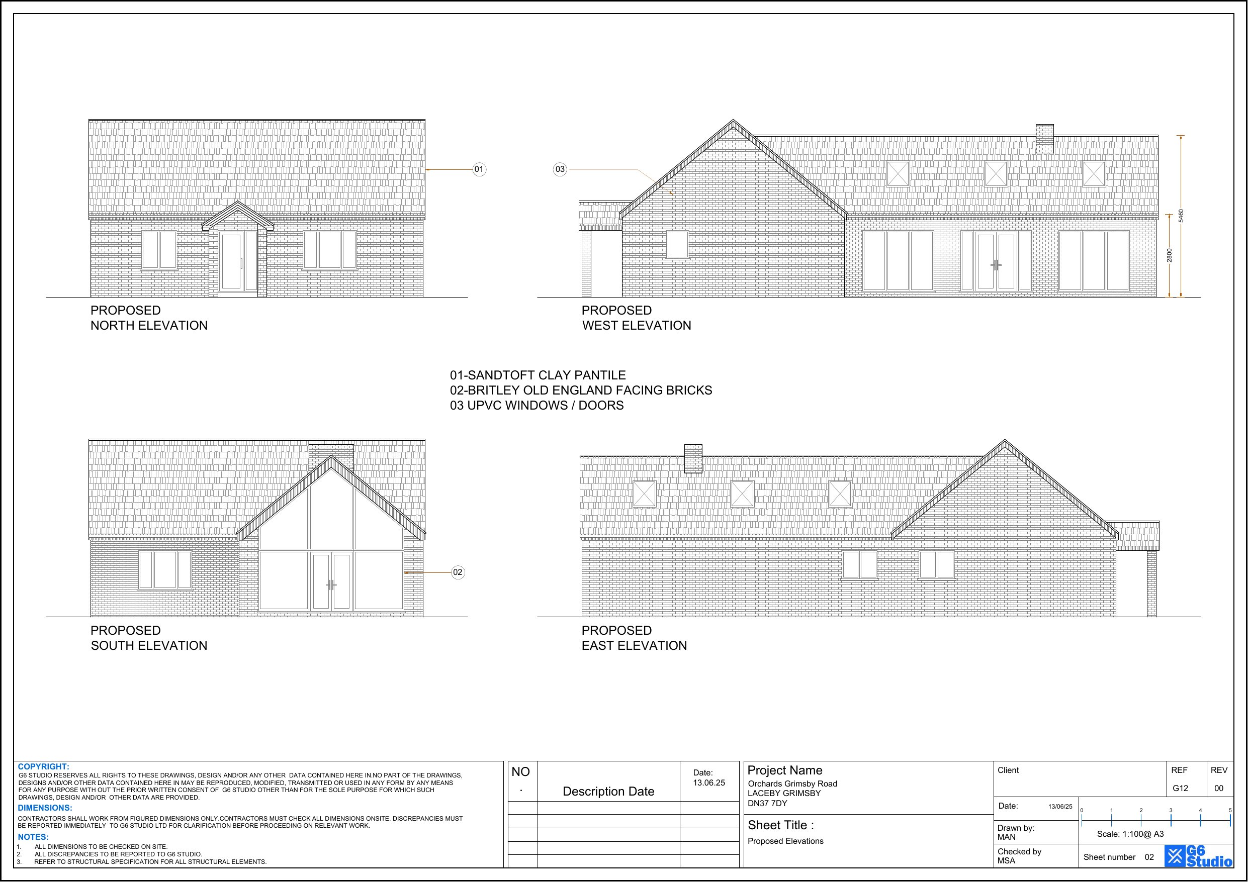
Erect one detached bungalow to the rear to include new access, driveway and landscaping with associated works

Documents

Application Form - No Details
Archived · Original link
Design & Access Statement
Archived · Original link
Consultee Comment - No Details
Archived · Original link
Consultee Comment - No Details
Archived · Original link
Consultee Comment - No Details
Archived · Original link
Plans - General
Archived · Original link
Existing Plans
Archived · Original link
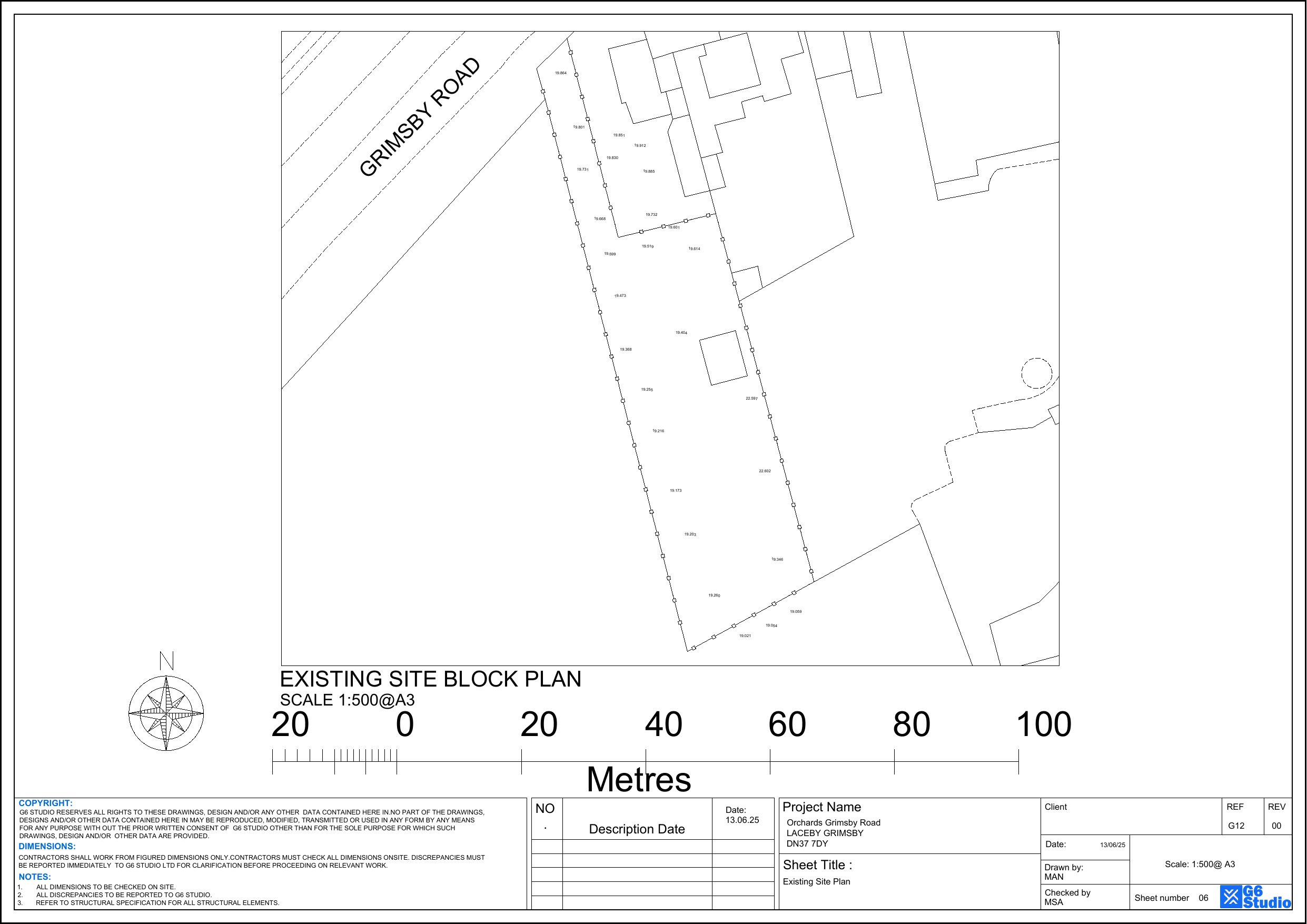
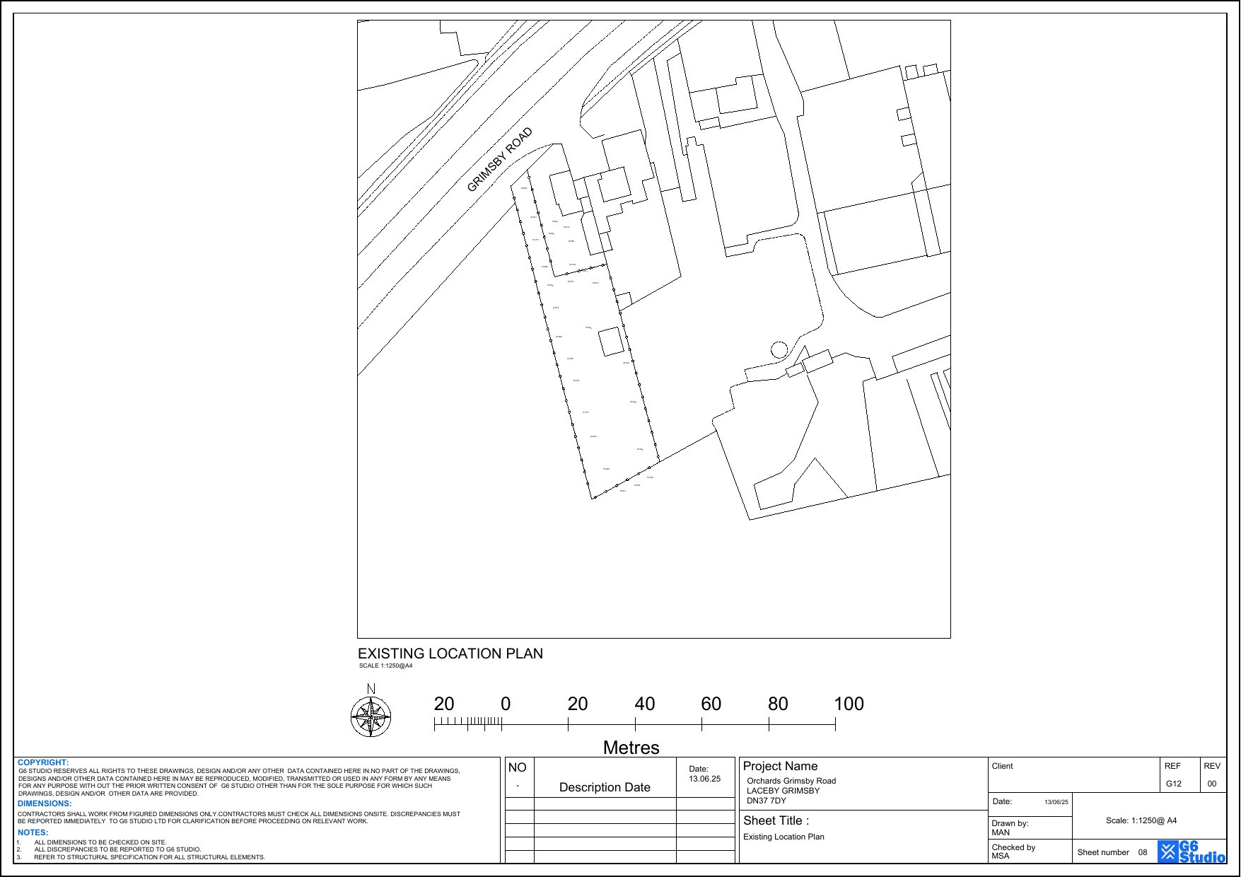
Site Location Plan
Archived · Original link
Consultee Comment - No Details
Archived · Original link
Consultee Comment - No Details
Archived · Original link
Block Plan
Archived · Original link
Proposed Plans
Archived · Original link
Proposed Plans
Archived · Original link
Plans & Elevations- Proposed
Archived · Original link
Proposed Plans
Archived · Original link
Site Location Plan
Archived · Original link
Public Notice
Archived · Original link
Public Notice
Archived · Original link
Neighbour Comment - No Details
Archived · Original link
Consultee Comment - No Details
Archived · Original link
Consultee Comment - No Details
Archived · Original link

Have your say

Your comment matters. Councils must consider every representation that raises material planning considerations.

Write a comment