Showing the most recent records stored for this authority (max 200).
Received
Never
Dwellings
n/a
Erection of two storey extension and associated alterations to form annexe.
Received
Never
Dwellings
n/a
Erection of 3 bay garage with accommodation in roof.
Received
Never
Dwellings
n/a
Proposed Rebuilding of an Existing Fire Damaged and subsequently Demolished Barn with Additional Extension
Received
Never
Dwellings
n/a
Removal of existing flat roof over annex and replacement of the provision of glass balustrading and steel access steps. Removal of existing window to bedroom 1 and replaced with doors opening inwards and provision of Juliet balcony.
Received
Never
Dwellings
n/a
Installation of timber garden studio.
Received
Never
Dwellings
n/a
Removal of garden shed and erection of garage. Brick wall to replace high level wooden fence upon part of the southeastern boundary.
Received
Never
Dwellings
n/a
Conversion and extension of two flats to 2no. two storey semi-detached dwellings.
Received
Never
Dwellings
n/a
Erection of 2no. wooden clad structures to be used for agricultural storage and a small farm shop. Proposed 200sqm of hardstanding extending/widening existing driveway (resubmission of RR/2024/555/P).
Received
Never
Dwellings
n/a
Proposed new dwelling (variation on design from approved application RR/2023/1876/P).
Received
Never
Dwellings
n/a
Alternative layouts to 3 Burnside and 1, 2 & 3 Craythorne House following approval of RR/2023/1949/PN3 and RR/2023/2466/P. (Part retrospective)
Received
Never
Dwellings
n/a
Proposed improvements to staff unit (Leeford Lodge) including reconstruction of roof with rear dormer to provide associated first floor living accommodation.
Received
Never
Dwellings
n/a
Proposed new roof including attic room and rooflights, alteration to fenestration, kitchen extension and detached garage
Received
Never
Dwellings
n/a
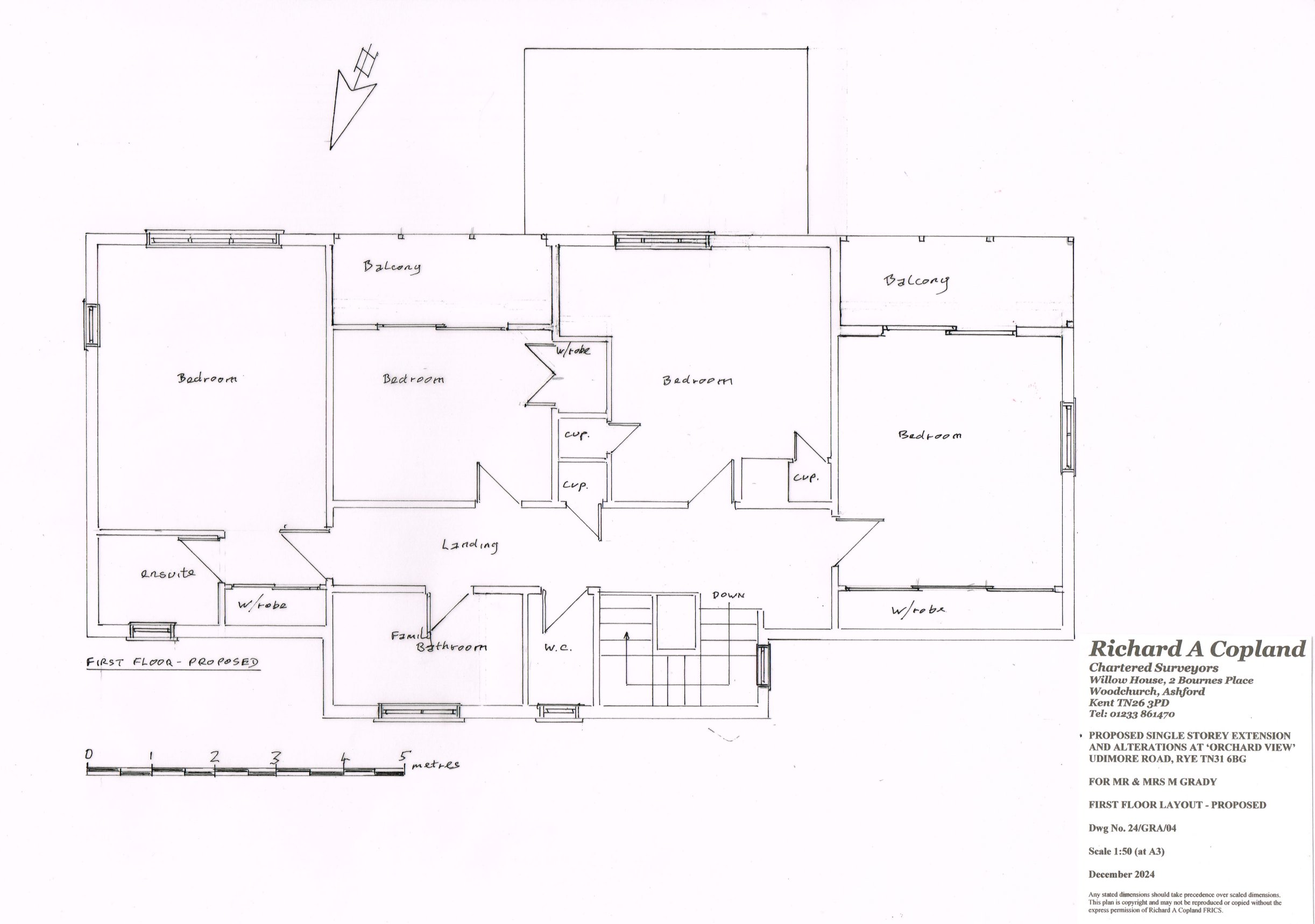
Reorganisation and refurbishment of ground and first floor levels of main house including replacement dormer along the South facing roof pitch and new external windows and doors throughout.
Received
Never
Dwellings
n/a
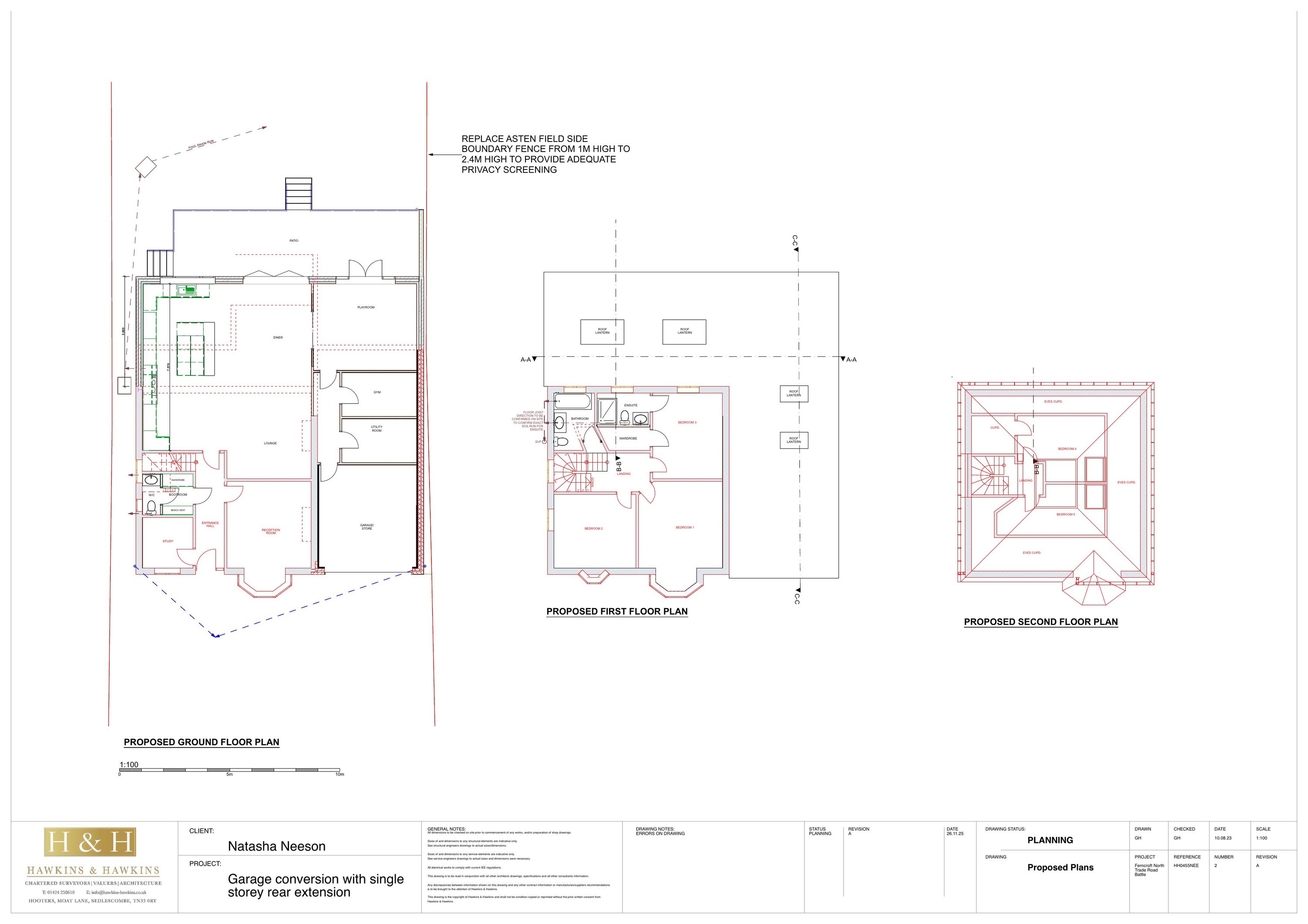
Demolition of modern rear lean-to porch and proposed rear extension incorporating internal alterations to a previously approved permission incorporating access into existing dwelling, formation of family bathroom and re-arrangement of window to...
Received
Never
Dwellings
n/a
Demolition of modern rear lean-to porch and proposed two-storey rear extension incorporating internal alterations to a previously approved permission incorporating access into existing dwelling, formation of family bathroom and re-arrangement of...
Received
Never
Dwellings
n/a
Erection of single storey front extension, porch and internal alterations.
Received
Never
Dwellings
n/a
Outline application for the proposed demolition of existing dwelling and erection of 3 new dwellings together with parking provision, with all matters reserved except layout.
Received
Never
Dwellings
n/a
Erection of building for processing and storage.
Received
Never
Dwellings
n/a
Conversion loft and erection of single storey rear extension
Received
Never
Dwellings
n/a
Demolition of existing bungalow. Erection of new dwelling, incorporating existing garage.
Received
Never
Dwellings
n/a
Installation of new dormer, erection of small infill extension at rear, and changes to external materials
Received
Never
Dwellings
n/a
Erection of single storey rear extension
Received
Never
Dwellings
n/a
Erection of single storey front extension, single storey side extension and internal layout alterations. (Alternative to planning permission RR/2024/421/P)
Received
Never
Dwellings
n/a
Retrospective change of use from agricultural to mix use agricultural and residential for 1 mobile home and 3 touring caravans for Traveller occupation
Received
Never
Dwellings
n/a
Demolition of existing open log store. Construction of new utility room
Received
Never
Dwellings
n/a
Demolition of existing open log store. Construction of new utility room.
Received
Never
Dwellings
n/a
Subdivision of ground floor dwelling to create two one-bedroom flats with associated gardens and parking.
Received
Never
Dwellings
n/a
Installation of external lights to serve dwellings (retrospective.)
Received
Never
Dwellings
n/a
Change of use of the existing 22 Holiday Park Homes to residential use
Received
Never
Dwellings
n/a
Change of use of agricultural buildings to storage and a shop unit selling wine produced from the site with associated works. Mixed use of three mobile homes for agricultural workers and holiday lets.
Received
Never
Dwellings
n/a
Replace front door; reinstate front loft, remove non-compliant stairs; convert rear loft and add new staircase.
Show full description
Like for like replacement front door. Reinstate unauthorised front loft conversion into loft space & removal of non-compliant staircase. Proposed loft conversion of rear loft space (to replace lost loft space at the front) & proposed new staircase...
Received
Never
Dwellings
n/a
Replace front door; reinstate front loft, remove non-compliant stairs; convert rear loft and add new staircase.
Show full description
Like for like replacement front door. Reinstate unauthorised front loft conversion into loft space & removal of non-compliant staircase. Proposed loft conversion of rear loft space (to replace lost loft space at the front) & proposed new staircase...
Received
Never
Dwellings
n/a
Construct one dwelling as alternative to previously approved scheme.
Show full description
Proposed construction of dwelling as alternative to dwelling approved by Appeal ref. APP/U1430/W/23/3323506 (RR/2022/2596/P)
Received
Never
Dwellings
n/a
Extension, new porch roof, convert attached workshop, add pitched roof and internal alterations.
Show full description
Erection of extension and new roof to existing porch, conversion of existing attached workshop and new pitched roof above and associated internal alterations.
Received
Never
Dwellings
n/a
Erection of extensions and associated alterations to existing dwelling.
Show full description
Erection of extensions and alterations.
Received
Never
Dwellings
n/a
Single-storey rear extension to dwelling.
Show full description
Erection of single storey rear extension.
Received
Never
Dwellings
n/a
Single-storey rear extension to dwelling.
Show full description
Erection of single storey rear extension.
Received
Never
Dwellings
n/a
Erection of detached annexe to provide accommodation for a family member.
Show full description
Erection of detached annexe for family member
Received
Never
Dwellings
n/a
Demolition of existing house and erection of a new dwelling with associated works.
Show full description
Demolition of existing dwelling and erection of new dwelling with associated works
Received
Never
Dwellings
n/a
Demolition of shed and construction of a garage and garden machinery store.
Show full description
Demolition of existing shed and erection of garage/garden machinery store.
Received
Never
Dwellings
n/a
Replacement of windows to front elevation and replacement of rear, side window. Repairs to weatherboarding and shutters to front facade of the property
Received
Never
Dwellings
n/a
Lawful Development Certificate for the Existing use of former laundry room as a self-contained ground floor flat.
Received
Never
Dwellings
n/a
Lawful Development Certificate for the Existing use of former boiler room as a self-contained ground floor flat.
Received
Never
Dwellings
n/a
Proposed new rear window and doors and internal works
Received
Never
Dwellings
n/a
Lawful Development Certificate for the Existing use of former reception room as a self-contained ground floor flat.
Received
Never
Dwellings
n/a
Proposed single storey annex extension with vaulted roof
Received
Never
Dwellings
n/a
Erection of dwelling.
Received
Never
Dwellings
n/a
Erection of single storey side extension to dwelling.
Received
Never
Dwellings
n/a
Change of use of land with a free draining gravel drive to provide safe off-street parking for the residents
Received
Never
Dwellings
n/a
Erection of an agricultural building.
Received
Never
Dwellings
n/a
Erection of dwelling.
Received
Never
Dwellings
n/a
Single storey rear 2.1m extension with balcony at first floor level; conversion of garage into gym; replace boundary fence and gate with new.
Received
Never
Dwellings
n/a
Partial demolition of single storey side extension and erection of two storey side extension
Received
Never
Dwellings
n/a
Erection of four dwellings, together with associated access, car parking, landscaping and biodiversity enhancements.
Received
Never
Dwellings
n/a
Installation of a singular, ground-mounted, 20-panel PV array to land adjoining Ewhurst House
Received
Never
Dwellings
n/a
Installation of a singular, ground-mounted, 20-panel PV array to land adjoining Ewhurst House
Received
Never
Dwellings
n/a
Erection of a New Cattle Housing Barn.
Received
Never
Dwellings
n/a
Outline application for the proposed erection of self-build dwelling with all matters reserved except access, layout and scale.
Received
Never
Dwellings
n/a
Proposed erection of a single storey rear extension with associated landscaping including the removal of a non-original rear porch and the erection of raised patio / terrace area with steps down to the existing yard.
Received
Never
Dwellings
n/a
Construction of a 64 bed care home (use class C2) over 2 storeys to include landscaping, access, and car parking.
Received
Never
Dwellings
n/a
Demolition of existing attached tractor shed and hay barn, and erection of new detached tractor and hay storage barn.
Received
Never
Dwellings
n/a
Conversion of redundant barn to create residential dwelling, together with associated car parking, garden and landscaping
Received
Never
Dwellings
n/a
Proposed single-storey side and rear extension, internal and external alterations including demolition of existing extension and garage.
Received
Never
Dwellings
n/a
Proposed erection of dwelling on site of existing tennis court and served by existing access.
Received
Never
Dwellings
n/a
Erection of two storey detached dwelling.
Received
Never
Dwellings
n/a
Use of building as holiday let (retrospective), together with associated car parking
Received
Never
Dwellings
n/a
Two storey sitting room extension with bedroom over to single family dwelling house including associated external works. Changes to fenestration and external materials.
Received
Never
Dwellings
n/a
Proposed extensions and alterations to modernise and transform the dwelling into a contemporary and energy efficient home
Received
Never
Dwellings
n/a
Outline planning permission for Class B8 development with ancillary office space; servicing yards, van and car parking areas; new vehicular access from A22. Highway alterations to bay tree lane to provide vehicular, cycle/ pedestrian access....
Received
Never
Dwellings
n/a
Proposed alterations and conversion of detached garage building to create overspill living accommodation.
Received
Never
Dwellings
n/a
Demolition of existing dwelling and erection of new dwelling.
Received
Never
Dwellings
n/a
Installation of air source heat pumps within acoustic enclosure and erection of associated plant room.
Received
Never
Dwellings
n/a
Erection of replacement walkway.
Received
Never
Dwellings
n/a
Reconfiguration of existing staircase and adjacent areas pursuant to LBC approval ref. RR/2022/987/L.
Received
Never
Dwellings
n/a
Erection of extension to the Pett Level Independent Rescue Boat building.
Received
Never
Dwellings
0
Rear single-storey extension and first-floor French doors/Juliet balcony to rear elevation.
Show full description
Proposed Rear Single Storey Extension & First Floor French Doors/Juliet Balcony to Rear Elevation
Received
Never
Dwellings
0
Single-storey side/rear extension, front porch and internal alterations; garage door relocated.
Show full description
Erection of single storey side/rear extension and associated internal alterations. Erection of front porch and relocation of garage service door.
Received
Never
Dwellings
0
Erection of two-storey barn and storage building with pitched roof.
Show full description
Erection of two storey barn and storage building with a pitched roof.
Received
Never
Dwellings
0
Convert garage/storage to home office with attached open-sided covered patio.
Show full description
Renovation of existing garage / storage and conversion to home office, with attached open-sided covered patio.
Received
Never
Dwellings
0
Two-storey side extension, new porch and internal alterations.
Show full description
Proposed two storey side extension, porch & internal alterations.
Received
Never
Dwellings
1
Reserved matters for erection of a dwelling replacing lawful caravan and redundant barn.
Show full description
Reserved matters relating to access, appearance, landscaping, layout and scale pursuant to outline permission RR/2024/50/P for the erection of a residential dwellinghouse to replace lawful caravan and redundant barn with associated change of use...
Received
Never
Dwellings
0
Replace lean-to and side extension, new vehicular access, terrace and garden home office building.
Show full description
Replacement of lean-to and side extension with new single-storey extension. New vehicular access and construction of terrace and home office building.
Received
Never
Dwellings
0
Replacement of lean-to and side extension, new vehicular access, terrace and home office building (planning application).
Show full description
Replacement of lean-to and side extension with new single-storey extension. New vehicular access and construction of terrace and home office building.
Received
Never
Dwellings
1
Change of use of Class E building to a residential dwelling.
Show full description
Change of use of Class E building to residential.
Received
Never
Dwellings
29
Outline application for 29 dwellings including access and layout; other matters reserved.
Show full description
Outline application for 29 dwellings (Use Class C3), including access and layout. All other matters reserved. Demolition of No. 6 Tillingham View
Received
Never
Dwellings
0
Replace side extension with two‑storey side and single‑storey elements, enlarged porch and external remodelling.
Show full description
Demolish existing side (north-east) extension & replace with two-storey side extension with adjoining single-storey element, enlarged porch to front elevation, updated external finishes to the existing property (walls, roof & door/windows) & new...
Received
Never
Dwellings
0
Retrospective change of use of agricultural building to non‑agricultural B8 storage.
Show full description
Change of use from an agricultural building to non-agricultural storage use (B8). (Retrospective)
Received
Never
Dwellings
0
Single‑storey rear and front porch extensions, new first floor and roof, house remodelling.
Show full description
Proposed single storey rear extension, front porch extension, removal of existing first floor roof structure, construction of new first floor and roof associated alterations/house remodelling (previously approved under RR/2021/284/P). Proposed...
Received
Never
Dwellings
0
Single‑storey rear 2.1m extension with first‑floor balcony and garage conversion to gym.
Show full description
Single storey rear 2.1m extension with balcony at first floor level conversion of garage into gym. Replace boundary fence and gate with new.
Received
Never
Dwellings
1
Proposed erection of a dwelling served by existing access (Permission in Principle).
Show full description
Proposed erection of dwelling served by existing access.
Received
Never
Dwellings
0
Erection of an annex for a family member to serve an approved dwelling.
Show full description
Erection of annexe for family member to previously approved dwelling at Anchor Cottage (Plot 2).
Received
Never
Dwellings
0
Erection of a lean‑to greenhouse adjacent to the garage.
Show full description
Erection of lean-to greenhouse adjacent to garage.
Received
Never
Dwellings
0
Erection of a detached annex with garden access ramp (ancillary accommodation).
Show full description
Erection of detached annex and garden access ramp.
Received
Never
Dwellings
0
Replacement of windows and doors and roof windows to existing dwelling.
Show full description
Replacement of existing windows to dwellinghouse with new vacuum glazed timber windows to front elevation and slim double glazed units to the side and rear elevations. Replacement of aluminium framed doors and roof windows within existing rear...
Received
Never
Dwellings
0
Erection of front entrance porch, single‑storey rear extension and decking area.
Show full description
Erection of front entrance porch, single storey rear extension and decking area.
Received
Never
Dwellings
0
Erection of a greenhouse (domestic garden structure).
Show full description
Erection of greenhouse.
Received
Never
Dwellings
1
Demolish shop and build mixed‑use building with commercial unit and one residential dwelling.
Show full description
Demolition of shop and construction of a mixed use building to contain a commercial unit and residential dwelling. Parking, landscaping, drainage and other associated works. Use of access route to A21.
Received
Never
Dwellings
0
Single‑storey rear extension with storage cellar below and associated side access steps.
Show full description
Proposed alterations to a semi-detached house to include a single storey rear extension with storage cellar below and side door access with associated steps.
Received
Never
Dwellings
0
Garage conversion, new single‑storey garage/store and widened vehicular access.
Show full description
Proposed garage conversion and associated alterations. Construction of single storey garage/store. Widening of existing vehicular access.
Received
Never
Dwellings
1
Retrospective change of use of building to a holiday let with associated parking.
Show full description
Use of building as holiday let (retrospective), together with associated car parking
Received
Never
Dwellings
1
Convert first floor to self‑contained two‑bed flat; alter layouts of other flats.
Show full description
Conversion of 1st floor to self-contained 2 bed flat and layout alterations to the existing ground and second floor flats. Installation of new French doors to the East elevation on the ground floor and new window to the West elevation at second...
Received
Never
Dwellings
0
Conversion of integral garage, demolition of detached garage and installation of roof‑mounted PV panels.
Show full description
Conversion of existing integral garage, demolition of existing detached garage and installation of roof mounted PV panels.
Received
Never
Dwellings
0
Demolition of existing buildings on site.
Show full description
Demolition of buildings
Received
Never
Dwellings
2
Erection of two dwellings with carports, parking, access, refuse/cycle storage and landscaping.
Show full description
Proposed erection of 2no. dwellings with associated single-storey carports and parking provision with access provided onto Crockers Lane. Provision of refuse and cycle storage. Proposed hard and soft landscape scheme and ecological enhancements.
Received
Never
Dwellings
0
Alter roof with pitched dormer, add front balcony doors and rear window, replace chimney with twin flue.
Show full description
Addition of pitched roof to existing flat roof Dormer with new Balcony Doors to front & balustrade, new window to rear; removal of existing chimney at first floor level & replacement with twin walled flue; reduction in width of front facing ground...
Received
Never
Dwellings
0
Installation of a new balcony.
Show full description
Proposed balcony.
Received
Never
Dwellings
0
Deed of Variation regarding affordable housing provision.
Show full description
Proposed Deed of Variation in respect of Affordable Housing provision
Received
Never
Dwellings
3
Proposed three dwellings with parking and relocated existing parking for visibility splay.
Show full description
Proposed 3 No. dwellings with parking and relocation of existing parking from the front of the site in order to accommodate visibility splay to the site entrance.
Received
Never
Dwellings
0
Single-storey rear extension providing additional ground-floor living accommodation.
Show full description
Construction of a single-storey rear extension to provide additional living accommodation at ground floor level.
Received
Never
Dwellings
0
Single-storey rear extension.
Show full description
Construction of single storey rear extension.
Received
Never
Dwellings
1
Demolish existing dwelling and erect one self-build house with landscaping and ecological enhancements.
Show full description
Demolition of existing dwelling. Erection of self-build dwelling, together with associated landscaping and ecological enhancements.
Received
Never
Dwellings
0
Change of use and conversion of stables and annexe to holiday lets and home office.
Show full description
Dairy building; Change of use and conversion of the mid-section of the existing stables into a holiday let/annexe and home office, including internal and external alterations. Annexe building; change of use to a second holiday let, including...
Received
Never
Dwellings
65
Outline for up to 65 dwellings with open space, landscaping, SuDS and access.
Show full description
Outline Permission for the erection of up to 65 dwellings (C3), public open space, landscaping and sustainable drainage system (SuDS) and vehicular access. All matters reserved except for means of access.
Received
Never
Dwellings
2
Outline for up to two wheelchair-accessible self/custom-build dwellings; access reserved.
Show full description
Outline Application for the erection of up to two wheelchair accessible self/custom build dwellings with all matters reserved except for access.
Received
Never
Dwellings
99
Outline for up to 99 dwellings including affordable homes, open space, SuDS and access.
Show full description
Outline planning application for the erection of up to 99 dwellings including affordable housing, with public open space, landscaping, sustainable drainage system (SuDS) and vehicular access. All matters reserved except for means of access.
Received
Never
Dwellings
0
Front and rear single-storey extensions with rear balcony.
Show full description
Erection of front and rear single storey extensions and balcony to rear.
Received
Never
Dwellings
4
Erection of 3 to 4 new dwellings (up to four houses).
Show full description
Erection of 3 to 4 dwellings.
Received
Never
Dwellings
0
Repair works to the historic Long Barn (building fabric conservation).
Show full description
Works to repair the historic Long Barn
Received
Never
Dwellings
0
Demolish existing single rear extension and construct new single-storey rear extension.
Show full description
Proposed demolition of existing single rear extension and construction of new single storey rear extension.
Received
Never
Dwellings
0
Demolish rear addition and erect single-storey extension with decking.
Show full description
Demolition of existing rear addition and erection of single storey extension and decking.
Received
Never
Dwellings
0
Retrospective change of use of building to holiday let with associated car parking.
Show full description
Use of building as holiday let (retrospective), together with associated car parking
Received
Never
Dwellings
0
Erect rear garage with associated landscaping.
Show full description
Erection of garage to rear with associated landscaping.
Received
Never
Dwellings
0
Remove existing roof and construct new first-floor bedroom above existing ground floor; roof to match existing.
Show full description
Demolish existing roof. Proposed new first floor bedroom above the existing ground floor construction. Roof to match existing
Received
Never
Dwellings
0
Convert garage to ancillary residential annexe and erect a carport.
Show full description
Conversion of garage to annexe for ancillary residential use and erection of carport
Received
Never
Dwellings
0
Convert garage to ancillary residential annexe and erect a carport.
Show full description
Conversion of garage to annexe for ancillary residential use and erection of carport
Received
Never
Dwellings
2
Demolish derelict cottage and pole barn; construct two dwellings and extend residential curtilage.
Show full description
Demolition of derelict cottage and pole barn, construction of two dwellings and extension of residential curtilage for the two existing dwellings.
Received
Never
Dwellings
0
Erection of a front extension to the property.
Show full description
Erection of extension to the front of the property.
Received
Never
Dwellings
0
Stabilisation works and superstructure repairs to listed building following subsidence damage.
Show full description
Stabilisation works and superstructure repairs to listed building following subsidence damage.
Received
Never
Dwellings
0
Erection of an agricultural-style storage building.
Show full description
Erection of an agricultural style storage building.
Received
Never
Dwellings
0
Removal of hedge and erection of new boundary fence adjacent to highway and footpath.
Show full description
Removal of hedge and erection of new boundary fence to north of property, closer to the edge of the property boundary, highway and footpath
Received
Never
Dwellings
0
Erection of wooden structure on farm site to be used as classroom and office.
Show full description
Erection of wooden structure on farm site to use as a classroom and office.
Received
Never
Dwellings
0
Demolish conservatories and construct single-storey side/rear extension with alterations.
Show full description
Proposed demolition of existing conservatories & construction of single storey side/ rear extension & associated alterations.
Received
Never
Dwellings
0
Demolition of cattle building and construction of equestrian building (retrospective).
Show full description
Demolition of cattle building and construction of equestrian building. (Retrospective)
Received
Never
Dwellings
0
Replace existing extensions with single-storey and first-floor extensions, porch, balcony, fenestration changes.
Show full description
Replacement of existing extensions. Single storey south facing extension and first floor extension. Creation of a porch, balcony and chimney. Fenestration changes.
Received
Never
Dwellings
2
Erection of two three-bedroom single-storey detached bungalows with access, parking and stores.
Show full description
Erection of 2x three bed, one storey detached dwelling bungalow , access drive, parking & turning area, refuse and cycle storage provisions, and private amenity spaces.
Received
Never
Dwellings
0
Oak tree crown and underside reduction (tree works).
Show full description
T1 - Oak - Reduction of crown & underside.
Received
Never
Dwellings
1
Outline application to form a plot for one dwelling.
Show full description
Outline Application for the formation of plot for one dwelling.
Received
Never
Dwellings
0
Installation of a ground-mounted 20-panel photovoltaic (PV) array.
Show full description
Installation of a singular, ground-mounted, 20-panel PV array
Received
Never
Dwellings
0
Installation of a single ground-mounted 20-panel photovoltaic (PV) array.
Show full description
Installation of a singular, ground-mounted, 20-panel PV array
Received
Never
Dwellings
0
Single storey side and rear extensions and erection of detached garage.
Show full description
Single storey side and rear extensions and erection of detached garage.
Received
Never
Dwellings
0
New bin store, convert existing bin store to refrigeration units, and landscape improvements.
Show full description
Construction of a new bin store, and conversion of existing bin store into space for refrigeration units, with associated landscape improvements.
Received
Never
Dwellings
0
Replacement boundary fence and retrospective generator shed construction.
Show full description
Proposed replacement boundary fence and construction of generator shed (retrospective)
Received
Never
Dwellings
2
Change of use from guesthouse (C1) to two Class C3 dwellinghouses.
Show full description
Change of use from Class C1 guesthouse to 2no. Class C3 dwellinghouses.
Received
Never
Dwellings
1
Outline for single-storey wheelchair accessible dwelling and creation of greenspace.
Show full description
Outline application for proposed construction of single storey, wheelchair accessible dwelling, creation of greenspace area.
Received
Never
Dwellings
16
Add one storey to provide 16 flats with parking and waste storage.
Show full description
Application for prior approval for the proposed construction of one additional storey to provide 16 additional residential flats with associated parking and waste storage areas.
Received
Never
Dwellings
0
Erection of first-floor side extension.
Show full description
Erection of first floor side extension
Received
Never
Dwellings
0
Demolish existing building and construct replacement agricultural building for wider land.
Show full description
Demolition of existing building and construction of replacement agricultural building to serve the wider land
Received
Never
Dwellings
0
Extend boathouse, replace fishing building; convert to 7 one-bed and 4 two-bed tourist units with cafe.
Show full description
Extensions and alterations to the boat house bistro, replacement of the adjacent fishing facility building and change of use to form 7 X 1 bed and 4 X 2 bed tourist units, creation of a cafe with terrace, with water sport facilities retained.
Received
Never
Dwellings
0
Modify S106 affordable housing provisions for planning permission RR/2022/1526/P.
Show full description
Application to modify the S106 agreement associated with planning permission RR/2022/1526/P to amend the affordable housing provision.
Received
Never
Dwellings
0
First-floor rear extension and erection of a second-floor extension.
Show full description
Erection of first floor rear extension and erection of second floor extension.
Received
Never
Dwellings
0
Alter garage to form loft home office with external staircase and rooflights.
Show full description
Alterations to garage approved under RR/2023/716/P including formation of loft room to provide home office with external staircase, and roof changes including addition of rooflights.
Received
Never
Dwellings
0
Construct 99.9MW battery energy storage system with substation, PCS, containers, fencing, access, CCTV.
Show full description
Erection of a 99.9MW Battery Energy Storage System (BESS) comprising primary substation, BESS units, power conversion system units, telecommunications tower, storage containers, security fencing and CCTV, access, internal tracks, and associated...
Received
Never
Dwellings
1
Erect replacement dwelling for existing mobile home and adjust residential curtilage.
Show full description
Erection of a dwelling to replace mobile home and adjustment to residential curtilage.
Received
Never
Dwellings
4
Outline demolition and construction of 4 dwellings with parking, gardens, and access.
Show full description
Outline application with all matters reserved except access for the demolition of existing buildings/property and construction of 4 dwellings with associated parking, gardens and access points to Lower Waites Lane.
Received
Never
Dwellings
0
Construct concrete base and erect wooden home office in front garden.
Show full description
Construction of a concrete base and erection of a wooden home office in the front garden.
Received
Never
Dwellings
0
Single storey ground-floor rear extension and first-floor extension; replace flat roof with pitched.
Show full description
Erection of single storey ground floor rear extension and first floor extension above the existing dwelling, replacing a portion of flat roof with a pitched roof.
Received
Never
Dwellings
0
Amendment to permission: add upper storey, north single storey extension and vary fenestration.
Show full description
Amendment to extant approval (RR/2023/863/P) for a single storey extension to the north flank, the addition of an upper storey and resulting variations to the fenestration.
Received
Never
Dwellings
1
Demolish garage and workshop; erect one dwelling with garage and relocate access.
Show full description
Demolition of garage and workshop and erection of a dwelling, garage and relocation of access.
Received
Never
Dwellings
0
Remove C21 sunroom and soil pipe; reinstate terrace, balustrade and first-floor rooms.
Show full description
Removal of soil pipe to South elevation. Removal of C21 sun room to West elevation, fitting of verandah and French doors, reinstatement of terrace and balustrade. Reinstatement of first floor rooms to South including removal of modern partitions....
Received
Never
Dwellings
0
Remove sunroom and soil pipe; fit verandah and French doors; reinstate terrace and rooms.
Show full description
Removal of soil pipe to South elevation. Removal of C21 sun room to West elevation, fitting of verandah and French doors, reinstatement of terrace and balustrade. Reinstatement of first floor rooms to South including removal of modern partitions....
Received
Never
Dwellings
0
Loft conversion with gable ends and dormer, rear rooflights and single storey rear extension.
Show full description
Proposed loft conversion with hipped roof to be replaced with gable end roof on either side. Erection of dormer to the front, rooflight windows the rear. Single storey rear extension with flat roof and changes to external doors/windows.
Received
Never
Dwellings
0
Construct concrete base and erect wooden home office in front garden.
Show full description
Construction of a concrete base and erection of a wooden home office in the front garden.
Received
Never
Dwellings
0
Extend existing stable block to provide a wet room.
Show full description
Proposed extension to existing stable block to provide wet room
Received
Never
Dwellings
1
Demolish existing cottage and construct a residential log cabin on the same site.
Show full description
Demolition of existing cottage and construction of a residential log cabin on the same site.
Received
Never
Dwellings
0
Construct a biosecure aviary for injured wildlife.
Show full description
Construction of a new bio secure aviary for injured wildlife.
Received
Never
Dwellings
2
Build two four‑bed dwellings with vehicular access, parking and landscaping.
Show full description
Proposed 2x, four bed dwellings with new vehicular access, associated parking & landscaping.
Received
Never
Dwellings
0
Replace porch canopy roof boarding with clay plain tiles and leadwork.
Show full description
Replacement of porch canopy roof boarded covering with clay plain tiles and leadwork to improve weathering.
Received
Never
Dwellings
1
Demolish part of dwelling and erect detached infill two‑bed bungalow; alter existing house.
Show full description
Demolition of part of existing dwelling and erection of detached infill 2-bed bungalow. Alterations to Villa Flair to also include replacement front bedroom; replacement roof; raising of ridgeline and white timber cladding.
Received
Never
Dwellings
0
Phased restoration, refurbishment, alterations and extension to existing pavilion building.
Show full description
Phased internal and external restoration, refurbishment and alteration works to the existing building, including internal and external demolition works, reconfiguration works, an extension to the south west of the pavilion building, associated...
Received
Never
Dwellings
0
Listed‑building consent for phased restoration, refurbishment and extension of the pavilion building.
Show full description
Phased internal and external restoration, refurbishment and alteration works to the existing building, including internal and external demolition works, reconfiguration works, an extension to the south west of the pavilion building, associated...
Received
Never
Dwellings
0
Construction of a new side porch to the dwelling.
Show full description
Construction of a new porch to the side of the dwelling.
Received
Never
Dwellings
0
Erection of a rear garage with associated landscaping.
Show full description
Erection of garage to rear with associated landscaping.
Received
Never
Dwellings
3
Convert former care home into three self-contained two-bedroom flats with extensions.
Show full description
Change of use of a former care home to 3no. self-contained flats comprising 3 no.2 bed units along with the creation of a dormer and two storey rear extension.
Received
Never
Dwellings
0
Install dropped kerb and shallow-dig plastic drive creating a driveway crossover.
Show full description
Proposed dropped kerb and construction of shallow dig plastic drive allowing crossover to driveway.
Received
Never
Dwellings
0
Retention of dormer, balcony and single-storey extension forming cycle store and balcony to staff accommodation.
Show full description
Variation of staff accommodation approved under RR/2022/2803/P for the retention of additional dormer and balcony. Retention of single storey extension to form cycle store and balcony on the main building.
Received
Never
Dwellings
2
Outline permission (access only) for erection of two self-build/custom-build dwellings.
Show full description
Outline application with all matters reserved except access for the erection of 2 self-build / custom build dwellings and ancillary works
Received
Never
Dwellings
1
Reserved matters for erection of a replacement residential dwellinghouse to replace caravan and redundant barn.
Show full description
Reserved Matters relating to details of access, appearance, landscaping, layout and scale pursuant to outline permission RR/2024/50/P for the erection of a residential dwellinghouse to replace a lawful caravan and redundant barn with associated...
Received
Never
Dwellings
0
Restore fire-damaged dwelling with partial demolition, extension, porch and new roof arrangement.
Show full description
Restoration of existing fire damaged dwelling including alterations, partial demolition, extension, porch and new roof arrangement.
Received
Never
Dwellings
0
Extension and renovation of semi-detached bungalow with new gable, dormers, roof finish and cladding.
Show full description
Extension and renovation of an existing semi-detached bungalow. Including a new gable and dormers to roof. New roof finish and external cladding.
Received
Never
Dwellings
0
Internal reconfiguration of cottage and garage to provide home office/storage with associated external works.
Show full description
Internal removal and reconfiguration of modern partitions at ground and first floor of cottage (including removal of chimney). Internal reconfiguration of first floor of garage to provide a home office/storage. External works to cottage to provide...
Received
Never
Dwellings
0
Internal reconfiguration of cottage and garage to provide home office/storage with associated external works.
Show full description
Internal removal and reconfiguration of modern partitions at ground and first floor of cottage (including removal of chimney). Internal reconfiguration of first floor of garage to provide a home office/storage. External works to cottage to provide...
Received
Never
Dwellings
0
Amendments to listed hotel and pavilion: external changes, reposition reception, improve guest and back-of-house facilities.
Show full description
Amendments to application RR/2024/1596/L to include external changes and alterations to hotel (grade II listed) and adjoining pavilion including the repositioning of the reception, improvements to guest and back of house facilities, improved...
Received
Never
Dwellings
0
Demolition of existing garage/showroom sales building and replacement with a new building.
Show full description
Demolition of existing garage/showroom sales building. Replacement with new.
Received
Never
Dwellings
0
Single-storey rear extension, side roof extension, internal alterations and replacement of flat roofs and gutters.
Show full description
Erection of single-storey extension and extension to side roof at rear, internal alterations, replacement of existing flat roof coverings and replacement gutters
Received
Never
Dwellings
0
Single-storey rear extension, side roof extension, internal alterations and replacement of flat roofs and gutters.
Show full description
Erection of single-storey extension and extension to side roof at rear, internal alterations, replacement of existing flat roof coverings and replacement gutters
Received
Never
Dwellings
0
Demolish existing workshop and erect an oak-framed workshop/storage building.
Show full description
Demolish existing workshop and erection of oak framed workshop/storage.
Received
Never
Dwellings
1
Subdivide existing dwelling into a 3/4-bedroom house and a one-bedroom single-storey dwelling with parking.
Show full description
Alternative scheme to RR/2022/2257/P - For subdivision of existing dwelling to create 3/4 bedroom dwelling & 1 bed single storey dwelling with parking.
Received
Never
Dwellings
0
Change of use of land to provide additional ancillary garden associated with approved outline permission.
Show full description
Change of use of land to additional garden ancillary to outline planning permission RR/2023/2503/P
Received
Never
Dwellings
0
Tree works: reductions, coppicing and felling of ash and sweet chestnut specimens.
Show full description
T-2168 - Ash - Reduce by 2m T-2169 - Ash - Reduce by 4m T-2170 & T-2171 - Sweet Chestnut - Fell T-2172, T-2173 & T-2174 - Sweet Chestnut - Re-coppice all T2175 - Ash - Fell
Received
Never
Dwellings
6
Proposed residential development of six to nine dwellings.
Show full description
Proposed housing development 6-9 dwellings
Received
Never
Dwellings
6
Outline application for six dwellings with associated infrastructure, all matters reserved except access.
Show full description
Outline application for 6 dwellings and associated infrastructure, with all matters reserved except access.
Received
Never
Dwellings
n/a
Erection of a post and panel free-standing oak sign.
Show full description
Erection of post & panel free standing oak sign.
Received
Never
Dwellings
n/a
Erection of a post and panel free-standing sign.
Show full description
Erection of post & panel free-standing sign.
Received
Never
Dwellings
n/a
Single storey rear extension and new loft door.
Show full description
Single storey rear extension and new loft door.
Received
Never
Dwellings
n/a
Demolition and erection of a two-storey dwelling with detached rear garage.
Show full description
Demolition of existing building and erection of two storey dwelling with detached garage to the rear.
Received
Never
Dwellings
n/a
Demolition of double flat roof garages and erection of a two-storey two-bedroom dwelling.
Show full description
Demolition of double flat roof garages & erection of two storey 2 bed dwelling.
Received
Never
Dwellings
n/a
Certificate of existing use for static home fixed to ground used as a dwelling for four years.
Show full description
Application for a certificate of existing use/development for a static home with extension fixed to the ground, that has been used as a dwelling house continuously for four years.
Received
Never
Dwellings
n/a
Creation of overflow car park and erection of cycle and bin store with landscaping.
Show full description
Creation of an overflow car park and the erection of cycle and bin store with associated landscaping and works.
Received
Never
Dwellings
n/a
Extension to existing workshop and installation of photovoltaic panels.
Show full description
Proposed workshop extension & pv panels.
Received
Never
Dwellings
n/a
Demolish existing studio and erect new annexe with attached log store.
Show full description
Demolition of existing studio building and erection of new annexe with log store