← Rother District Council

Status

Pending House extension
Received
Not recorded
New homes
0

Summary

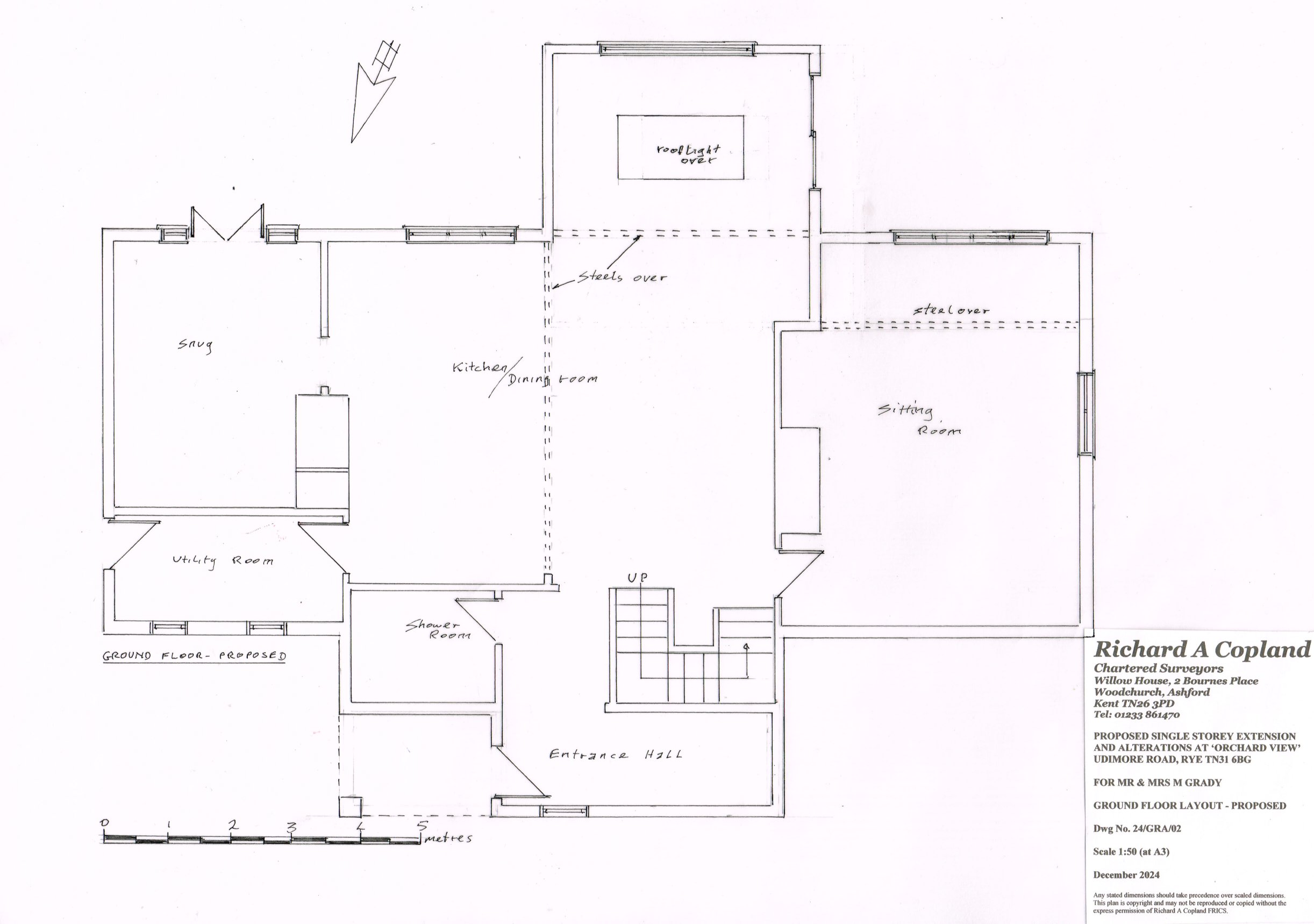
Front and rear single-storey extensions with rear balcony.

Full proposal

Erection of front and rear single storey extensions and balcony to rear.

Documents

Amended Application Form
Planning Document Public
Not yet archived · Original link
Correspondence In - Agent/Applicant
Planning Document Public
Not yet archived · Original link
Decision Notice
Planning Document Public
Not yet archived · Original link
Existing & Proposed Elevations
Planning Document Public
Not yet archived · Original link
Existing & Proposed Elevations
Planning Document Public
Not yet archived · Original link
Existing Floor Plans
Planning Document Public
Not yet archived · Original link
Existing Floor Plans
Planning Document Public
Not yet archived · Original link
Proposed Elevations
Planning Document Public
Not yet archived · Original link
Planning Document Public
Archived · Original link
Planning Document Public
Archived · Original link
Report
Planning Document Public
Not yet archived · Original link
Site / Block Plan
Planning Document Public
Not yet archived · Original link

Have your say

Your comment matters. Councils must consider every representation that raises material planning considerations.

Write a comment