← Rushcliffe Borough Council

Status

Pending Decision New housing
Received
21 May 2025
New homes
1

Summary

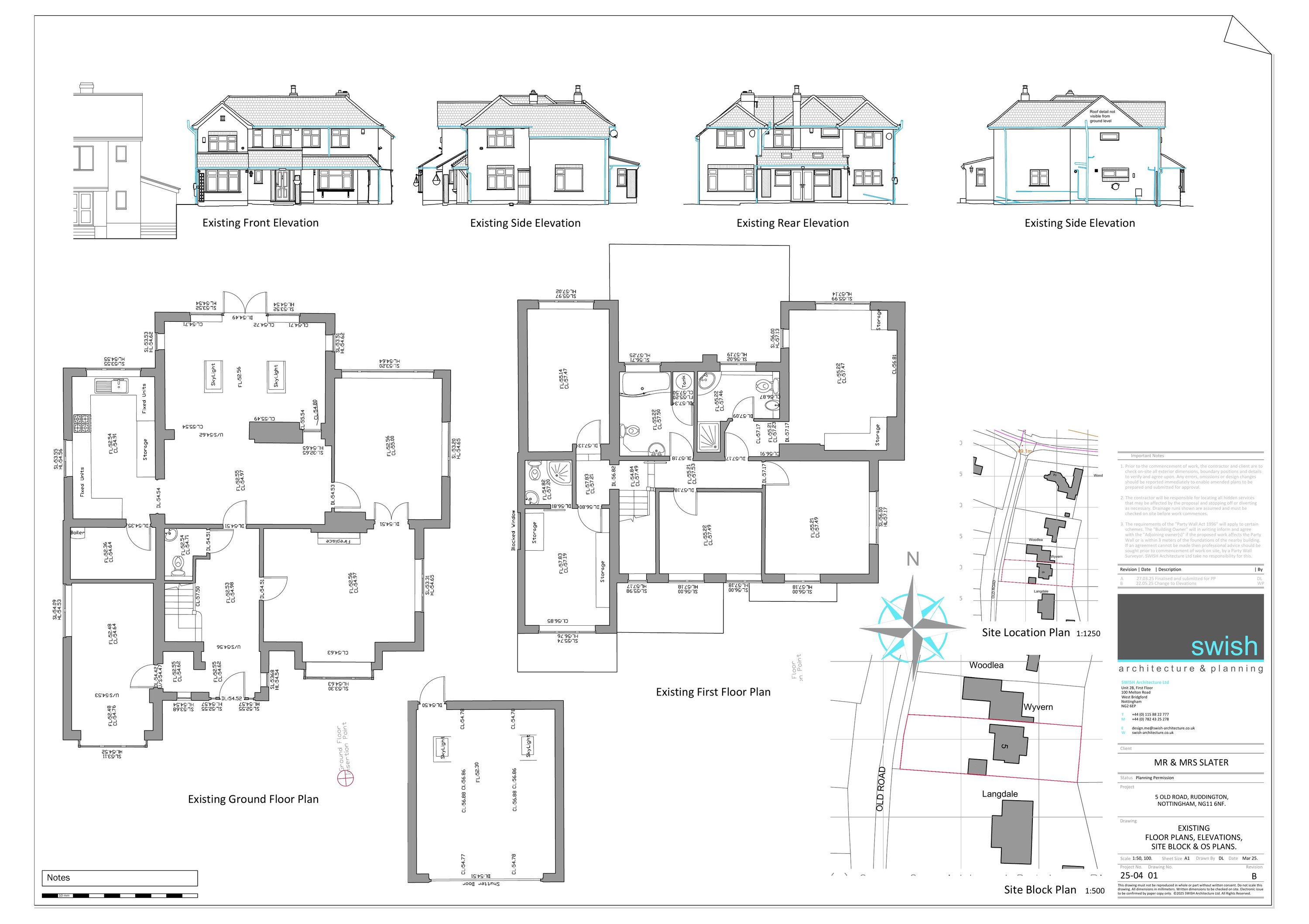
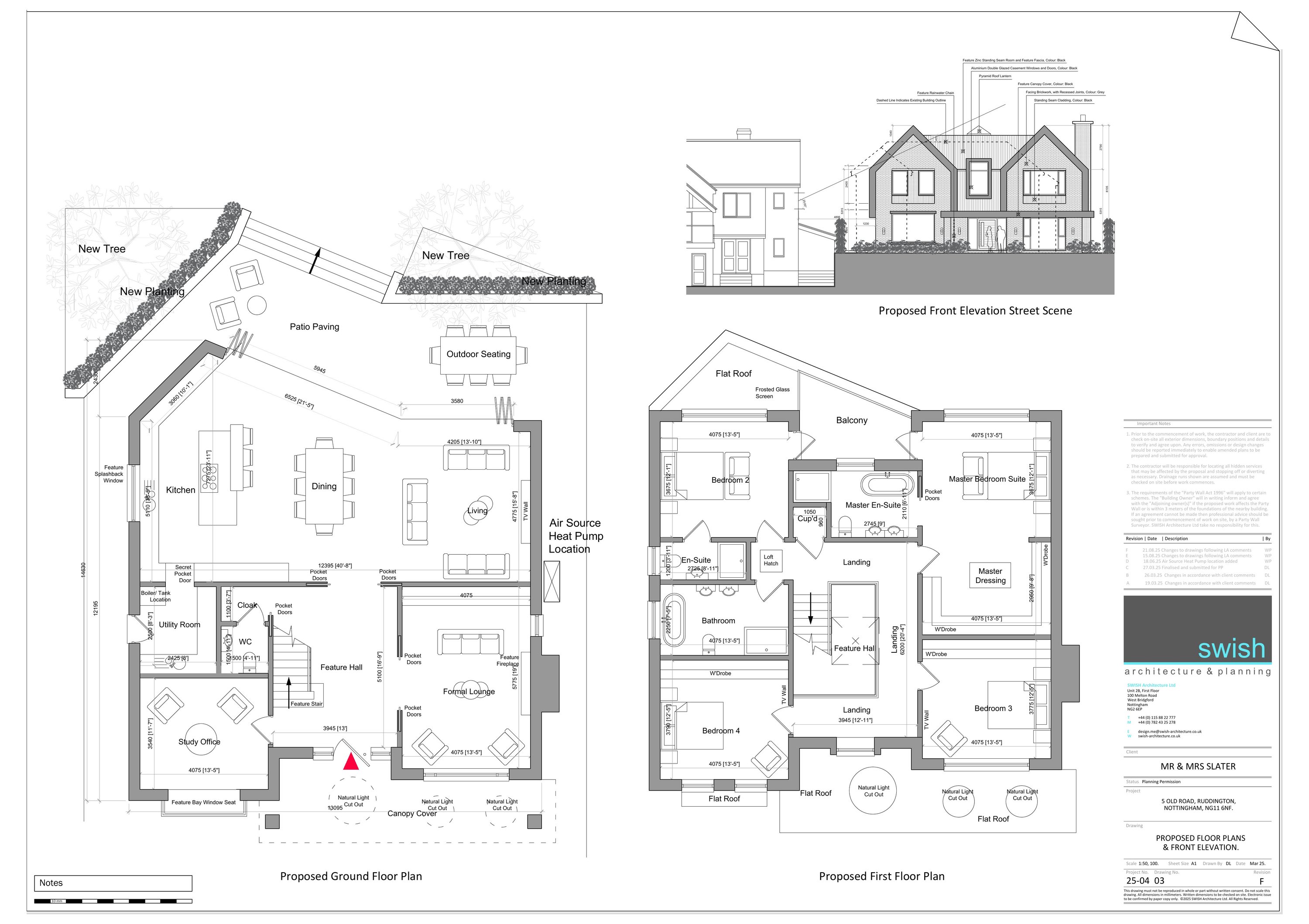
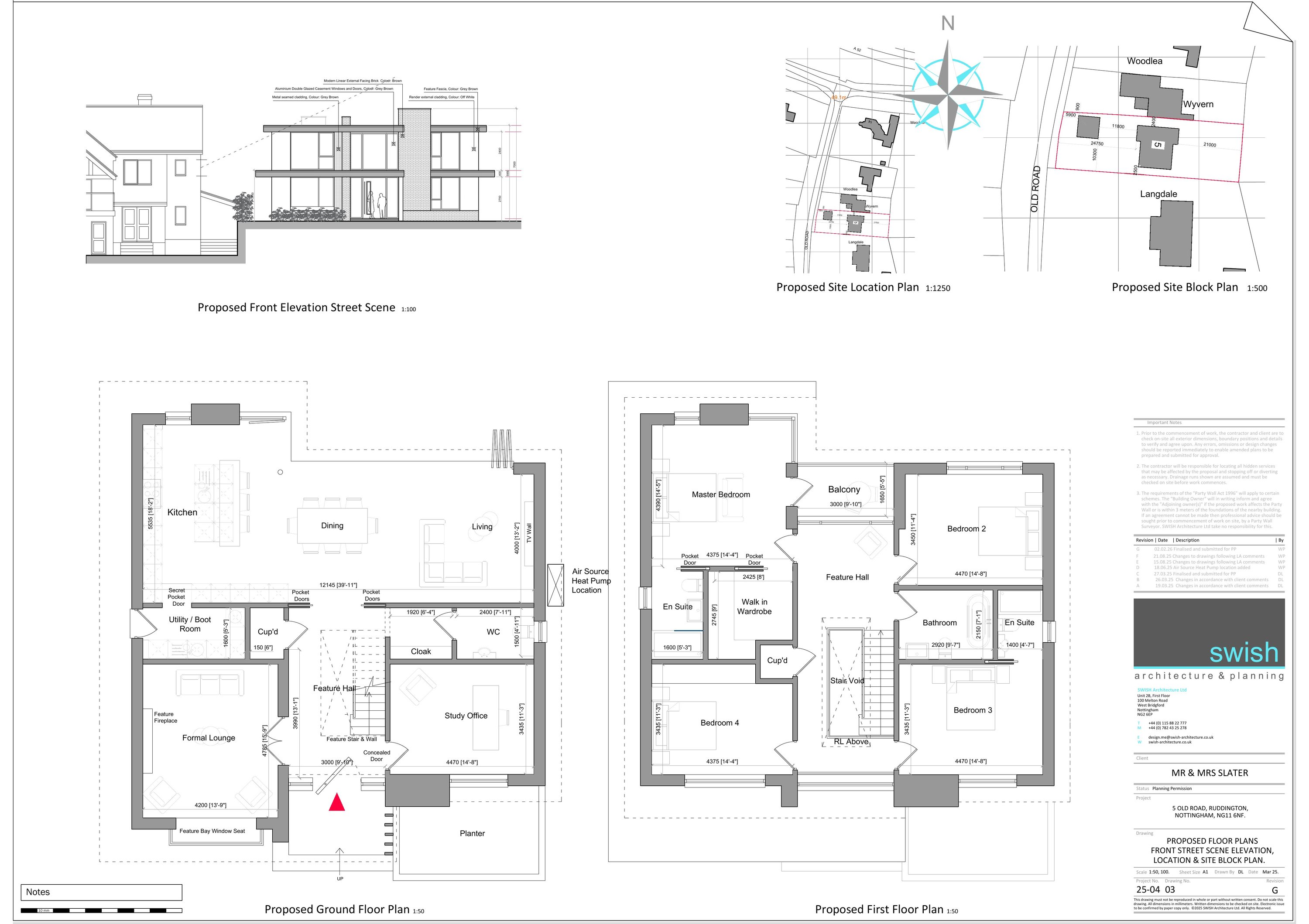
Demolish existing dwelling and construct new two-storey self-build house with detached garage.

Full proposal

Proposed demolition of existing dwelling and construction of new self build two storey dwelling and detached garage with associated works, landscaping and new front wall and gates.

Documents

AMENDED - PROPOSED ELEVATIONS AND ROOF PLAN
Revised Plan
Not yet archived · Original link
Application Form
Archived · Original link
Revised Document
Archived · Original link
Revised Document
Archived · Original link
Revised Document
Archived · Original link
Protected Species Survey
Archived · Original link
Ecology Report
Archived · Original link
Consultee Comment
Archived · Original link
Revised Document
Archived · Original link
DESIGN AND ACCESS STATEMENT REV A
Design & Access Statement
Not yet archived · Original link
DR NOTTINGHAMSHIRE COUNTY COUNCIL HIGHWAYS
Consultee Comment
Not yet archived · Original link
Consultee Responses
Archived · Original link
Consultee Comment
Archived · Original link
Consultee Comment
Archived · Original link
Consultee Comment
Archived · Original link
Consultee Comment
Archived · Original link
Consultee Comment
Archived · Original link
Consultee Responses
Archived · Original link
Consultee Responses
Archived · Original link
Consultee Responses
Archived · Original link
Consultee Comment
Archived · Original link
Design & Access Statement
Archived · Original link
Consultee Comment
Archived · Original link
Tree Report
Archived · Original link

Have your say

Your comment matters. Councils must consider every representation that raises material planning considerations.

Write a comment