← All councils

Recent applications

The most recent records we hold for this council (up to 200).

Demolition of existing dwelling

Type Demolition
Status Pending Decision
Received 29 Jan 2026

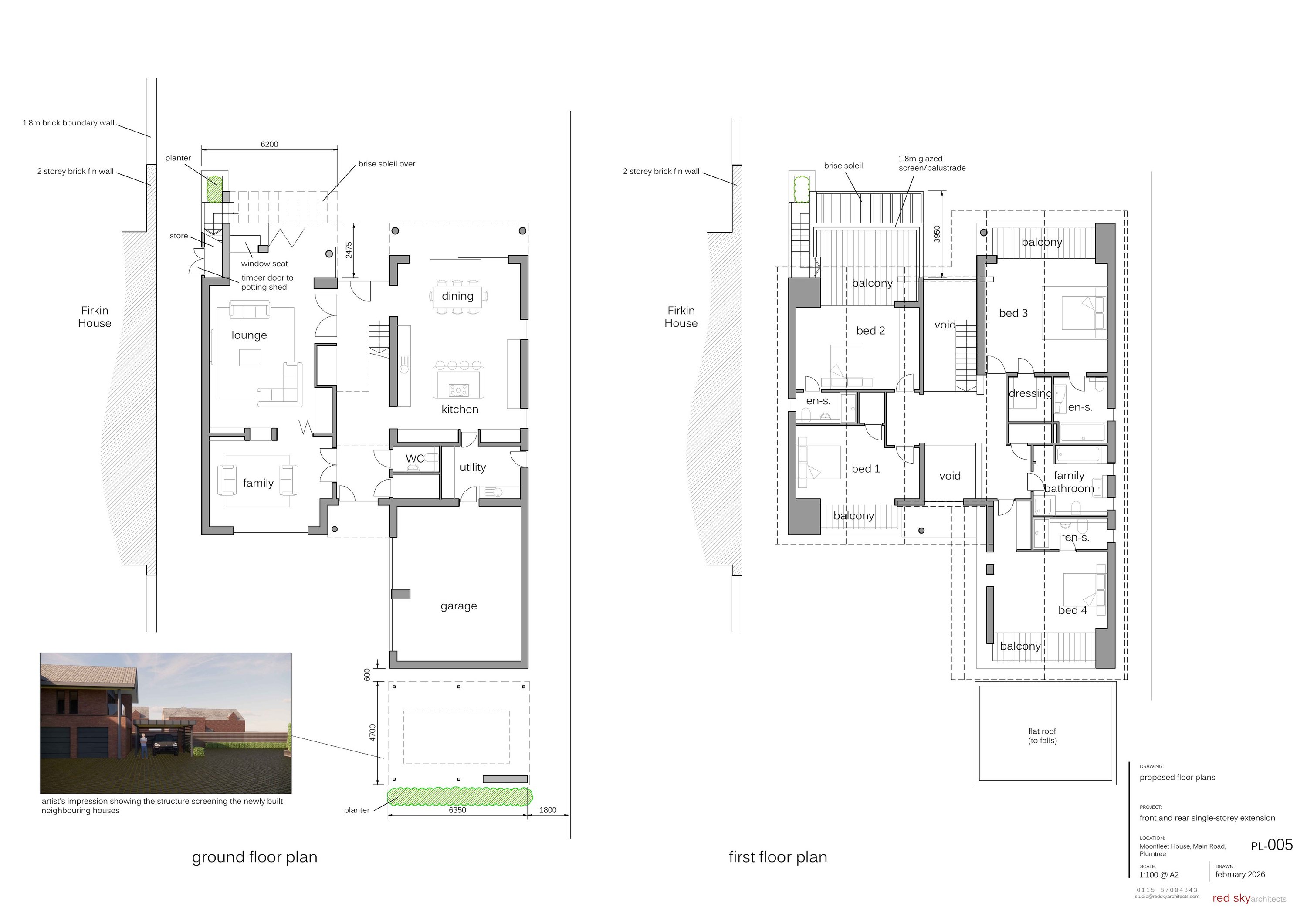
Proposed flat roof single storey rear extension

Type House extension
Status Pending Decision
Received 27 Jan 2026

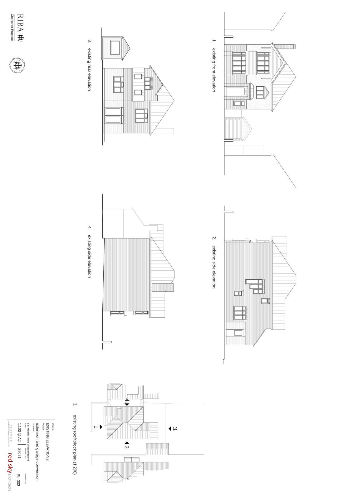
Conversion of an existing detached garage to habitable accommodation, erection of single-storey side and rear extensions, construction of a ...

Type House extension
Status Pending Decision
Received 27 Jan 2026

Proposed two storey side extensions includes new roof lights and alteration to fenestration. Partial raising of ridge height to accommodate ...

Type House extension
Status Pending Decision
Received 21 Jan 2026

Hip to gable roof alterations to front and rear, including raising of roof height and chimney height; two storey side extension including do...

Type House extension
Status Pending Decision
Received 21 Jan 2026

Erection of first floor extension and single storey side extension. Pitched roof to existing garage and external alterations.

Type House extension
Status Pending Decision
Received 20 Jan 2026

Full Planning Application for Change of Use from Agricultural Use and Residential Use to Create a Mixed Agriculture and Residential C3 Use t...

Type Change of use
Status Pending Decision
Received 19 Jan 2026

Reinstatement of a historic internal dividing walls between two formerly separate dwellings within the converted stable block at Kingston Ha...

Type Listed building
Status Pending Decision
Received 12 Jan 2026

Reinstatement of a historic internal dividing walls between two formerly separate dwellings within the converted stable block at Kingston Ha...

Type Other
Status Pending Decision
Received 12 Jan 2026
Plan thumbnail

Demolition of existing 'Building 2', construction of a temporary 'learning village' comprising 10 classrooms over 2 storeys, formation of ac...

Type Demolition
Status Pending Decision
Received 05 Jan 2026
Plan thumbnail

New porch to existing dwelling and change existing garage doors (Part Retrospective)

Type House extension
Status Pending Decision
Received 02 Jan 2026
Plan thumbnail

Demolition of existing dwelling and erection of new detached dwelling and garage

Type New housing
Status Pending Decision
Received 02 Jan 2026
Plan thumbnail

Demolition of rear single storey extension and outhouse. Construction of two storey gabled side extension, single storey gabled side extensi...

Type House extension
Status Pending Decision
Received 24 Dec 2025
Plan thumbnail

Demolition of rear single storey extension and outhouse. Construction of two storey gabled side extension, single storey gabled side extensi...

Type House extension
Status Pending Decision
Received 24 Dec 2025
Plan thumbnail

Proposed Conversion of Agricultural Buildings to form 2no. new dwellings and additional fenestration to facilitate that use. Internal works ...

Type Listed building
Status Pending Decision
Received 23 Dec 2025
Plan thumbnail

Proposed Conversion of Agricultural Buildings to form 2no. new dwellings. Minor works to existing residential garage/store. Associated hard ...

Type Change of use
Status Pending Decision
Received 23 Dec 2025
Plan thumbnail

Erection of a single-storey self-build dwelling with associated landscaping, utilising the existing access, and formation of an internal cou...

Type New housing
Status Pending Decision
Received 11 Dec 2025
Plan thumbnail

Change of use from commercial (Class E) to 21 no. residential dwellings (Class C3)

Type Change of use
Status Pending Decision
Received 22 Jan 2026
Plan thumbnail

Proposed single storey front extension, conversion of existing garage into habitable accommodation and dropped kerb crossing

Type House extension
Status Pending Decision
Received 21 Jan 2026
Plan thumbnail

Single storey rear extension to existing dwelling

Type House extension
Status Pending Decision
Received 20 Jan 2026
Plan thumbnail

Proposed single storey rear extension and two storey rear and side extensions. Loft conversion including roof lights and rear dormer element...

Type House extension
Status Pending Decision
Received 19 Dec 2025

Proposed dwelling

Type New housing
Status Pending Decision
Received 18 Dec 2025
Plan thumbnail

Demolition of existing single storey rear extension, and erection of new single storey rear extension includes roof lights and integrated co...

Type House extension
Status Pending Decision
Received 14 Jan 2026
Plan thumbnail

Loft conversion with dormers to the front and rear and single storey extension to the side. Enlarged porch with render finish.

Type House extension
Status Pending Decision
Received 08 Jan 2026
Plan thumbnail

Full planning permission for the demolition of agricultural buildings and the erection of 1no. dwelling with patio

Type New housing
Status Pending Decision
Received 18 Dec 2025
Plan thumbnail

Demolition of Garage, Erection of single self build dwelling

Type New housing
Status Pending Decision
Received 15 Dec 2025
Plan thumbnail

Demolition of garage and construction of a two storey side extension and single storey rear extensions including rooflights

Type House extension
Status Pending Decision
Received 29 days ago
Plan thumbnail

Conversion of existing detached garage including changing roof from flat to pitched with raised eaves, installation of roof lights and appli...

Type House extension
Status Pending Decision
Received 29 days ago
Plan thumbnail

Demolish existing garage; construction of single storey side/front and rear extensions; canopy roof to front elevation.

Type House extension
Status Pending Decision
Received Last month
Plan thumbnail

Erection of single storey and two storey rear extension including rear balcony; first floor front extension; raise roof of exisitng garage; ...

Type House extension
Status Pending Decision
Received Last month
Plan thumbnail

Proposed erection of a single-storey rear extension with roof lantern includes new external steps/platform to rear and raising of existing s...

Type House extension
Status Pending Decision
Received Last month
Plan thumbnail

Convert the existing 4no. HMO units(22 beds) into 7no. one bed and 1no. two bed flats.

Type Change of use
Status Pending Decision
Received Last month

Replacement dwelling

Type Other
Status Pending Decision
Received Last month
Plan thumbnail

Erection of 1no detached dwelling (self-build)

Type New housing
Status Pending Decision
Received 16 Oct 2025
Plan thumbnail

Demolish existing porches (front and rear); first floor rear extensions; rear dormer window and side facing roof light (incorprating replace...

Type House extension
Status Pending Decision
Received Last month
Plan thumbnail

New front porch to existing dwelling

Type House extension
Status Pending Decision
Received Last month
Plan thumbnail

Demolition of existing 3 bed detached 2 storey dwelling and construction of a Self Build 5 bed detached dwelling

Type New housing
Status Pending Decision
Received Last month
Plan thumbnail

Retrospective application for a single-storey rear extension and rear dormer, installation of external wall render, erection of front porch ...

Type House extension
Status Pending Decision
Received Last month
Plan thumbnail

Erection of a single storey extension to form a new porch

Type House extension
Status Pending Decision
Received Last month
Plan thumbnail

Full application for the erection of a self-build dwelling and associated access and landscaping works

Type New housing
Status Pending Decision
Received Last month
Plan thumbnail

Erection of a single-storey rear extension and a dormer roof

Type House extension
Status Pending Decision
Received Last month
Plan thumbnail

Two storey side extension, single storey front and rear extensions includes roof light

Type House extension
Status Pending Decision
Received 02 Feb 2026
Plan thumbnail

Conversion of Methodist Church and School House into Dwellings

Type Listed building
Status Pending Decision
Received 02 Feb 2026
Plan thumbnail

Removal of existing steel frame barn and construction of 2 storey Self Build Passivhaus Premium dwelling with 2 car carriage house. Associat...

Type New housing
Status Pending Decision
Received 02 Feb 2026
Plan thumbnail

Partial demolition of existing dwelling and construction of replacement dwelling, detached garden studio and associated works

Type Demolition
Status Pending Decision
Received 28 Jan 2026
Plan thumbnail

Proposed two storey side and first floor rear extension, alterations to the existing rear monopitch roof element to create gable roof. Creat...

Type House extension
Status Pending Decision
Received 28 Jan 2026
Plan thumbnail

Change of use from fairground open storage yard to general B8 storage including the re-cladding and installation of new roller shutter doors...

Type Change of use
Status Pending Decision
Received 26 Jan 2026
Plan thumbnail

Proposed Demolition of Existing Dwelling and Construction of a 2 storey Dwelling with accommodation in the roof and Rear Annex Building with...

Type New housing
Status Pending Decision
Received 19 Jan 2026
Plan thumbnail

Conversion of Methodist Church and School House into Dwellings

Type Change of use
Status Pending Decision
Received 02 Jan 2026
Plan thumbnail

Two storey front and side extension to existing dwelling

Type House extension
Status Pending Decision
Received 29 days ago
Plan thumbnail

Erection of a single storey rear extension includes rooflight.

Type House extension
Status Pending Decision
Received Last month
Plan thumbnail

Erection of a 3 storey residential care home within Use Class C2 and associated car park

Type Other
Status Pending Decision
Received Last month
Plan thumbnail

Loft conversion with dormer and raised roof line

Type House extension
Status Pending Decision
Received 25 May 2025
Plan thumbnail

Demolish existing dwelling and construct new two-storey self-build house with detached garage.

Type New housing
Status Pending Decision
Received 21 May 2025
Plan thumbnail

single storey rear extension, extension of first floor balcony, external steps and detached car-port to front of the house

Type House extension
Status Pending Decision
Received Last month

Change of use from single dwelling house (C3) to "sui generis" short-term rental accommodation

Type Change of use
Status Pending Decision
Received Last month

Retrospective change of use from single dwelling house (C3) to "sui generis" short-term rental accommodation

Type Change of use
Status Pending Decision
Received Last month
Plan thumbnail

Prior approval application under Class Q for Change of Use of Agricultural Building to Dwellinghouse - Conversion of steel framed barn to dw...

Type Change of use
Status Pending Decision
Received 03 Feb 2026
Plan thumbnail

Single storey rear extension with flat roof and timber cladding finish.

Type House extension
Status Pending Decision
Received 02 Feb 2026
Plan thumbnail

Change of use of first floor office, over existing 3 car garage, to ancillary residential granny flat.

Type Change of use
Status Pending Decision
Received 26 Jan 2026
Plan thumbnail

Demolition of existing Bungalow and construction of a new self build two storey dwelling. A new dropped kerb to extend the existing entrance...

Type New housing
Status Pending Decision
Received 22 Jan 2026

Change of use from single dwelling house (C3) to "sui generis" short-term rental accommodation

Type Change of use
Status Pending Decision
Received 23 Dec 2025
Plan thumbnail

Proposed first floor extension above existing single storey section of the dwelling, along with a new ground floor side extension

Type House extension
Status Pending Decision
Received 14 Jan 2026
Plan thumbnail

Conversion of existing steel-framed agricultural barn to a single dwelling

Type Change of use
Status Pending Decision
Received 08 Dec 2025
Plan thumbnail

Prior approval application under Class Q for the conversion of the existing agricultural building to a single dwelling.

Type Change of use
Status Pending Decision
Received 02 Dec 2025
Plan thumbnail

Outline application for up to 200 dwellings with open space, play area and drainage.

Type New housing
Status Pending Decision
Received 25 Nov 2025
Plan thumbnail

Demolition of storage shed, extension to existing building to provide additional 2 bedroom Duplex flat, and works to car park area

Type New housing
Status Pending Decision
Received 28 Oct 2025
Plan thumbnail

Demolish existing home, build mixed-use with retail and residences.

Type New housing
Status Pending Decision
Received 17 Oct 2025
Plan thumbnail

Demolition of storage area, two storey front and single storey side extension to existing dwelling

Type House extension
Status Pending Decision
Received 16 Sep 2025
Plan thumbnail

Recladding of existing front facade and proposed new porch with associated landscaping. Rear flat roof removed and replaced with monopitch r...

Type House extension
Status Pending Decision
Received 03 Nov 2025
Plan thumbnail

Develop 3 two-storey detached houses with access and landscaping.

Type New housing
Status Pending Decision
Received 13 Oct 2025
Plan thumbnail

Erection of a single-storey dwelling with associated access, parking, landscaping and ecological enhancements.

Type New housing
Status Pending Decision
Received 07 Oct 2025
Plan thumbnail

Redevelopment including partial demolition and demolition of existing buildings. Construction of 2no. new warehouse (B8) buildings, includin...

Type Industrial
Status Pending Decision
Received 06 Oct 2025
Plan thumbnail

Change of use from Offices (Use Class E(g)(i)) to independent school for children with Special Educational Needs and Disabilities (Use Class...

Type Change of use
Status Pending Decision
Received 05 Sep 2025

Single storey rear extension to existing dwellinghouse

Type House extension
Status Unknown
Received 18 Sep 2025
Plan thumbnail

Demolition of existing dwelling and erection of replacement dwelling.

Type Demolition
Status Pending Decision
Received 19 Aug 2025
Plan thumbnail

Change of use of hotel parts to create a 12-bed HMO, retaining five hotel bedrooms.

Type Change of use
Status Pending Decision
Received 05 Aug 2025
Plan thumbnail

Erection of an agricultural barn (including to house cattle)

Type Agricultural
Status Pending Decision
Received 19 Aug 2025
Plan thumbnail

Erection of eight dwellings with associated works and new access.

Type New housing
Status Pending Decision
Received 01 Aug 2025

Demolition and erection of six residential dwellings with access, parking and landscaping.

Type New housing
Status Pending Decision
Received 07 Aug 2025
Plan thumbnail

Demolish existing building and construct new residential building of nine apartments with access, parking and landscaping.

Type New housing
Status Pending Decision
Received 18 Jul 2025
Plan thumbnail

Retrospective works and change of annexe to a separate dwelling.

Type Change of use
Status Pending Decision
Received 23 Jan 2025
Plan thumbnail

Two-storey front extension, garage conversion with two-storey link, first floor extension and rear balcony.

Type House extension
Status Pending Decision
Received 20 Jun 2025
Plan thumbnail

Remodel of dwelling. Erection of two storey side and rear extensions including rear balconies, Alteration to existing chimneys and fenestrat...

Type House extension
Status Pending Decision
Received 02 Apr 2025
Plan thumbnail

Outline planning application for erection of one dwelling (all matters reserved).

Type New housing
Status Pending Decision
Received 29 Apr 2025
Plan thumbnail

Construction of a detached dwelling.

Type New housing
Status Pending Decision
Received 19 Mar 2025
Plan thumbnail

Demolition of one dwelling and erection of three detached dwellings with access, parking and landscaping (net +2).

Type New housing
Status Pending Decision
Received 24 Feb 2025
Plan thumbnail

Construction of a replacement dwelling.

Type New housing
Status Pending Decision
Received 05 Feb 2025
Plan thumbnail

New self build chalet bungalow to replace existing dwelling includes decking, side and rear balconies and elevated car platform

Type New housing
Status Pending Decision
Received 20 Dec 2024
Plan thumbnail

Demolition of existing dwelling and replacement with a new retail building with additional landscaping and fencing.

Type Commercial
Status Pending Decision
Received 22 Aug 2024
Plan thumbnail

Conversion of existing stables and threshing barn to residential floor space. New roof to existing stables and link building. Renovation inc...

Type Change of use
Status Pending Decision
Received 01 Nov 2024
Plan thumbnail

Resurfacing of the courtyard, conversion of existing stables and barns to residential including new roof to stables and proposed new link, r...

Type Change of use
Status Pending Decision
Received 31 Oct 2024
Plan thumbnail

Single storey rear extension with rooflights and internal adaptations to an existing dwelling. Alterations to fenestration. New front entran...

Type House extension
Status Pending Decision
Received 14 Jan 2026
Plan thumbnail

Single storey rear and side extension; flat roof dormer to rear

Type House extension
Status Pending Decision
Received 02 Jan 2026
Plan thumbnail

First floor rear extension to existing dwellinghouse

Type House extension
Status Pending Decision
Received 27 Jan 2026

Construction of single storey rear extension. Application of cladding to front and side elevations of existing dwelling. Demolition of oil t...

Type House extension
Status Pending Decision
Received 16 Jan 2026
Plan thumbnail

Demolition of bungalow and erection of detached self build dwelling associated works in relation to landscaping and access. Alterations to e...

Type New housing
Status Pending Decision
Received 18 Dec 2025
Plan thumbnail

Single storey rear extension; demolish existing southern side extension and rebuild with a hipped roof; replacement porch; raised patio to r...

Type House extension
Status Pending Decision
Received 15 Jan 2026
Plan thumbnail

Form a new porch to front elevation, a single storey rear extension to form a kitchen family living space. Replace existing flat roof extens...

Type House extension
Status Pending Decision
Received 08 Dec 2025

Rear single storey side extension with flat roof, demolition of brick shed, replacement of existing fence

Type House extension
Status Pending Decision
Received 21 Jan 2026
Plan thumbnail

Outline application for six dwellings with gardens and car parking, access only reserved.

Type New housing
Status Unknown
Received 14 Mar 2025

Roof extension creating a third floor with eight one-bedroom apartments.

Type New housing
Status Pending Decision
Received 01 Jul 2025
Plan thumbnail

Change of use of office and erection of one self-build dwelling with detached garage.

Type New housing
Status Pending Decision
Received 11 Jun 2025
Plan thumbnail

Proposed front extension to property, conversion of dwelling into 2no 1 bedroom apartments

Type Change of use
Status Pending Decision
Received 12 Nov 2025

Application for Permission in Principle for Residential Development of One Dwelling

Type New housing
Status Pending Decision
Received 15 Dec 2025
Plan thumbnail

Prior approval application under class Q for Change of Use of Agricultural Building to Dwellinghouse (together with associated building oper...

Type Change of use
Status Pending Decision
Received 23 Sep 2025
Plan thumbnail

Penthouse flat extension

Type House extension
Status Pending Decision
Received 31 Oct 2025
Plan thumbnail

Raised ridge and hip to gable extension to existing house. Replacement detached garage

Type House extension
Status Pending Decision
Received 14 Nov 2025
Plan thumbnail

Convert barn, cartshed and stable to residences and add six new dwellings.

Type New housing
Status Decided
Received 24 Jan 2025

Change of use from one dwelling to two dwellings (subdivision of single house).

Type Change of use
Status Pending Decision
Received 19 Nov 2025
Plan thumbnail

Change of use from paddock to residential garden and driveway.

Type Change of use
Status Decided
Received 25 Mar 2025
Plan thumbnail

Conversion/partial rebuild of barns to three dwellings with ASHP and widened access.

Type New housing
Status Decided
Received 21 Mar 2025

Construction of two semi‑detached dwellings and replacement porch canopies to the Old Chapel.

Type New housing
Status Pending Decision
Received 19 Mar 2025