← Rushcliffe Borough Council

Status

Pending Decision House extension
Received
25 May 2025
New homes
0

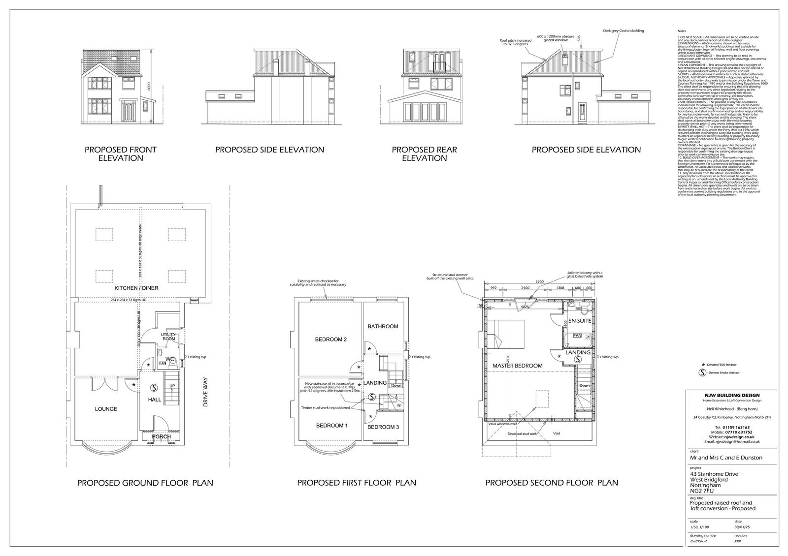
Full proposal

Loft conversion with dormer and raised roof line

Documents

Application Form
Archived · Original link
Ecology Report
Archived · Original link
Consultee Responses
Archived · Original link
Plans
Archived · Original link
Plans
Archived · Original link
Site location plan
Archived · Original link
Plans
Archived · Original link

Have your say

Your comment matters. Councils must consider every representation that raises material planning considerations.

Write a comment