← Rushcliffe Borough Council

Status

Pending Decision New housing
Received
16 Oct 2025
New homes
1

Full proposal

Erection of 1no detached dwelling (self-build)

Documents

Application Form
Archived · Original link
Archaeology Report
Archived · Original link
Consultee Comment
Archived · Original link
Design & Access Statement
Archived · Original link
Plans (existing)
Archived · Original link
Site location plan
Archived · Original link
Consultee Comment
Archived · Original link
Consultee Comment
Archived · Original link
Consultee Responses
Archived · Original link
Consultee Responses
Archived · Original link
Consultee Responses
Archived · Original link
NCC RIGHTS OF WAY
Consultee Responses
Not yet archived · Original link
Ward Member & Parish Responses
Archived · Original link
Press Notice
Archived · Original link
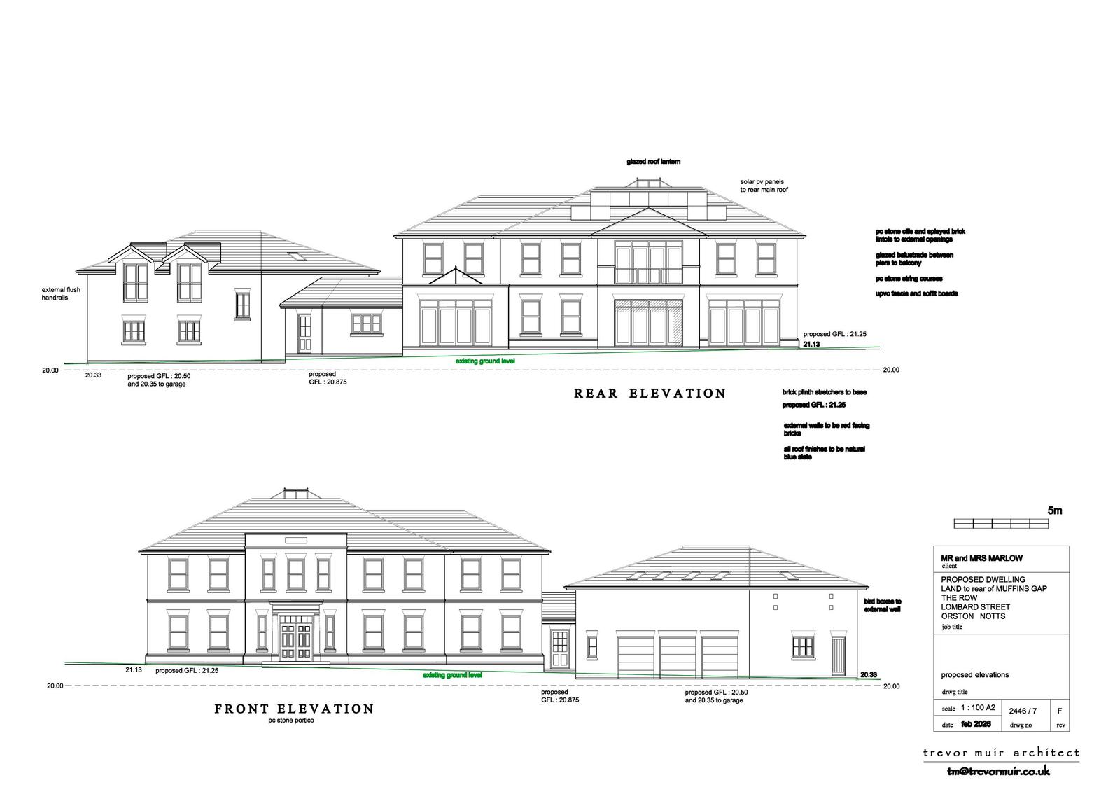
Plans (proposed)
Archived · Original link
Plans (proposed)
Archived · Original link
Plans (proposed)
Archived · Original link
Plans (proposed)
Archived · Original link
Plans (proposed)
Archived · Original link
Plans (proposed)
Archived · Original link
Plans (proposed)
Archived · Original link
Plans (proposed)
Archived · Original link
Plans (proposed)
Archived · Original link
Plans (proposed)
Archived · Original link
Plans (proposed)
Archived · Original link
Public Comment
Archived · Original link
Consultee Comment
Archived · Original link

Have your say

Your comment matters. Councils must consider every representation that raises material planning considerations.

Write a comment