← Rushcliffe Borough Council

Status

Pending Decision House extension
Received
19 Dec 2025
New homes
0

Full proposal

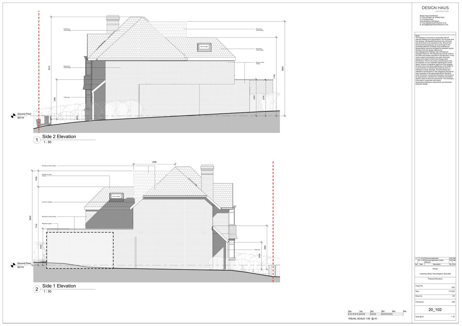
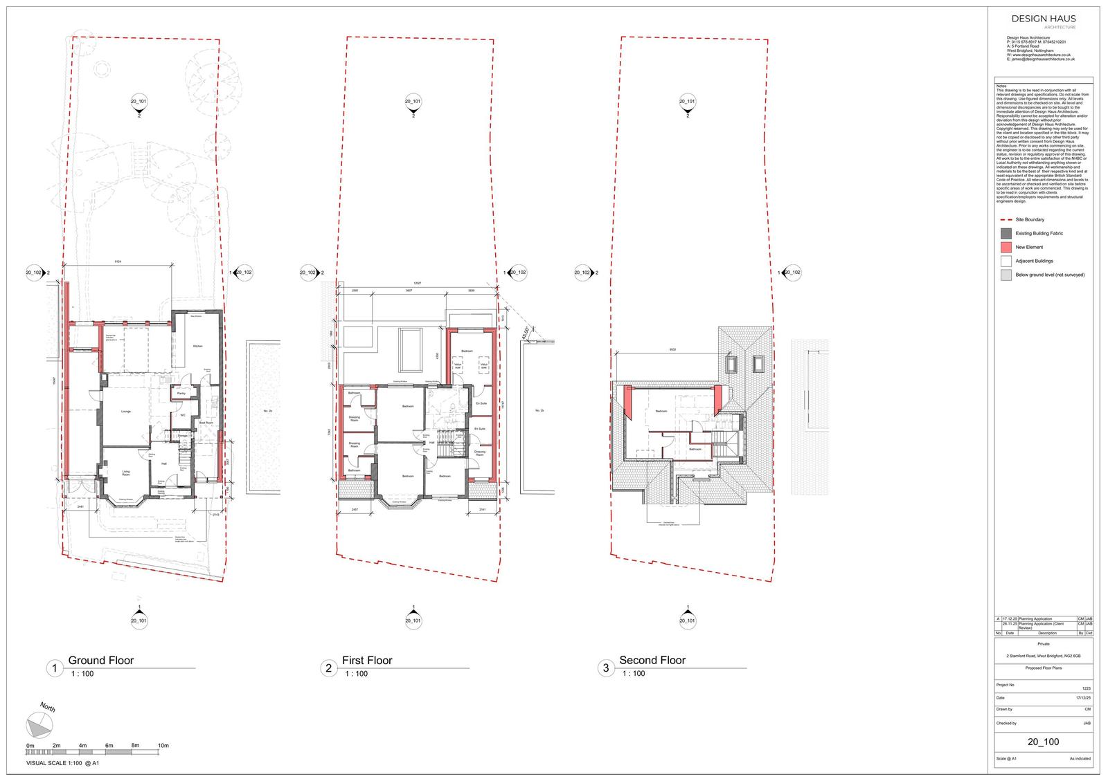
Proposed single storey rear extension and two storey rear and side extensions. Loft conversion including roof lights and rear dormer element, internal alterations.

Have your say

Your comment matters. Councils must consider every representation that raises material planning considerations.

Write a comment