← Rushcliffe Borough Council

Status

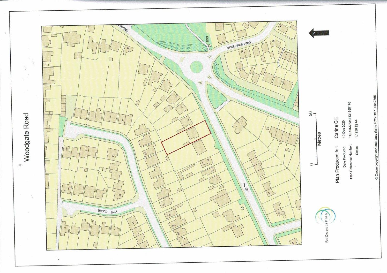
Pending Decision House extension
Received
08 Jan 2026
New homes
0

Full proposal

Loft conversion with dormers to the front and rear and single storey extension to the side. Enlarged porch with render finish.

Documents

Site location plan
Archived · Original link
Plans
Archived · Original link

Have your say

Your comment matters. Councils must consider every representation that raises material planning considerations.

Write a comment