← Rushcliffe Borough Council

Status

Pending Decision House extension
Received
14 Jan 2026
New homes
0

Full proposal

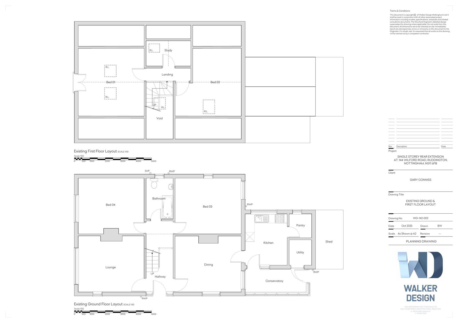
Demolition of existing single storey rear extension, and erection of new single storey rear extension includes roof lights and integrated covered patio area.

Have your say

Your comment matters. Councils must consider every representation that raises material planning considerations.

Write a comment