← Rushcliffe Borough Council

Status

Pending Decision New housing
Received
19 Jan 2026
New homes
1

Full proposal

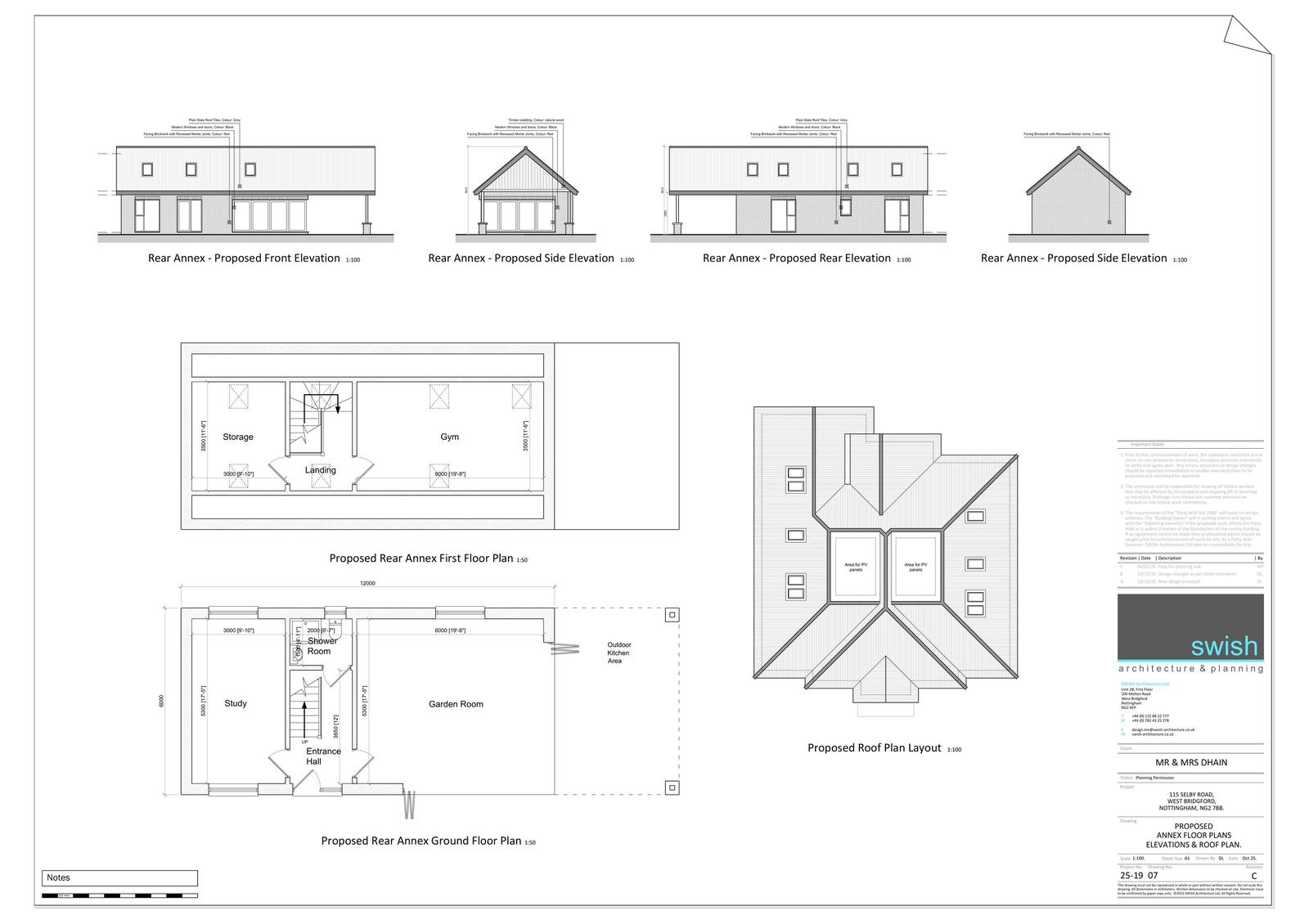
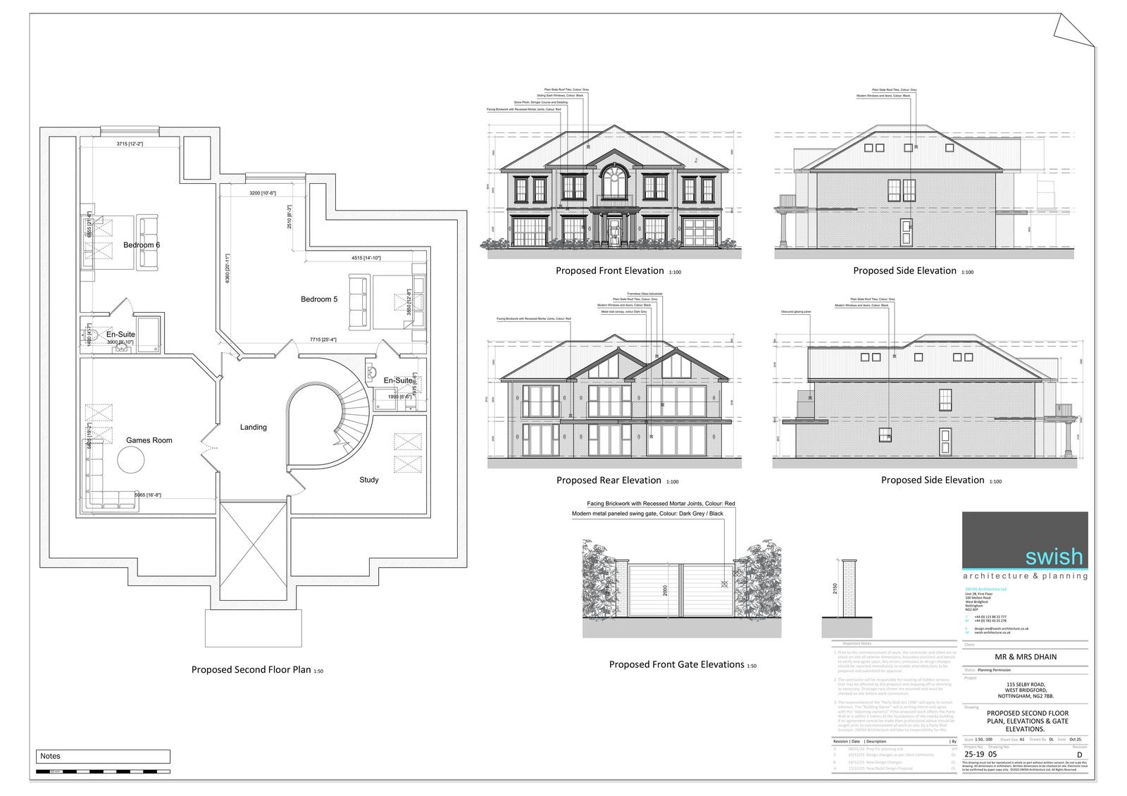
Proposed Demolition of Existing Dwelling and Construction of a 2 storey Dwelling with accommodation in the roof and Rear Annex Building with accommodation in the roof. Proposed Gate.

Documents

Application Form
Archived · Original link
Consultee Responses
Archived · Original link
Consultee Comment
Archived · Original link
Design & Access Statement
Archived · Original link
Plans - Layout
Archived · Original link
Photographs (application)
Archived · Original link
Photographs (application)
Archived · Original link
Photographs (application)
Archived · Original link
Ecology Report
Archived · Original link
Plans - Floor Plans
Archived · Original link
Plans - Floor Plans
Archived · Original link
Plans - Floor Plans
Archived · Original link

Have your say

Your comment matters. Councils must consider every representation that raises material planning considerations.

Write a comment