← Rushcliffe Borough Council

Status

Pending Decision Demolition
Received
28 Jan 2026
New homes
0

Full proposal

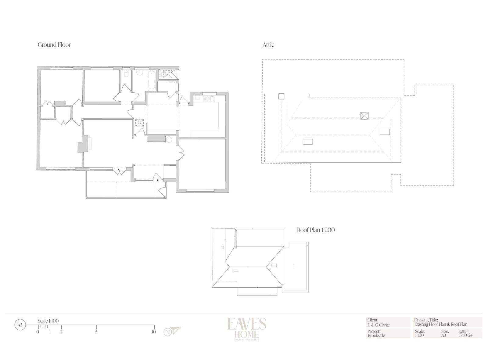
Partial demolition of existing dwelling and construction of replacement dwelling, detached garden studio and associated works

Documents

Application Form
Archived · Original link
Tree Report
Archived · Original link
Application File Papers
Archived · Original link
Consultee Comment
Archived · Original link
Design & Access Statement
Archived · Original link
Ecology Report
Archived · Original link
Plans
Archived · Original link
Site location plan
Archived · Original link
Consultee Responses
Archived · Original link
Plans - Landscaping
Archived · Original link
Plans
Archived · Original link
Plans - Additional
Archived · Original link
Tree Report
Archived · Original link
Tree Report
Archived · Original link
Tree Report
Archived · Original link

Have your say

Your comment matters. Councils must consider every representation that raises material planning considerations.

Write a comment