← Rushcliffe Borough Council

Status

Pending Decision House extension
Received
28 Jan 2026
New homes
1

Full proposal

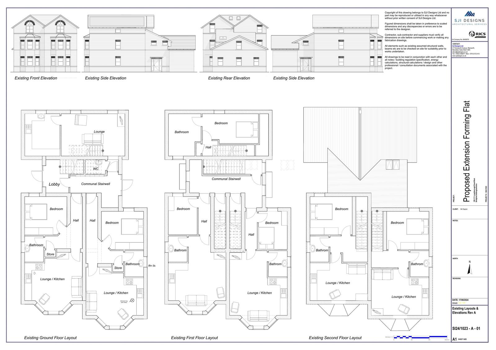
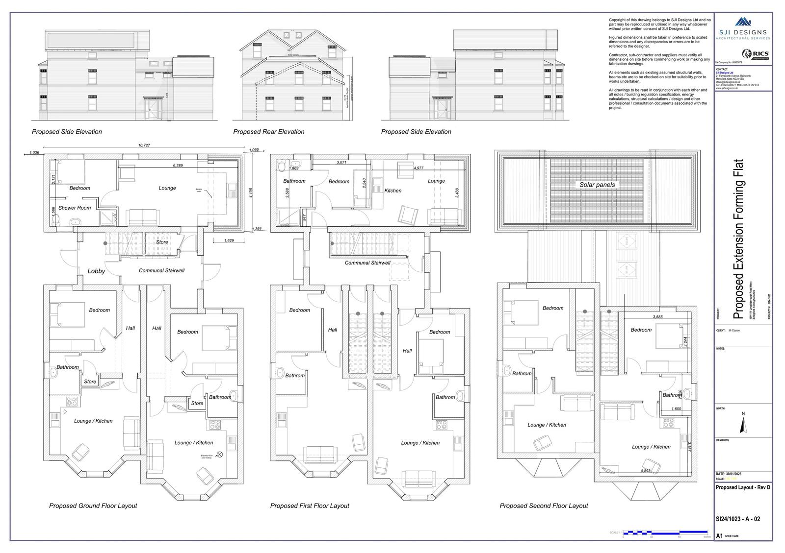
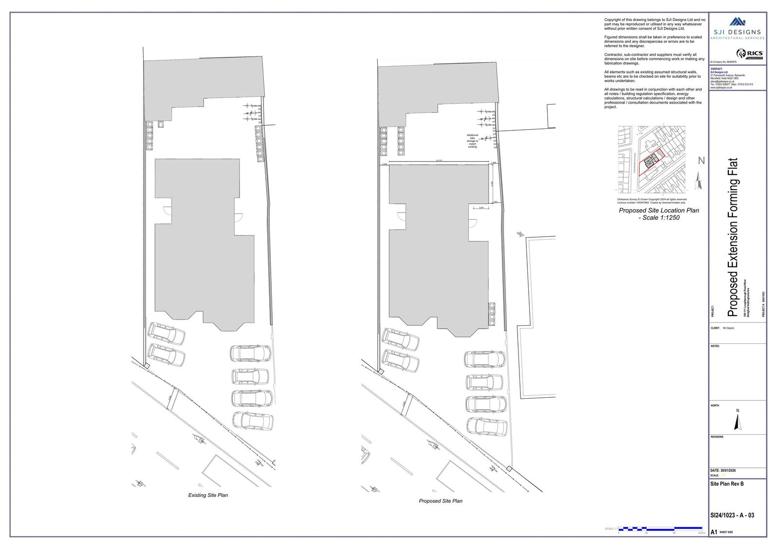
Proposed two storey side and first floor rear extension, alterations to the existing rear monopitch roof element to create gable roof. Creation 1no. additional one-bedroom flat on the first floor level. New solar panels to roof

Documents

Application Form
Archived · Original link
Consultee Comment
Archived · Original link
Flood Risk Assessment
Archived · Original link
Flood Risk Assessment
Archived · Original link
Consultee Comment
Archived · Original link
Consultee Responses
Archived · Original link
Plans
Archived · Original link
Transport Assessment
Archived · Original link

Have your say

Your comment matters. Councils must consider every representation that raises material planning considerations.

Write a comment