← Rushcliffe Borough Council

Status

Pending Decision New housing
Received
02 Feb 2026
New homes
1

Full proposal

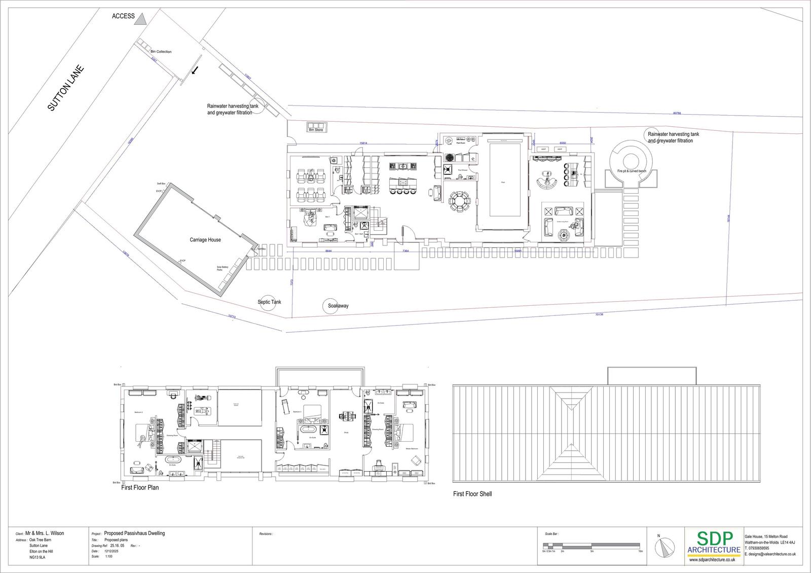
Removal of existing steel frame barn and construction of 2 storey Self Build Passivhaus Premium dwelling with 2 car carriage house. Associated works include new front gates. 2no. airs source heat pumps, hard and soft landscaping.

Documents

Covering Letter
Archived · Original link
Application Form
Archived · Original link
Consultee Comment
Archived · Original link
Design & Access Statement
Archived · Original link
Design & Access Statement
Archived · Original link
Design & Access Statement
Archived · Original link
Consultee Comment
Archived · Original link
Plans - Landscaping
Archived · Original link
Plans - Landscaping
Archived · Original link
Plans - Landscaping
Archived · Original link
Consultee Comment
Archived · Original link
Consultee Responses
Archived · Original link
Site location plan
Archived · Original link
Public Comment
Archived · Original link
Plans - Additional
Archived · Original link
Plans - Levels/Topography
Archived · Original link
Design & Access Statement
Archived · Original link
Ecology Report
Archived · Original link
Other
Archived · Original link
Structural Report
Archived · Original link
Tree Report
Archived · Original link

Have your say

Your comment matters. Councils must consider every representation that raises material planning considerations.

Write a comment