← Rushcliffe Borough Council

Status

Pending Decision Listed building
Received
02 Feb 2026
New homes
0

Full proposal

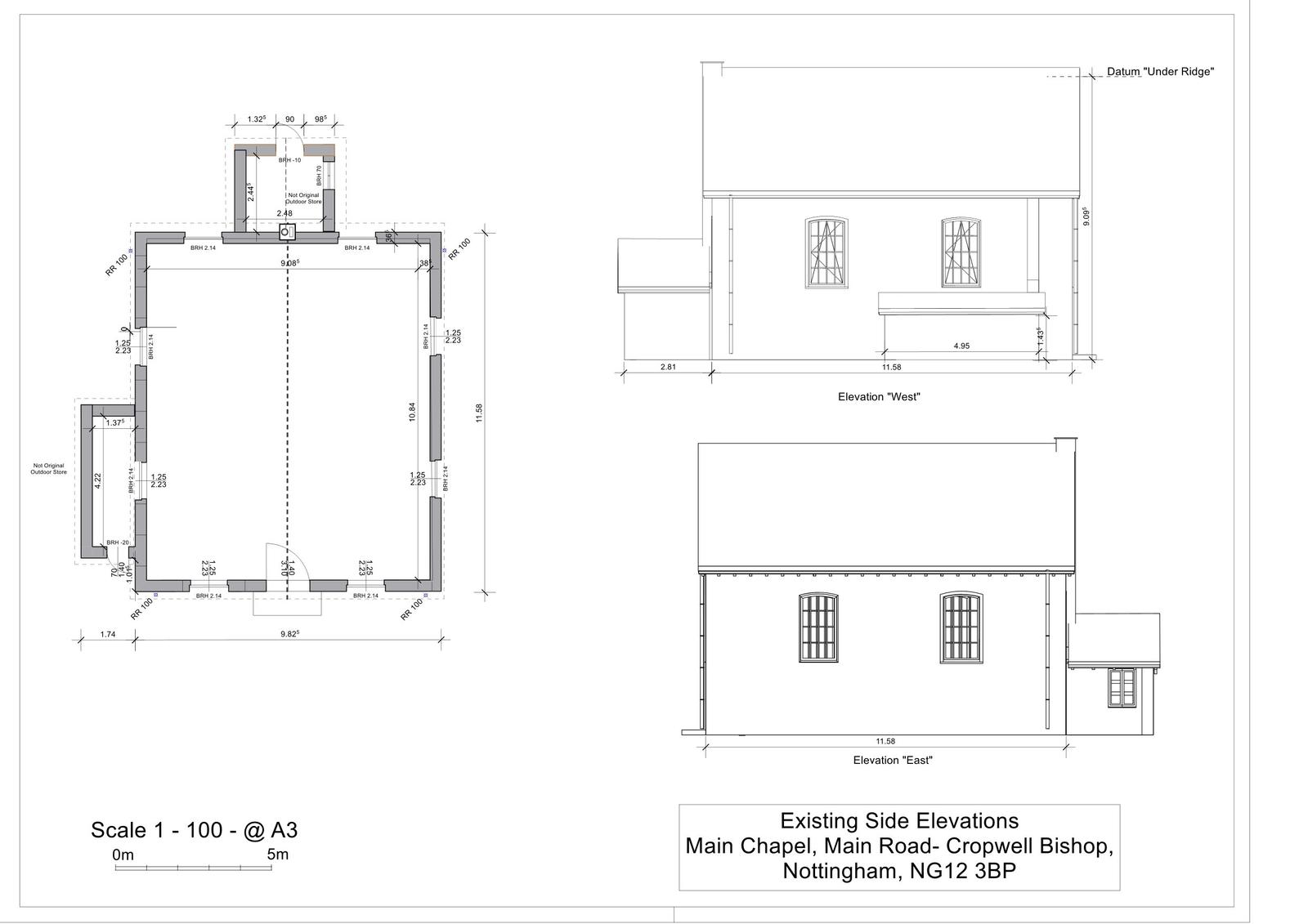
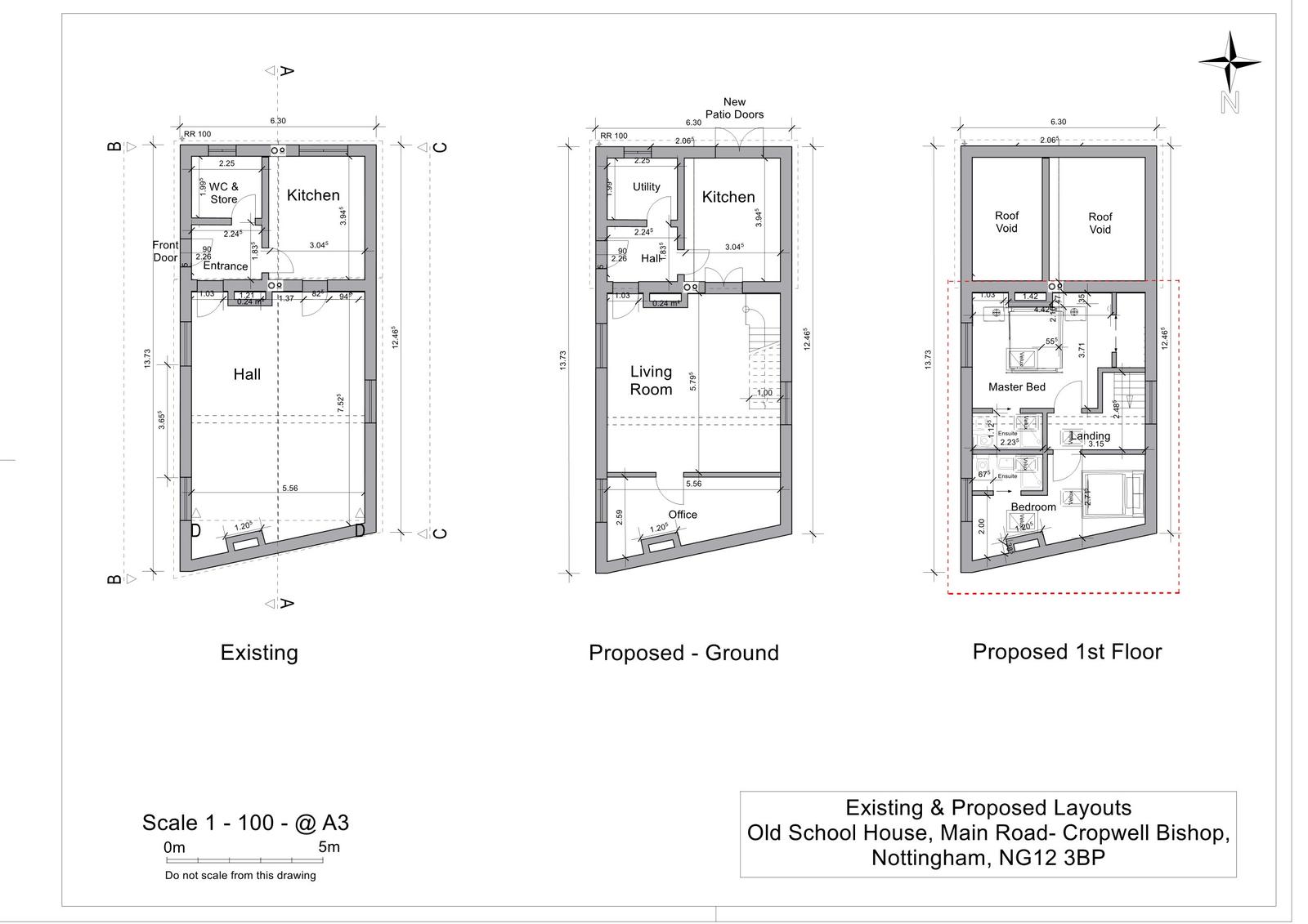
Conversion of Methodist Church and School House into Dwellings

Documents

Application Form
Archived · Original link
BNG METRIC
Ecology Report
Not yet archived · Original link
Ecology Report
Archived · Original link
Consultee Comment
Archived · Original link
Design & Access Statement
Archived · Original link
Application File Papers
Archived · Original link
Site location plan
Archived · Original link
MRS JANICE TOWNDROW
Consultee Comment
Not yet archived · Original link
PLANNING HERITAGE STATEMENT
Application File Papers
Not yet archived · Original link
Plans
Archived · Original link
Application File Papers
Archived · Original link
Application File Papers
Archived · Original link
Neighbour Responses
Archived · Original link

Have your say

Your comment matters. Councils must consider every representation that raises material planning considerations.

Write a comment