← Rushcliffe Borough Council

Status

Pending Decision House extension
Received
Last month
New homes
0

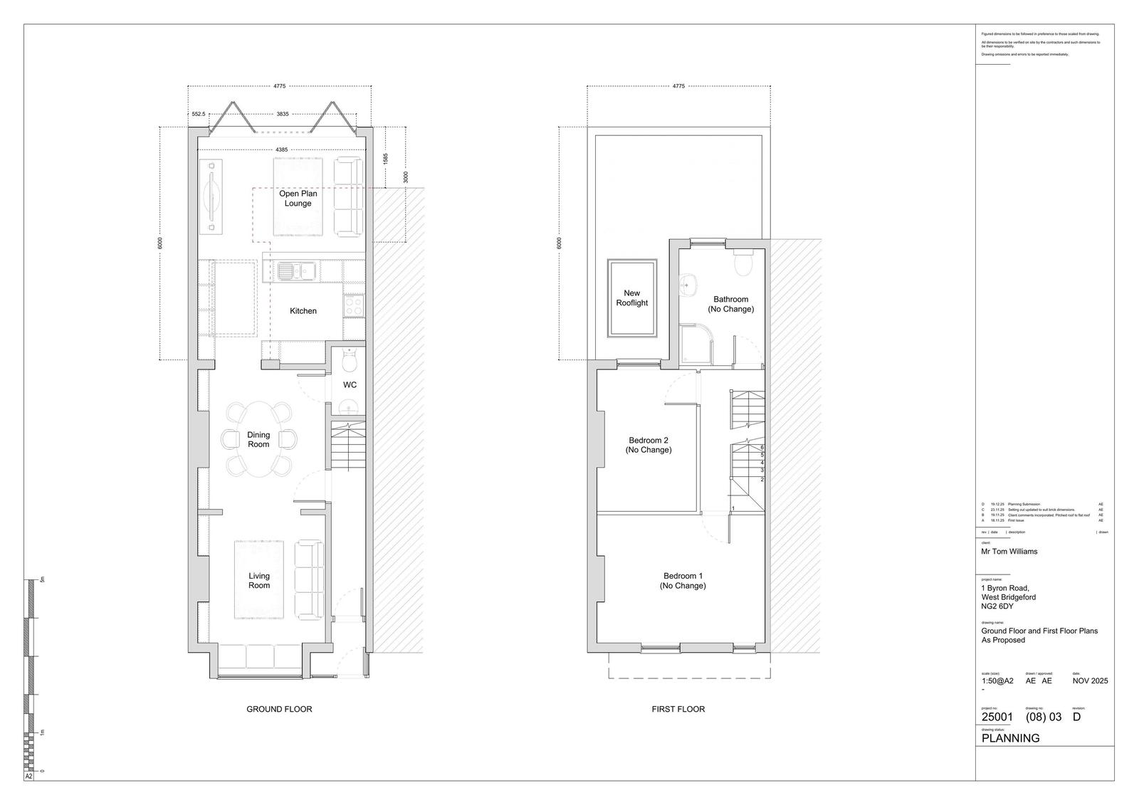
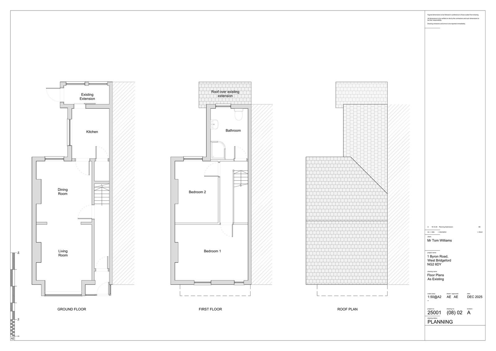
Full proposal

Erection of a single-storey rear extension and a dormer roof

Have your say

Your comment matters. Councils must consider every representation that raises material planning considerations.

Write a comment