← Rushcliffe Borough Council

Status

Pending Decision House extension
Received
Last month
New homes
0

Full proposal

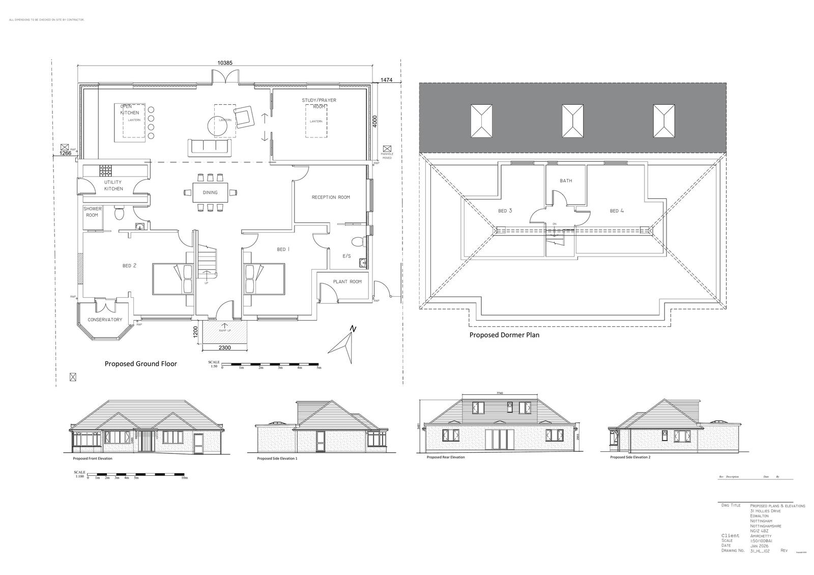
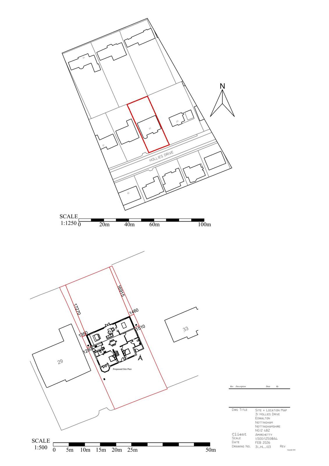
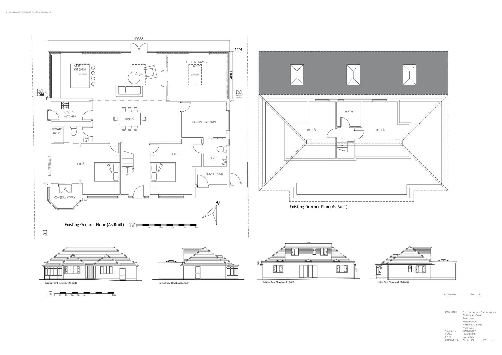
Retrospective application for a single-storey rear extension and rear dormer, installation of external wall render, erection of front porch canopy, and replacement fenestration.

Have your say

Your comment matters. Councils must consider every representation that raises material planning considerations.

Write a comment