← Rushcliffe Borough Council

Status

Pending Decision New housing
Received
Last month
New homes
1

Full proposal

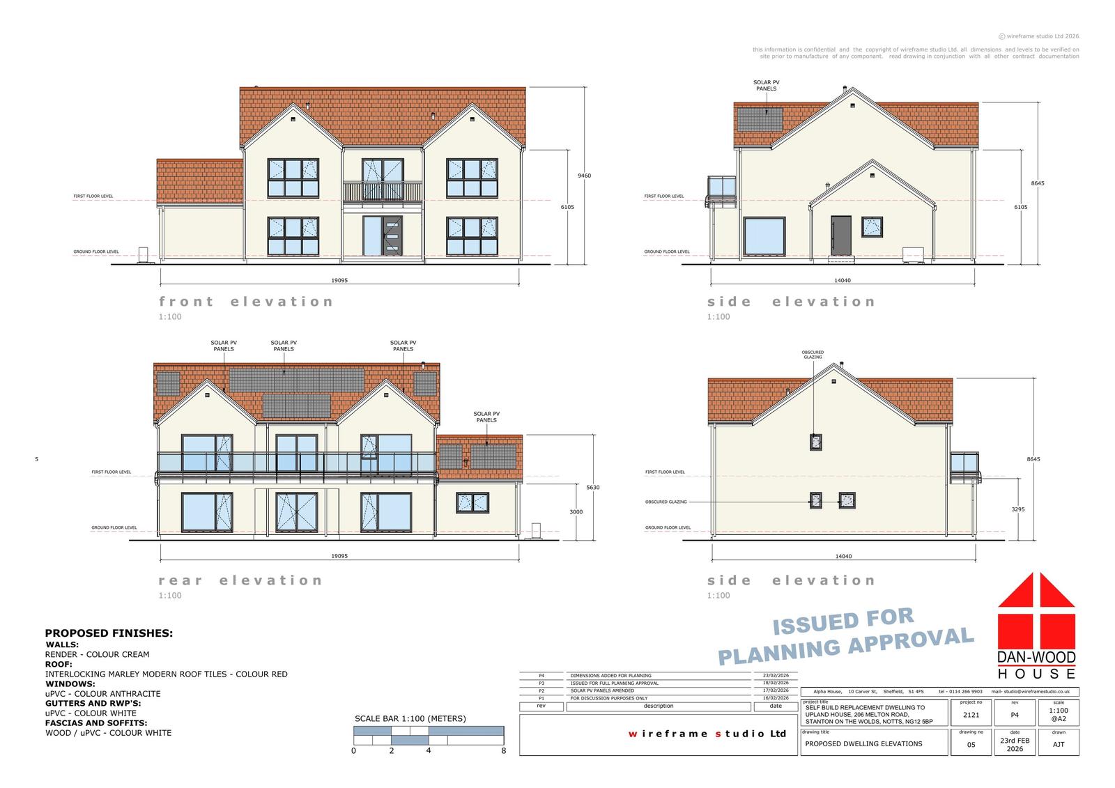
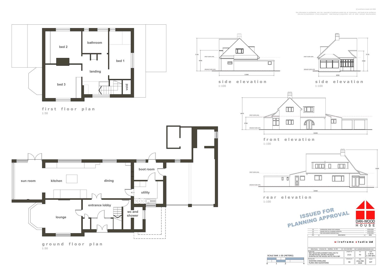
Demolition of existing 3 bed detached 2 storey dwelling and construction of a Self Build 5 bed detached dwelling

Have your say

Your comment matters. Councils must consider every representation that raises material planning considerations.

Write a comment