← Rushcliffe Borough Council

Status

Pending Decision House extension
Received
Last month
New homes
0

Full proposal

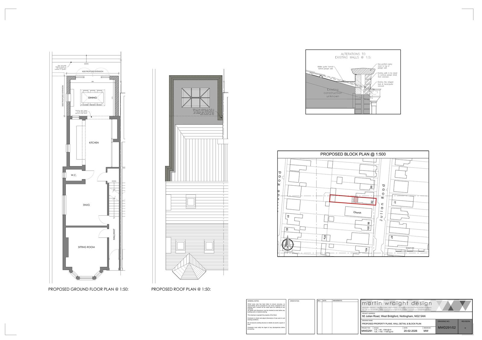
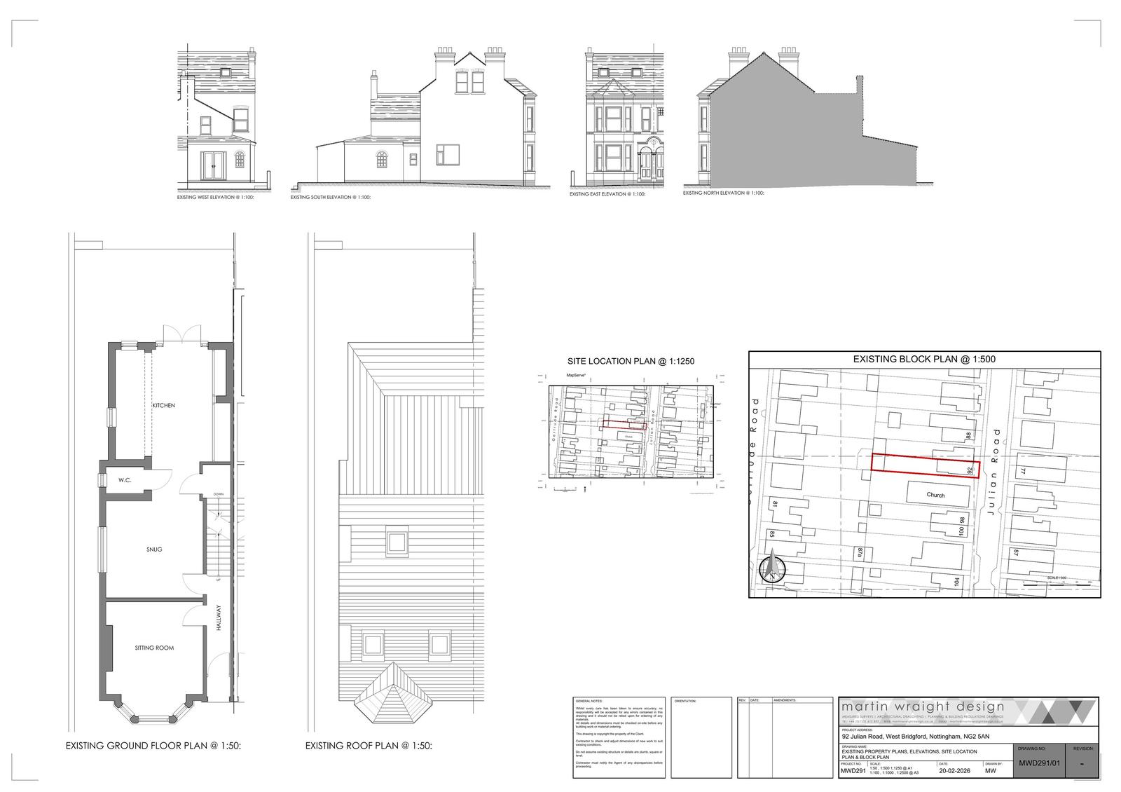
Proposed erection of a single-storey rear extension with roof lantern includes new external steps/platform to rear and raising of existing single storey rear eaves to form parapet walls.

Documents

Application Form
Archived · Original link
Flood Risk Assessment
Archived · Original link
Plans - Elevations
Archived · Original link

Have your say

Your comment matters. Councils must consider every representation that raises material planning considerations.

Write a comment