← Rushcliffe Borough Council

Status

Pending Decision Other
Received
Last month
New homes
0

Full proposal

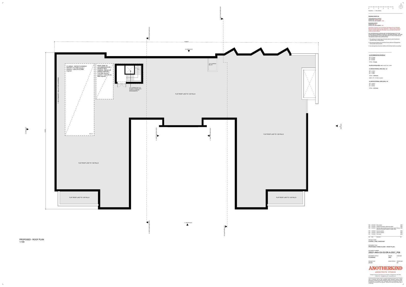
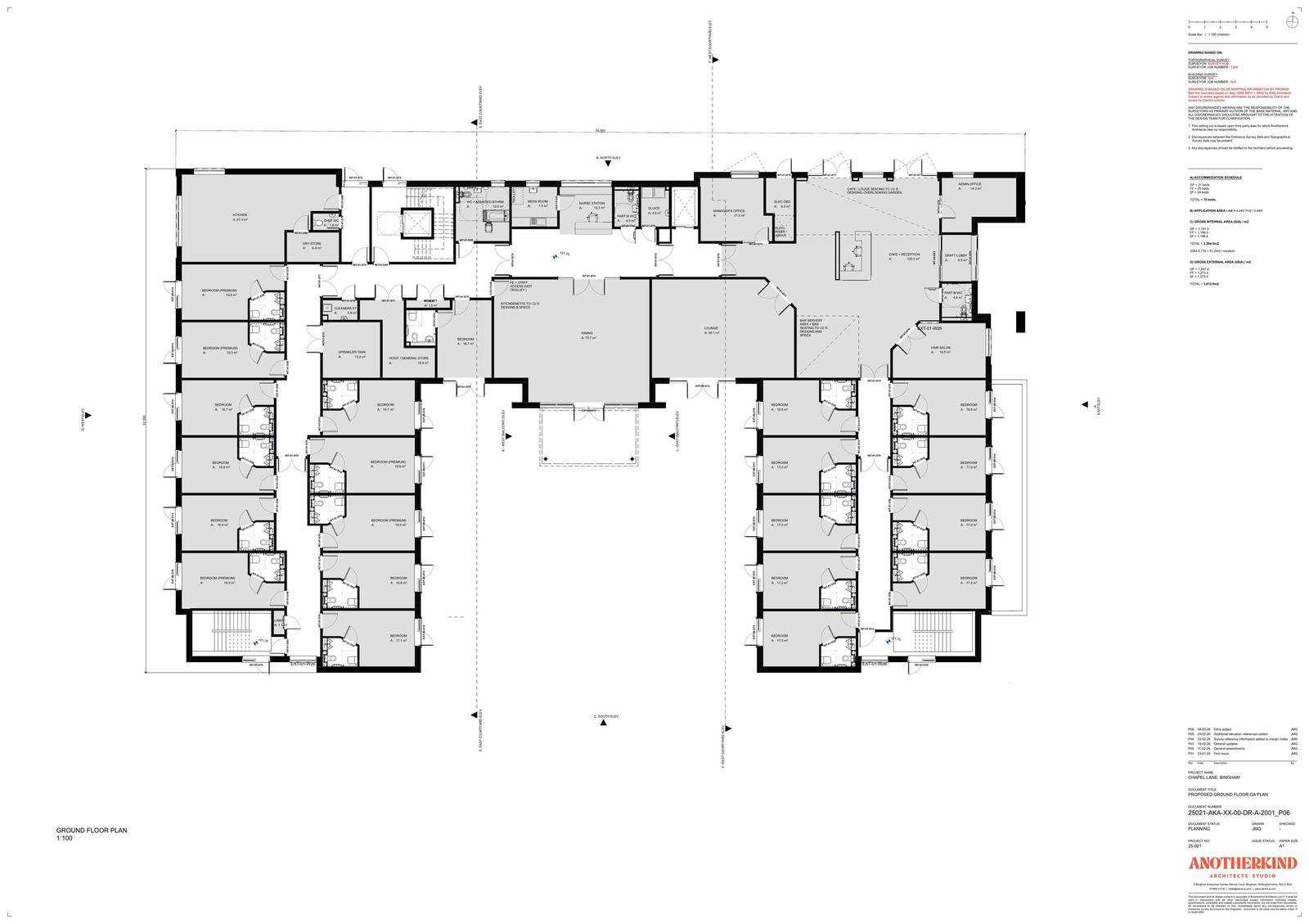
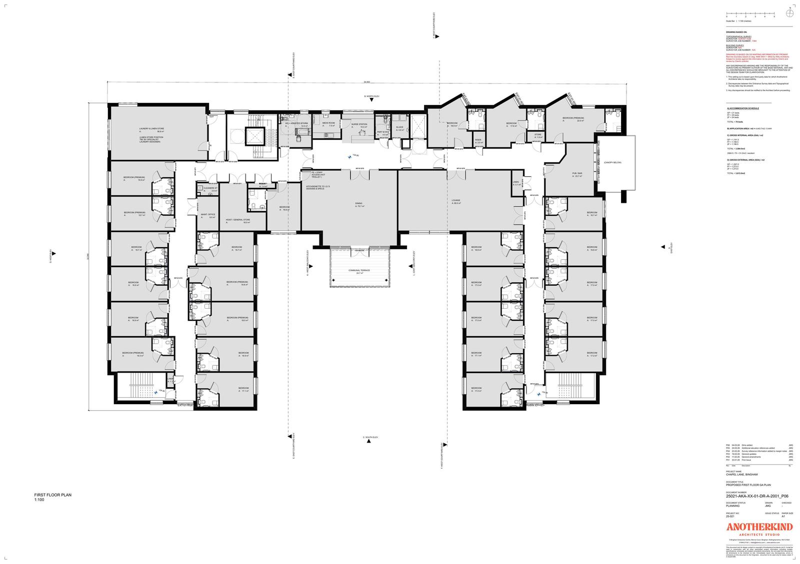
Erection of a 3 storey residential care home within Use Class C2 and associated car park

Documents

Plans
Archived · Original link
Noise Report
Archived · Original link
Application Form
Archived · Original link
Ecology Report
Archived · Original link
BNG BASELINE METRIC
Ecology Report
Not yet archived · Original link
Construction Management Report
Archived · Original link
Plans
Archived · Original link
Design & Access Statement
Archived · Original link
Energy Report
Archived · Original link
Consultee Responses
Archived · Original link
Plans
Archived · Original link
Flood Risk Assessment
Archived · Original link
Ecology Report
Archived · Original link
Planning Statement
Archived · Original link
Plans
Archived · Original link
Application File Papers
Archived · Original link
Transport Assessment
Archived · Original link
Application File Papers
Archived · Original link

Have your say

Your comment matters. Councils must consider every representation that raises material planning considerations.

Write a comment